- Plot Size 478 Sq Metres
- Planning Ref: P/FUL/2025/06066
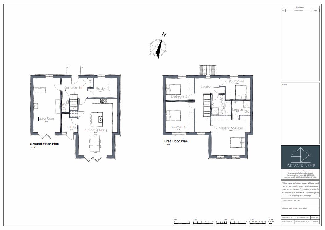
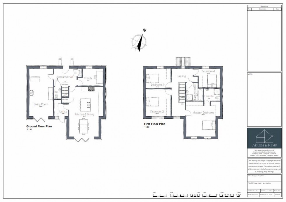
- Four Bedrooms, Two Bathrooms, Two Reception Rooms
- Detached House
- Outskirts of Shaftesbury
- Countryside Views
A rare opportunity to acquire a building plot with full planning permission granted for a four bedroom detached house, situated in a set back position on the outskirts of Shaftesbury. The plot extends to approximately 578 square metres and enjoys fantastic far reaching views towards Duncliffe Hill and beyond from the rear, making it a truly enviable position in which to build a new home.
Planning permission has been granted under application reference P/FUL/2025/06066 for a four bedroom detached house with two reception rooms and two bathrooms. Shaftesbury is a popular and historic hilltop market town, renowned for the iconic cobbled Gold Hill and its stunning views over the Blackmore Vale, with a good range of independent shops, cafés, restaurants, supermarkets and everyday amenities, alongside Gillingham mainline railway station just a short drive away providing direct services to London Waterloo and the West Country. What3words ///hillside.assure.starlight
Planning permission has been granted under application reference P/FUL/2025/06066 for a four bedroom detached house with two reception rooms and two bathrooms. Shaftesbury is a popular and historic hilltop market town, renowned for the iconic cobbled Gold Hill and its stunning views over the Blackmore Vale, with a good range of independent shops, cafés, restaurants, supermarkets and everyday amenities, alongside Gillingham mainline railway station just a short drive away providing direct services to London Waterloo and the West Country. What3words ///hillside.assure.starlight
Book a viewing
Please be aware, these results are for illustrative purposes only and should not be considered as a mortgage quote. These are based on a repayment mortgage and may vary depending on the term and interest rate of your mortgage.
Lender fees may also be applicable. If you would like guidance on the right mortgage for you, we recommend speaking to a mortgage consultant.