For Sale 3 Bed For Sale

Guide Price £350,000

Buckland Newton, Dorchester

  • End of Terrace Home
  • Three Bedrooms
  • Popular Village Location
  • Good Sized Garden
  • Countryside Views
  • Modern Interior
  • Two Allocated Parking Spaces
  • Energy Efficiency Rating E
A charming and characterful three bedroom end of terrace home, situated in the peaceful Dorset village of Buckland Newton, which boasts a well regarded pub and a primary school, with lovely countryside views enjoyed from the property. Full of character and presented to a modern standard throughout, the property blends contemporary living with original features including a stone feature wall, exposed wooden beams and a wood burning stove, creating a truly warm and inviting home that is ready to move straight into. Offered for sale with no onward chain.

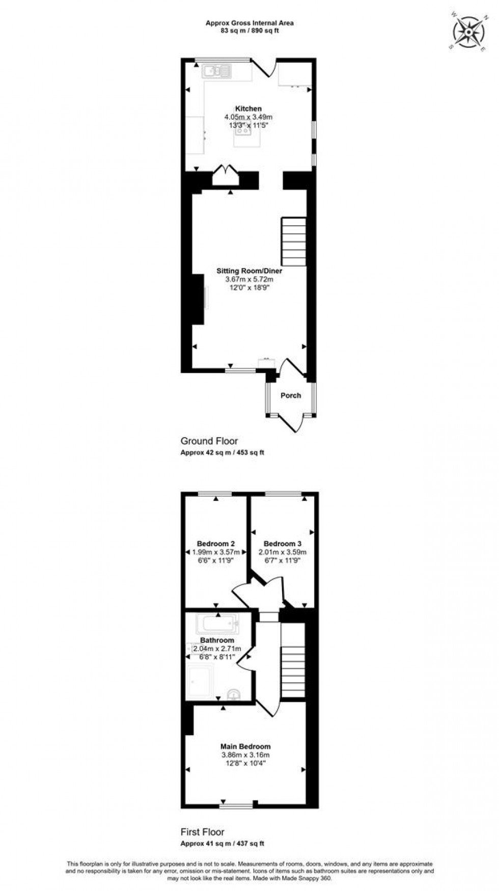
The accommodation extends to approximately 890 square feet across two floors, with a generous open plan sitting and dining room and a well appointed kitchen on the ground floor, alongside a front porch. To the first floor, three bedrooms are found, all served by the family bathroom, with the principal bedroom featuring a characterful brick feature wall.

Outside, a large and private rear garden is mainly laid to lawn with lovely countryside views and a shed within the plot. Two allocated parking spaces are also included.

The Property

Inside

Ground Floor
A front porch leads into the sitting and dining room, a generous and wonderfully characterful space that immediately sets the tone for the rest of the home. A stone feature wall and exposed wooden beam create a striking impression, whilst a wood burning stove serves as a wonderful focal point. The kitchen is a well appointed modern space, fitted with an eye level oven and a central island with breakfast bar, hob and extraction, creating a sociable and stylish everyday cooking space. A door leads out to the rear garden.

First Floor
Stairs rise to the landing where three well proportioned bedrooms are found. The principal bedroom is a generous and characterful room with a striking brick feature wall, with all three bedrooms served by the modern family bathroom.

Outside

Garden
A large and private rear garden mainly laid to lawn, enjoying a pleasant outlook over the surrounding countryside. A shed is also found within the garden, providing useful additional storage.

Parking
Two allocated parking spaces are included with the property.

Useful Information

Energy Efficiency Rating E
Council Tax Band C
LPG Gas Fired Central Heating
Upvc Double Glazing
Mains Drainage
Freehold
No Onward Chain

Location and Directions

Buckland Newton offer a peaceful rural lifestyle with a strong sense of community. Surrounded by rolling hills and scenic walking routes, the area is perfect for nature lovers and those seeking a quieter pace of life. The village has a well-regarded primary school with a collect bus service or a walk over the fields, a welcoming village pub - The Gaggle of Geese, a village shop for everyday essentials, and a charming parish church. The village hall has a visiting post office and hosts regular events and activities and there is a wide variety of clubs/groups - from philosophy to the environment, as well as a thriving village youth club. With easy access to the market towns of Dorchester and Sherborne, residents enjoy the best of both country living and convenient connections.

Postcode DT2 7BU

What3words: ///mailboxes.backed.crib

EPC Graph for Buckland Newton, Dorchester

Book a viewing

Or call us to make an enquiry

01258 473030

1 Market House, Market Place, Sturminster Newton DT10 1AS

Calculate

Please be aware, these results are for illustrative purposes only and should not be considered as a mortgage quote. These are based on a repayment mortgage and may vary depending on the term and interest rate of your mortgage.

Lender fees may also be applicable. If you would like guidance on the right mortgage for you, we recommend speaking to a mortgage consultant.

Results

Stamp Duty To Pay:

Effective Rate:

Tax Band % Taxable Sum Tax

Are you looking to sell?

Book a Valuation