For Sale 2 Bed For Sale

Guide Price £280,000

Jarvis Close, Stalbridge, Sturminster Newton

  • Semi Detached Bungalow
  • Two Double Bedrooms
  • Two Reception Rooms
  • Delightful Rear Garden
  • Garage and Parking
  • No Onward Chain
  • Large Attic Space
  • Energy Efficiency Rating D
A well presented two bedroom semi-detached bungalow, situated in a quiet cul-de-sac just a short distance from the town centre. Stalbridge is one of Dorset's most characterful small towns, with an award winning supermarket, butchers, post office, primary school, public house and a good range of everyday amenities all close by. The property offers well balanced accommodation with a natural flow throughout and is offered for sale with no onward chain.

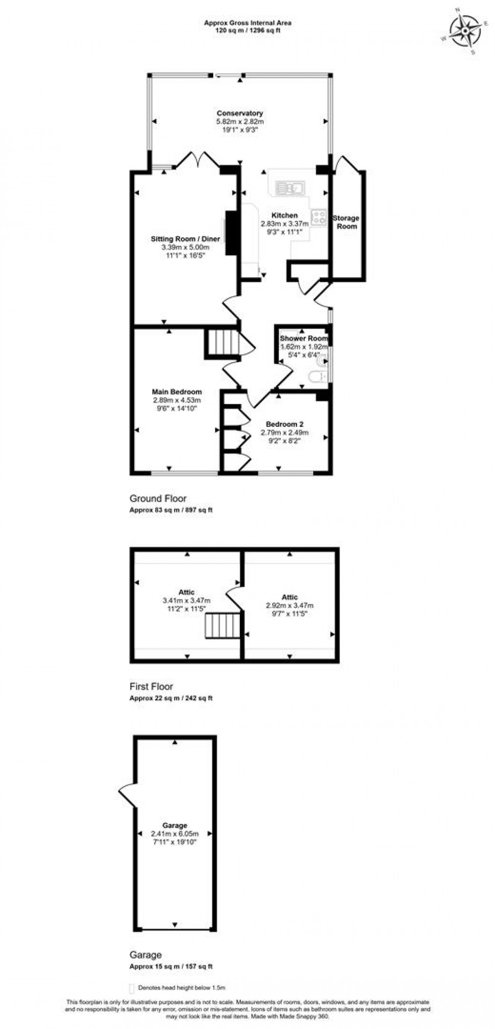
A welcoming entrance hall leads through to a generous sitting room with feature fireplace and a well equipped kitchen, with a wonderful garden room beyond enjoying views over the rear garden. Two double bedrooms, both with built-in wardrobes, are served by a modern shower room, with the added benefit of a useful attic storage room accessed via steps from the hall.

Outside, there is off road parking for at least two vehicles, a larger than average single garage and a good sized rear garden enjoying a sunny aspect, with a low maintenance front garden.

The Property

Inside

Ground Floor
A welcoming entrance hall leads through to the principal rooms, with steps rising to a useful attic storage room. A comfortable sitting room enjoys a feature fireplace with marble surround and a coal effect gas fire. The kitchen is fitted with light wood grain effect units and generous work surfaces with space for a cooker and white goods, leading through to the wonderful garden room beyond, which enjoys lovely views over the rear garden with a sliding patio door opening directly outside.

Two good sized double bedrooms are served by the modern shower room, with the second bedroom benefiting from built-in wardrobes. A door from the hallway conceals a staircase leading to two useful attic rooms.

Outside

Garden
To the front, the garden has been attractively landscaped for ease of maintenance with gravel and slate chippings with a central raised bed. The rear garden is mostly laid to lawn with raised gravel borders, a greenhouse and metal shed, enclosed by hedgerow and timber fencing and enjoying a good degree of privacy and a sunny aspect.

Garage & Parking
A larger than average single garage benefits from an up and over door, light, power and a door opening to the rear garden, with off road parking for at least two vehicles.

Useful Information

Energy Efficiency Rating D
Council Tax Band C
Upvc Double Glazing
Gas Fired Central Heating
Mains Drainage
Freehold
No Onward Chain

Location and Directions

Stalbridge is a small and charming Dorset town known for its friendly community and relaxed pace of life. It offers a selection of everyday amenities including independent shops, a supermarket, a pub, and a primary school, while retaining a traditional rural feel. Surrounded by attractive countryside, it provides easy access to scenic walks and is well placed for reaching nearby towns such as Sherborne and Sturminster Newton.

Postcode DT10 2PQ

What3words ///willpower.courtyard.lightens

EPC Graph for Jarvis Close, Stalbridge, Sturminster Newton

Book a viewing

Or call us to make an enquiry

01258 473030

1 Market House, Market Place, Sturminster Newton DT10 1AS

Calculate

Please be aware, these results are for illustrative purposes only and should not be considered as a mortgage quote. These are based on a repayment mortgage and may vary depending on the term and interest rate of your mortgage.

Lender fees may also be applicable. If you would like guidance on the right mortgage for you, we recommend speaking to a mortgage consultant.

Results

Stamp Duty To Pay:

Effective Rate:

Tax Band % Taxable Sum Tax

Are you looking to sell?

Book a Valuation