For Sale 2 Bed For Sale

Asking Price £200,000

Townsend Green, Henstridge, Templecombe

  • Mid Terraced Home
  • Two bedrooms
  • Allocated Parking Space
  • Conservatory
  • Enclosed Rear Garden
  • Close to Village Centre
  • Vendors are able to break the chain
  • Energy Efficiency Rating Tbc
A well presented two bedroom mid terraced home, situated in the popular Somerset village of Henstridge, decorated to a high standard throughout and ready to move straight into. Henstridge is a charming village on the Somerset and Dorset border, with a village shop, pub, primary school and church, all within easy reach. The larger towns of Sherborne, Gillingham and Wincanton are all within comfortable driving distance, with Templecombe mainline railway station nearby providing direct services to London Waterloo and the West Country.

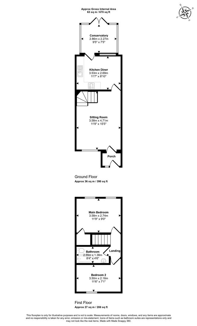
The accommodation is arranged across two floors, with a generous sitting room, a kitchen diner leading through to a conservatory and a front porch on the ground floor. To the first floor, two bedrooms are found, the principal benefiting from built-in storage, both served by the family bathroom.

Outside, an enclosed rear garden is low maintenance and laid to gravel and turf, with a garden shed and a designated parking space also included.

The Property

Inside

Ground Floor
A front porch leads into the sitting room, a generous and light filled reception space decorated to a high standard, with stairs rising to the first floor. The kitchen diner is a well proportioned and sociable everyday space, fitted with shaker units and a built-in oven and hob, with space for further appliances. Leading off from here, the conservatory is a wonderful addition to the home, enjoying doors that open directly onto the rear garden and creating a seamless connection between inside and out.

First Floor
Stairs rise to the landing where two well proportioned bedrooms are found, both finished to the same high standard seen throughout the rest of the home. The principal bedroom benefits from built-in storage, with both rooms served by the family bathroom.

Outside

Garden
An enclosed rear garden, low maintenance and laid to gravel and turf, with a garden shed providing useful additional storage.

Parking
A designated parking space is included with the property.

Useful Information

Energy Efficiency Rating TBC
Council Tax Band B
Electric Heating
Mains Drainage
Upvc Double Glazing
Freehold
Vendors are able to break the chain

Location and Directions

Henstridge is a well served Somerset village offering a range of everyday amenities including a village shop, public houses, primary school and community facilities. The village enjoys a convenient position close to the Dorset and Somerset border and provides good access to the surrounding countryside.
The nearby towns of Sherborne, Wincanton and Sturminster Newton offer a wider range of shopping, schooling and leisure facilities. Mainline railway services to London Waterloo are available from Sherborne and Templecombe.

Postcode BA8 0TT

EPC Graph for Townsend Green, Henstridge, Templecombe

Book a viewing

Or call us to make an enquiry

01258 473030

1 Market House, Market Place, Sturminster Newton DT10 1AS

Calculate

Please be aware, these results are for illustrative purposes only and should not be considered as a mortgage quote. These are based on a repayment mortgage and may vary depending on the term and interest rate of your mortgage.

Lender fees may also be applicable. If you would like guidance on the right mortgage for you, we recommend speaking to a mortgage consultant.

Results

Stamp Duty To Pay:

Effective Rate:

Tax Band % Taxable Sum Tax

Are you looking to sell?

Book a Valuation