For Sale 4 Bed For Sale

Guide Price £630,000

Burton Street, Marnhull, Sturminster Newton

  • Detached Bungalow
  • Four Bedrooms
  • Garage and Off Road Parking
  • Attic Room
  • Enclosed Garden
  • BBQ Lodge in the Garden
  • No Onward Chain
  • Energy Efficiency Rating D
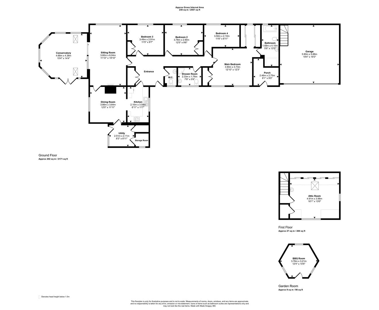
A substantial and well proportioned four bedroom detached bungalow, situated in the popular and picturesque Dorset village of Marnhull, offered for sale with no onward chain. Generous in size and thoughtfully laid out, the property extends to approximately 2,550 square feet and is a wonderful family home with excellent storage throughout. Marnhull is a charming and active village with a good range of everyday amenities including a village shop, public houses and a primary school, all within easy reach.

The accommodation is predominantly arranged on one level, with a generous sitting room featuring a fireplace and sliding doors leading through to the conservatory, a separate dining room and a traditional kitchen on the ground floor, alongside a shower room and WC. Four well proportioned bedrooms are found, three of which have built-in storage, all served by two bathrooms. A generous attic room above the garage, accessed via a staircase, provides a wonderfully flexible additional space.

Outside, an enclosed and private garden surrounds the property, mainly laid to lawn with a patio area, mature trees, shrubs and well stocked borders. A greenhouse and a wonderful BBQ room add real character and practicality to the plot, with a garage and driveway parking for at least three vehicles also found within the grounds.

The Property

Inside

Ground Floor
An entrance hall runs through the heart of the property and leads to all principal rooms. The sitting room is a generous and comfortable reception space with a feature fireplace as its focal point, with sliding doors leading through to the conservatory, which enjoys a pleasant outlook over the garden. A separate dining room sits alongside, with the kitchen leading off via an arch, fitted with wooden units and space for appliances. A utility room and storage room lead off from the kitchen, providing excellent everyday practicality. Four well proportioned bedrooms are found, three benefiting from built-in storage, all served by a shower room, bathroom and separate WC.

Above the Garage
A staircase rises to a generous attic room above the garage, a wonderfully flexible additional space that could be used in a variety of ways to suit the new owners' needs.

Outside

Garden
An enclosed and private garden surrounds the property, mainly laid to lawn with a patio seating area and well stocked borders featuring mature trees and shrubs. A greenhouse provides useful growing space, whilst a dedicated BBQ room is a truly unique and impressive addition to the outdoor space.

Garage & Parking
An attached garage sits alongside generous driveway parking for at least three vehicles.

Useful Information

Energy Efficiency Rating D
Council Tax Band E
Gas Central Heating with underfloor heating to the conservatory and the ensuite bathroom.
Upvc Double Glazing
Mains Drainage
No Onward Chain
Freehold

Location and Directions

Marnhull is approximately 3 miles to the north of the market town of Sturminster Newton and lies in the Blackmore Vale in an Area of Outstanding Natural Beauty. The village is one of the largest in Dorset with a population of about 2000. It has an active community with a variety of friendly and thriving clubs and societies. There is a post office, two general stores, hairdressers, chemist and doctors surgery. There are three churches, two public houses and a number of Bed & Breakfast places, as well as two primary schools. Further facilities can be found at Shaftesbury and Gillingham which are approximately 6 miles away, with the latter benefiting from a mainline train station, serving London Waterloo and Exeter St David's.


Postcode DT10 1PS

What3words ///books.pulse.originate

EPC Graph for Burton Street, Marnhull, Sturminster Newton

Book a viewing

Or call us to make an enquiry

01258 473030

1 Market House, Market Place, Sturminster Newton DT10 1AS

Calculate

Please be aware, these results are for illustrative purposes only and should not be considered as a mortgage quote. These are based on a repayment mortgage and may vary depending on the term and interest rate of your mortgage.

Lender fees may also be applicable. If you would like guidance on the right mortgage for you, we recommend speaking to a mortgage consultant.

Results

Stamp Duty To Pay:

Effective Rate:

Tax Band % Taxable Sum Tax

Are you looking to sell?

Book a Valuation