For Sale 3 Bed For Sale

Guide Price £290,000

Templars Barton, Templecombe

  • Link Detached Home
  • Three Bedrooms
  • Sitting Room/Diner
  • Enclosed Rear Garden
  • Garage
  • Pleasant Outlook
  • Off Road Parking
  • Energy Efficiency Rating C
A beautifully presented three bedroom link detached home, situated in the popular Somerset village of Templecombe. The village has its own mainline railway station, a pub, primary school and a good range of local amenities, with the larger towns of Sherborne and Gillingham both within easy reach. Decorated to a high standard throughout, the property is well proportioned, heated by an air source heat pump and is ready to move straight into.

The accommodation is arranged across two floors, with a bright and generous sitting and dining room with French doors opening directly onto the rear garden, a modern kitchen and a WC on the ground floor. To the first floor, three bedrooms are found, all served by the family bathroom.

Outside, the property has an enclosed rear garden with a patio seating area and lawn, backing directly onto open fields and enjoying lovely countryside views, with a garage and driveway parking for up to three vehicles also found within the plot.

The Property

Inside

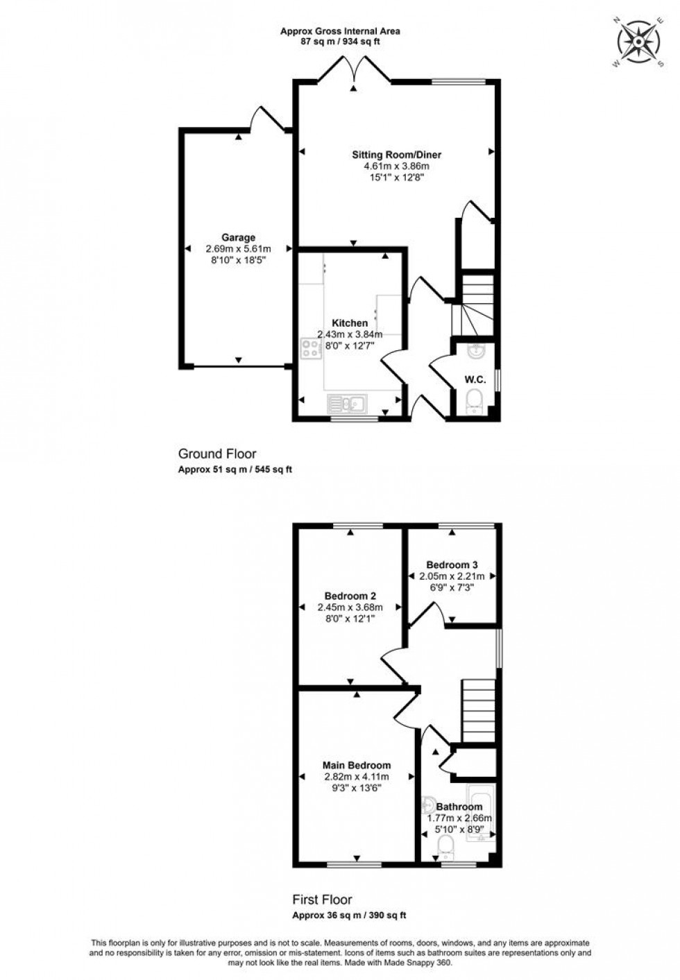
Ground Floor
An entrance hall leads through to the principal rooms and a WC. The sitting and dining room is a generous and light filled reception space, decorated to a high standard with a lovely outlook over the rear garden and open fields beyond, with French doors opening directly onto the patio. Leading off from here, the kitchen is fitted with shaker units and a range of built-in appliances including an oven and hob.

First Floor
Stairs rise to the landing where three well proportioned bedrooms are found, all enjoying a pleasant outlook and served by the family bathroom.

Outside

Garden
An enclosed rear garden, recently landscaped, enjoying a good level of privacy and backing directly onto open fields, creating a wonderfully peaceful outlook. There is a generous patio seating area with a lawn beyond and a shed also found within the garden. Side access and a pedestrian door from the garage both provide convenient access to the garden.

Garage & Parking
A single garage sits to the side of the property with a door leading through to the garden, alongside driveway parking for up to three vehicles to the front.

Useful Information

Energy Efficiency Rating C
Council Tax Band C
Air Source Heat Pump
Underfloor Heating Downstairs
Mains Drainage
Upvc Double Glazing
Freehold
Vendors will need to find onward purchase

Location and Direction

Templecombe is a well served village with a range of everyday amenities including a shop, primary school and mainline railway station offering direct links to London Waterloo. The nearby towns of Sherborne and Wincanton provide a wider range of facilities including supermarkets, independent shops, restaurants and leisure amenities. The area is well regarded for its surrounding countryside, offering plenty of opportunities for walking and outdoor pursuits.

Postcode BA8 0AX

What3words ///included.awoke.takeovers

EPC Graph for Templars Barton, Templecombe

Book a viewing

Or call us to make an enquiry

01258 473030

1 Market House, Market Place, Sturminster Newton DT10 1AS

Calculate

Please be aware, these results are for illustrative purposes only and should not be considered as a mortgage quote. These are based on a repayment mortgage and may vary depending on the term and interest rate of your mortgage.

Lender fees may also be applicable. If you would like guidance on the right mortgage for you, we recommend speaking to a mortgage consultant.

Results

Stamp Duty To Pay:

Effective Rate:

Tax Band % Taxable Sum Tax

Are you looking to sell?

Book a Valuation