For Sale 3 Bed For Sale

Guide Price £225,000

Yarn Barton, Templecombe

  • Semi Detached Home
  • Three Bedrooms
  • Good Sized Kitchen
  • Conservatory
  • Enclosed Rear Garden
  • Garage and Parking
  • No Onward Chain
  • Energy Efficiency Rating E
A well-presented three bedroom mid-terraced home, situated in a quiet and convenient location within the popular village of Templecombe. The property offers generous accommodation across three floors, with a particular highlight being the conservatory which opens directly onto the enclosed rear garden.

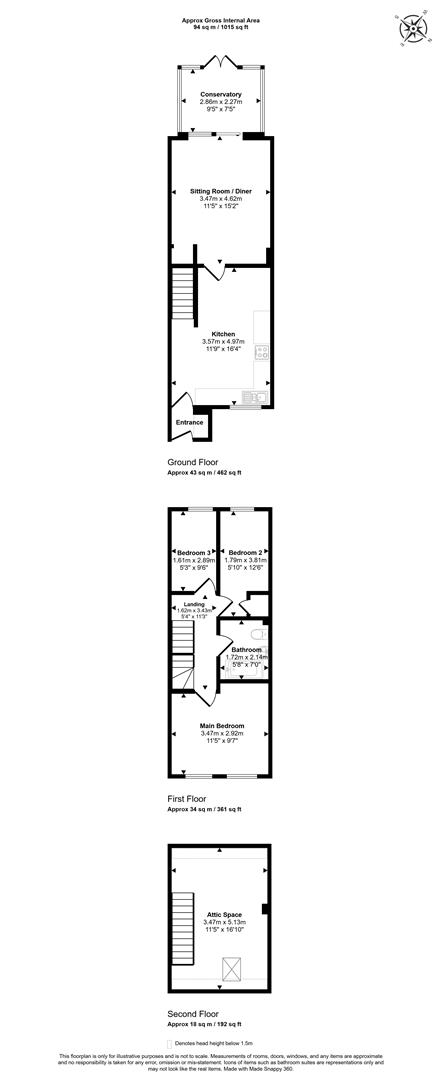
The accommodation comprises a good sized kitchen with space for a dining table, a sitting room and a conservatory to the ground floor. To the first floor, three bedrooms are served by a family bathroom, with a useful storage room found on the second floor.

Outside, the rear garden has been designed for ease of maintenance with a combination of patio and gravel, offering a good degree of privacy in an enclosed and pleasant setting. A garage in a nearby block and parking directly in front completes the arrangement.

The Property

Inside

Ground Floor
Entering through the front door, the kitchen is a good sized and practical space, fitted with a range of modern units and offering room for a dining table as well as space for appliances. Leading through, the sitting room diner is a comfortable and well proportioned reception space, benefiting from a good degree of natural light. The conservatory beyond opens directly onto the rear garden, providing a pleasant and versatile additional living space that can be enjoyed throughout the year.

First Floor
Three bedrooms are found on the first floor, all enjoying a good degree of natural light and served by a family bathroom. The principal bedroom is a particularly well proportioned room, with further bedrooms offering flexible use for guests, children or a home office. A staircase rises to the second floor where a useful storage room is found.

Outside

Gardens
The rear garden has been thoughtfully arranged with a combination of patio and gravel offering a low maintenance and enclosed outdoor space with a south westerly aspect and a good degree of privacy throughout.

Parking & Garage
A garage is located in a nearby block with parking directly in front.

Useful Information

Energy Efficiency Rating E
Council Tax Band B
LPG Gas Fired Central Heating
Mains Drainage
Upvc Double Glazing
Freehold
No Onward Chain

Location and Directions

Templecombe is a popular and well connected village in Somerset, known for its railway station on the London Waterloo to Exeter line, making it an attractive base for commuters. The village has a quiet and pleasant feel with a strong sense of community, and is well placed for access to the surrounding Somerset and Dorset countryside. The nearby towns of Sherborne, Wincanton and Shaftesbury are all within easy reach, offering a wider range of shops, restaurants and everyday amenities.

Postcode BA8 0JH

What3words ///single.beginning.blunders

EPC Graph for Yarn Barton, Templecombe

Book a viewing

Or call us to make an enquiry

01258 473030

1 Market House, Market Place, Sturminster Newton DT10 1AS

Calculate

Please be aware, these results are for illustrative purposes only and should not be considered as a mortgage quote. These are based on a repayment mortgage and may vary depending on the term and interest rate of your mortgage.

Lender fees may also be applicable. If you would like guidance on the right mortgage for you, we recommend speaking to a mortgage consultant.

Results

Stamp Duty To Pay:

Effective Rate:

Tax Band % Taxable Sum Tax

Are you looking to sell?

Book a Valuation