For Sale 3 Bed For Sale

Guide Price £395,000

Carent Close, Marnhull, Sturminster Newton

  • Detached Chalet Bungalow
  • Three Bedrooms
  • Large Garden
  • Off Road Parking
  • Garage
  • Conservatory
  • No Onward Chain
  • Energy Efficiency Rating Tbc
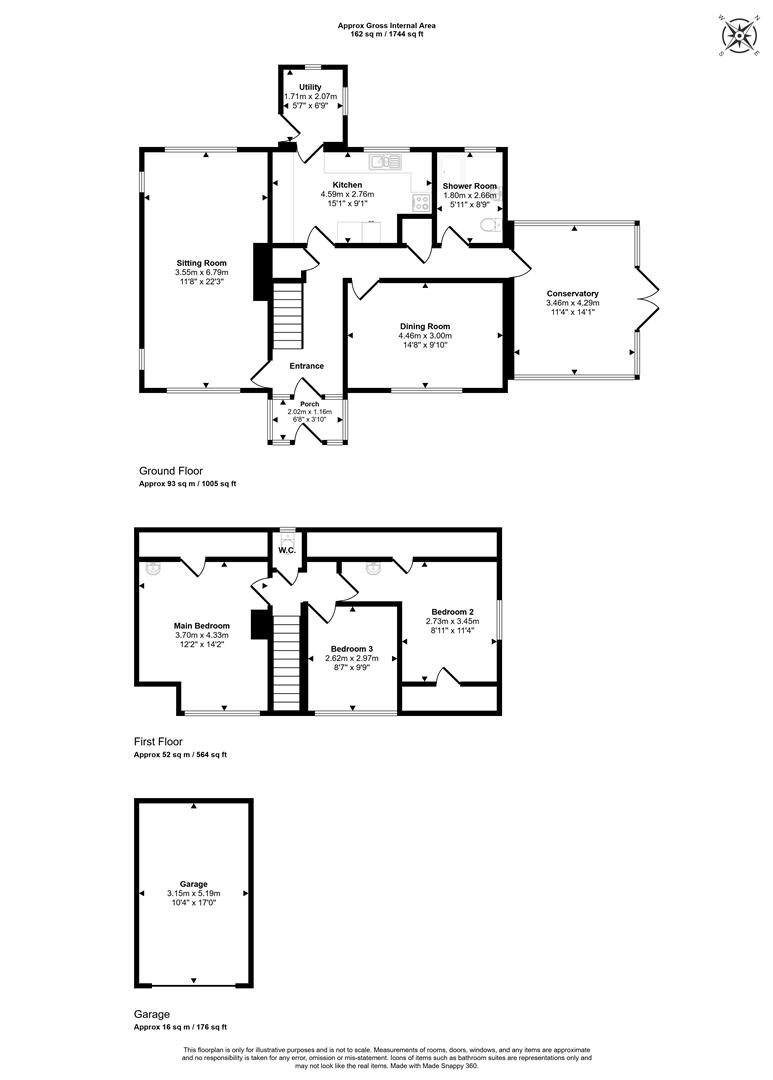
A charming and well-presented three bedroom detached chalet bungalow, offering generous and versatile living space throughout, situated within the sought after village of Marnhull. The property benefits from a delightful and mature rear garden, three reception rooms and offer for sale with no onward chain.

The accommodation has been thoughtfully arranged to provide a comfortable and practical flow between rooms. To the ground floor, a spacious sitting room with an open fire provides a warm and inviting focal point, complemented by a separate dining room and a bright conservatory overlooking the rear garden. The kitchen, fitted with a range of wooden units, leads through to a useful porch room with access to the outside. To the first floor, three well proportioned bedrooms are served by a first floor WC, with a shower room located on the ground floor.

The property is further enhanced by a particularly generous and private rear garden, a garage and off road parking for three cars.

The Property

Inside

Ground Floor
Entering through the front door, a welcoming entrance hall leads through to the principal ground floor rooms. The sitting room is a comfortable and characterful reception space, enjoying a feature open fireplace which creates a warm and inviting atmosphere. A separate dining room offers a dedicated space for entertaining, whilst the bright conservatory enjoys a pleasant outlook over the rear garden with doors opening directly outside.
Fitted with a range of wooden units offering good storage and preparation space, the kitchen also has room for freestanding appliances. Leading through to a useful porch room with access to the outside, this area of the house offers a practical and well considered arrangement. A ground floor shower room completes the accommodation at this level.

First Floor
Stairs rise to the first floor landing where three well proportioned bedrooms are found, all enjoying a good degree of natural light. A WC serves the first floor.

Outside

Gardens
The rear garden is a real feature of the property, offering a generous and private outdoor space with a well-established lawn, mature trees and planting borders. A patio area adjoining the house provides an ideal spot for outdoor dining and relaxing during the warmer months.

Parking
The property benefits from a garage along with off road parking for up to three cars.

Useful Information

Energy Efficiency Rating tbc
Council Tax Band D
Gas Fired Central Heating
Mains Drainage
UPVC Double Glazing
Freehold
No Onward Chain
Probate Granted

Location and Directions

Marnhull is a well regarded Dorset village with a strong sense of community and a range of everyday amenities including a shop, post office, primary school and local public houses. It enjoys a peaceful rural setting, surrounded by attractive countryside and a network of walking routes across the Blackmore Vale.
The village is also conveniently located for access to nearby towns such as Sturminster Newton, Shaftesbury and Gillingham, the latter offering a mainline rail link to London Waterloo.

Postcode DT10 1JL

what3words ///tangible.shapes.inflates

Book a viewing

Or call us to make an enquiry

01258 473030

1 Market House, Market Place, Sturminster Newton DT10 1AS

Calculate

Please be aware, these results are for illustrative purposes only and should not be considered as a mortgage quote. These are based on a repayment mortgage and may vary depending on the term and interest rate of your mortgage.

Lender fees may also be applicable. If you would like guidance on the right mortgage for you, we recommend speaking to a mortgage consultant.

Results

Stamp Duty To Pay:

Effective Rate:

Tax Band % Taxable Sum Tax

Are you looking to sell?

Book a Valuation