For Sale 4 Bed For Sale

Offers In Excess Of £600,000

Foots Hill, Cann, Shaftesbury

  • Detached Chalet Bungalow
  • Three/Four Bedrooms
  • Sitting Room with Woodburning Stove
  • Ensuite Main Bedroom
  • Garage and Parking
  • Sought After Location
  • Air Source Heat Pump
  • Energy Efficiency Rating D
A charming and beautifully presented detached chalet bungalow, offering well-proportioned and versatile accommodation throughout, situated within the peaceful hamlet of Cann to the south east of Shaftesbury, within the Cranborne Chase Area of Outstanding Natural Beauty. Thoughtfully improved over ten years by the current owners, the property benefits from a beautifully updated kitchen breakfast room and an air source heat pump installed in 2021.

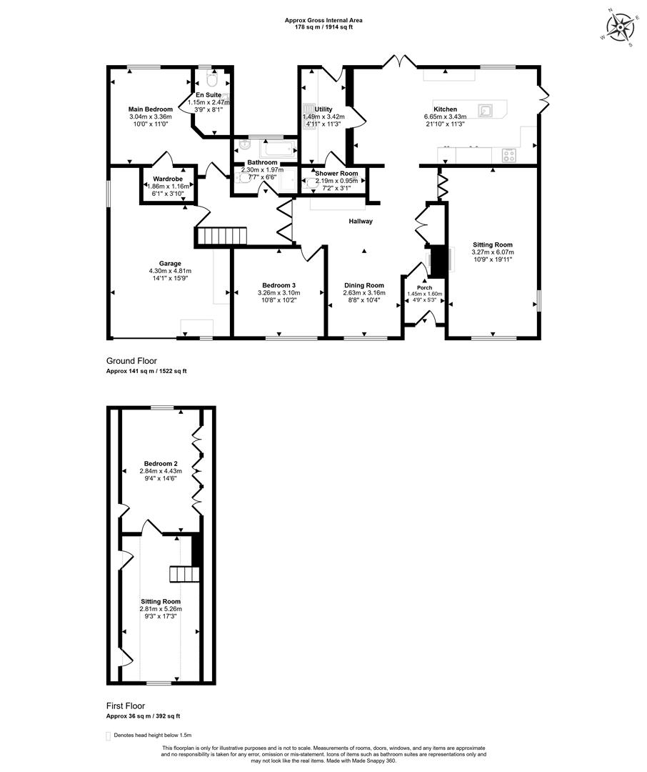
The accommodation is arranged to provide a flexible and practical layout, with the ground floor offering the majority of the living space. A generous sitting room and a separate dining room sit alongside a standout kitchen breakfast room with two sets of French doors opening directly onto the landscaped rear and side gardens. A separate utility room, shower room and bathroom complete the ground floor, along with the principal bedroom which benefits from an en suite.

To the first floor, two further bedrooms are found, one of which is currently used as an additional sitting room but would equally lend itself as a fourth bedroom.

Outside, the property is further enhanced by beautifully arranged gardens, a stylish garden room, an integral garage and generous gated driveway parking.

The Property

Inside

Ground Floor
Entered through a porch, the hallway leads through to the principal ground floor rooms. The sitting room is a spacious reception space whilst a separate dining room offers a dedicated area for entertaining.
The kitchen breakfast room is a particular highlight, fitted with a range of stylish shaker units with wood and stone worktops, integrated double oven and electric hob, and a breakfast bar with space for a seating area. Two sets of French doors open directly onto the landscaped rear and side gardens, flooding the room with natural light and creating a wonderful connection between inside and out. A separate utility room leads off from this area of the house.
The principal bedroom benefits from a dedicated en suite, with a family bathroom and a separate shower room also found at this level, serving the remainder of the accommodation.

First Floor
Stairs rise to the first floor where two well proportioned bedrooms are found, one of which is currently used as an additional sitting room but would equally lend itself as a fourth bedroom subject to requirements.

Outside

Garden
Arranged across several distinct areas of interest, the gardens are a real feature of the property. To the rear, a beautifully landscaped patio and decking area with shingle, a wildlife pond and water feature creates a peaceful and private outdoor retreat. A side garden is laid to lawn and houses a recently added stylish wooden garden room along with useful storage. The gardens are fully enclosed and thoughtfully arranged throughout.

Parking
To the front, a generous gated gravel driveway offers parking for multiple vehicles and leads to the integral garage, providing a practical and secure arrangement.

Useful Information

Energy Efficiency Rating D
Council Tax Band D
Septic Tank Drainage
Air Source Heat Pump
Upvc Double Glazing
Freehold
Vendors will need to find onward purchase

Location and Directions

Cann is a peaceful and sought-after hamlet situated to the south east of Shaftesbury, set within the Cranborne Chase Area of Outstanding Natural Beauty. The nearby hilltop Saxon market town of Shaftesbury offers a good range of independent shops, cafes, restaurants and everyday amenities, along with a supermarket, cottage hospital and schooling for various ages. The surrounding countryside provides exceptional walking and cycling routes through some of the most beautiful landscape in the south of England.

Postcode SP7 0BW

What3words ///order.unravel.committee

EPC Graph for Foots Hill, Cann, Shaftesbury

Book a viewing

Or call us to make an enquiry

01747 824547

Restways, High Street, Gillingham, Dorset SP8 4AA

Calculate

Please be aware, these results are for illustrative purposes only and should not be considered as a mortgage quote. These are based on a repayment mortgage and may vary depending on the term and interest rate of your mortgage.

Lender fees may also be applicable. If you would like guidance on the right mortgage for you, we recommend speaking to a mortgage consultant.

Results

Stamp Duty To Pay:

Effective Rate:

Tax Band % Taxable Sum Tax

Are you looking to sell?

Book a Valuation