For Sale 3 Bed For Sale

£450,000

Church Hill, Stalbridge, Sturminster Newton

  • 10 Year New Build Warranty
  • Three Double Bedrooms
  • Three En-Suites
  • Top Floor Living Space
  • Spectacular Far Reaching Views
  • Two Allocated Parking Spaces
  • Close to the Town Centre
  • SAP tba
A rare opportunity to purchase an extraordinary and visionary home, which offers flexible and spacious internal accommodation that is arranged over three levels and provides three double bedrooms plus two en-suites and a separate shower room. The property forms part of a small select development of just seven other properties that have been newly built using the original stone from the former agricultural buildings enabling it to merge and harmonise sympathetically with the surroundings. The development lies towards the fringe of one of Dorset's smallest towns, sitting at the foot of the historic church of St Mary and boasts some spectacular views over Dorset's beautiful Blackmore Vale countryside. This captivating property has been meticulously designed to combine contemporary living at its finest with vaulted spaces and bespoke oak staircases that lead one through the intriguing layout without giving too much of the surprise away. The property has been completed to an exacting standard using high quality fixtures and fittings, which include hand built solid ash kitchen units with granite work surfaces and Bosch appliances, solid oak doors and oak flooring plus carpeting to the bedrooms as well as bathroom and shower room suites by Burlington and tiling to the floors. The property is covered by a ten year structural warranty and is incredibly thermally efficient due to the extensive insulation, heat pumps and solar generated electricity. The property also benefits from modern technology including fibre connectivity (Wessex Internet), Bluetooth enabled mirrors in bathrooms, WIFI enabled central heating and EV Charging enablement. This is a once in a lifetime chance to be the first owner of this desirable and unique home.

2 ST MARY'S BARN, CHURCH HILL, STALBRIDGE

The Property

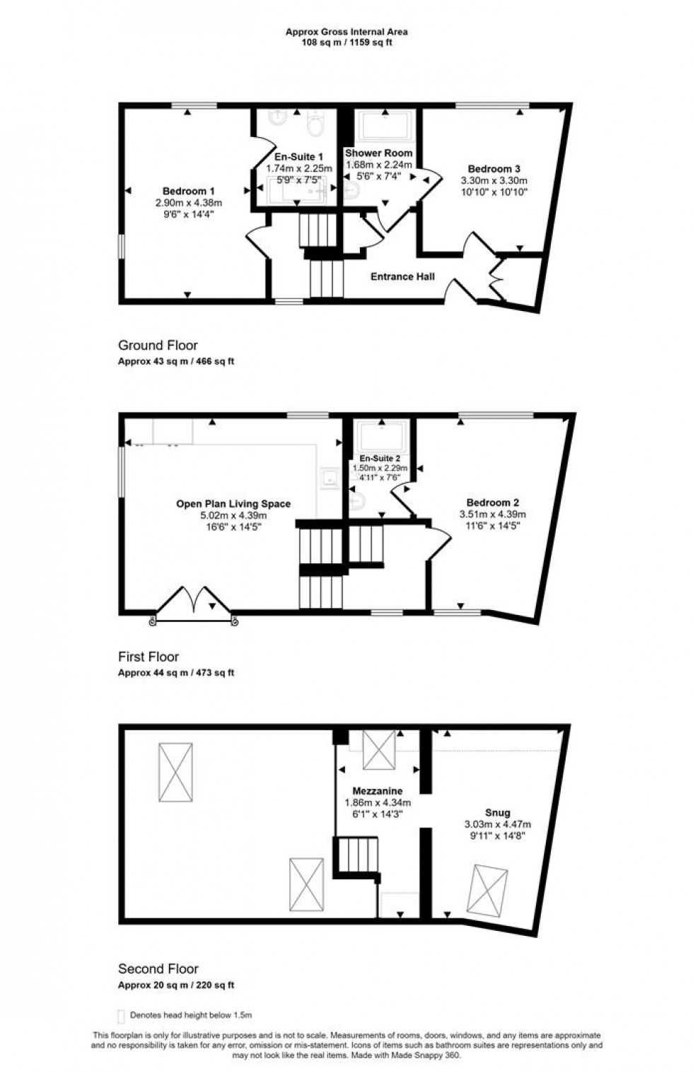
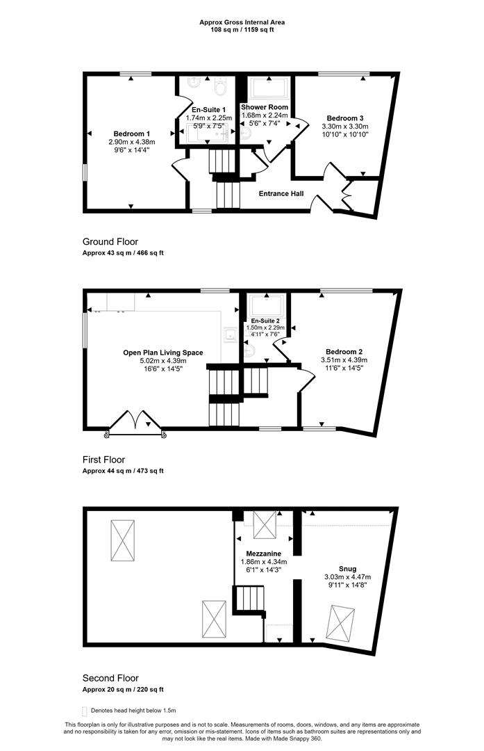
Accommodation

In brief, the inside accommodation is arranged over three floors - on entry there is a welcoming entrance hall, two double bedrooms, one with en-suite bathroom and the other with use of a Jack and Jill shower room. On the first floor there is the kitchen/dining room plus the main double bedroom with an en-suite shower room. On the top floor there is a bright and roomy living room. Outside there are two allocated parking spaces.

Location

Stalbridge

The property is located in the popular Dorset town of Stalbridge, which is reputed to be the county's smallest town, steeped in history and dating back to Saxon times with a 15th Century Church and Market Cross. The town has an approximate population of 2500 and caters well for everyday needs with an award winning supermarket, family run butchers, post office and community run library. There is also a primary school with excellent OFSTED report, dental surgery and public house as well as a variety of takeaway shops. Further facilities are available at Sturminster Newton 4 miles to the East and Sherborne and Shaftesbury both within 7 miles. The town is close to excellent communication links with the A30 and A303 within easy reach and just 3 miles from the mainline train station at Templecombe, serving London, Waterloo and the West Country. There are many nearby by restaurants and pubs that offer a choice of fine dining and traditional cuisine, plenty of country walks to explore the Blackmore Vale and its historic villages and to the east there is Cranborne Chase, a designated area of Outstanding Natural Beauty, which extends all the way from the Stour Valley to the New Forest. The glorious coastline and beaches of Lyme Regis to Lulworth Cove to Studland are an hour’s drive away and form part of the famous Jurassic coast. There are many choices of independent and state schools, all within easy reach and include preparatory, junior and senior schools as well as sixth forms. Please ask us for further information.

Directions

From Sturminster Newton

Leave Sturminster via Bridge Street at the traffic lights go over the bridge and turn right onto the A357. Continue on this road for approximately 5 miles turning left where Stalbridge is signposted. On entering the town go through the single lane onto the High Street and continue onto Church Hill. The development will be found on the right hand side, just before the church, which is on the left hand side. Postcode DT10 2LR.

EPC Graph for Church Hill, Stalbridge, Sturminster Newton

Book a viewing

Or call us to make an enquiry

01258 473030

1 Market House, Market Place, Sturminster Newton DT10 1AS

Calculate

Please be aware, these results are for illustrative purposes only and should not be considered as a mortgage quote. These are based on a repayment mortgage and may vary depending on the term and interest rate of your mortgage.

Lender fees may also be applicable. If you would like guidance on the right mortgage for you, we recommend speaking to a mortgage consultant.

Results

Stamp Duty To Pay:

Effective Rate:

Tax Band % Taxable Sum Tax

Are you looking to sell?

Book a Valuation