For Sale 3 Bed For Sale

Asking Price £285,000

Kings Court Road, Gillingham

  • End of Terrace Home
  • Three Bedrooms
  • Two Reception Rooms
  • Enclosed Rear Garden
  • Close to the Town
  • Completely Modernised
  • One Parking Space
  • Energy Efficiency Rating D
A well presented end of terrace Edwardian home with three bedrooms and two reception rooms, set on a popular residential road in Gillingham. The property is within walking distance of the town centre, shops, doctors and everyday facilities, while also being close to countryside walks, offering a great balance of convenience and outdoor living.

The property combines character with practical modern day living, featuring a modern shaker style kitchen/breakfast room, useful utility and downstairs WC, along with a well proportioned bathroom on the first floor. The rear garden is enclosed and enjoys a north westerly aspect, with areas of lawn and patio seating, as well as a brick built shed at the far end, creating a pleasant space to relax or entertain. There is also parking to the front for one vehicle.

This is a great opportunity to purchase a home in an established part of Gillingham. A viewing is highly recommended to fully appreciate the space, layout and overall feel of the property.

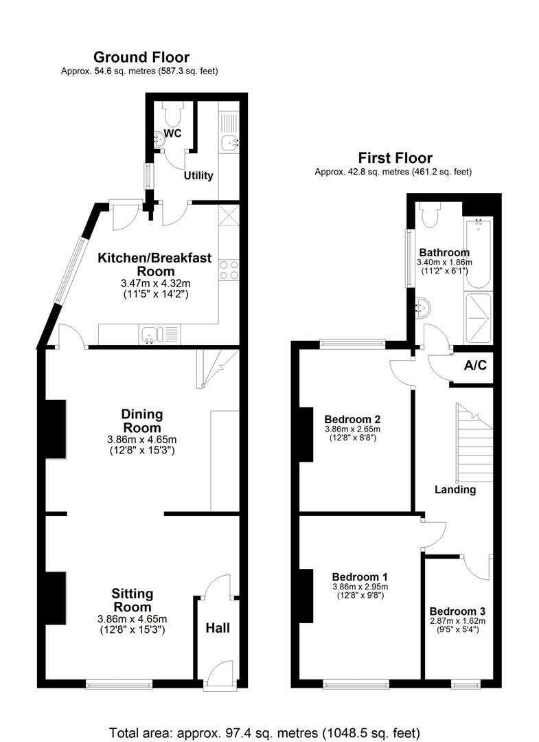
Accommodation

Inside

Ground Floor
The front door opens into a small hall with a door leading into the sitting room. This is a well proportioned reception room with window to the front and opening through to the dining room.
The dining room is a good size and leads through to the kitchen/breakfast room. Fitted with a range of modern shaker style floor and eye level units, the kitchen has wooden work surfaces, tiled splash back, built in cooker and hob, and space for a breakfast table. There is a door to the rear garden and further access to the utility.
The utility provides useful additional space and in turn leads to the downstairs WC, which is fitted with a wash hand basin.

First Floor
Stairs rise to the landing with access to the bathroom and all three bedrooms. There are two double bedrooms and a single bedroom.
The bathroom is a generous size and fitted with a bath, separate shower, wash hand basin and WC. There is also an airing cupboard off the landing.

Outside

Garden
The rear garden is enclosed and enjoys a north westerly aspect. There is a paved seating area to the back of the house with the remainder laid to lawn. A path leads to the brick built shed at the end of the garden.

Parking
There is parking to the front for one vehicle.

Useful Information

Energy Efficiency Rating D
Council Tax Band C
Mains Drainage
Gas Fired Central Heating
Upvc Double Glazing
Freehold
Vendors will need to find onward purchase

Location and Directions

The property is within walking distance to the town centre and mainline train station. Gillingham, is a vibrant market town in North Dorset, offering a wonderful blend of rural charm and modern convenience. Surrounded by rolling countryside yet well-connected by a mainline railway station with direct services to London Waterloo, it’s an increasingly popular choice for families and commuters alike. The town features a good range of everyday amenities, local shops, doctors and leisure facilities and excellent schooling for all ages.

Postcode SP8 4LD

What3words ///waltzes.hourglass.haven

EPC Graph for Kings Court Road, Gillingham

Book a viewing

Or call us to make an enquiry

01747 824547

Restways, High Street, Gillingham, Dorset SP8 4AA

Calculate

Please be aware, these results are for illustrative purposes only and should not be considered as a mortgage quote. These are based on a repayment mortgage and may vary depending on the term and interest rate of your mortgage.

Lender fees may also be applicable. If you would like guidance on the right mortgage for you, we recommend speaking to a mortgage consultant.

Results

Stamp Duty To Pay:

Effective Rate:

Tax Band % Taxable Sum Tax

Are you looking to sell?

Book a Valuation