For Sale 2 Bed For Sale

Guide Price £215,000

Brines Orchard, Templecombe

  • Mid Terraced Home
  • Two Double Rooms
  • Wholly Owned Solar Pannels
  • Good Sized Sitting Room
  • Enclosed Rear Garden
  • Garage and Parking
  • No Onward Chain
  • Energy Efficiency Rating Tbc
A well presented mid-terraced home offering two double bedrooms, situated within a convenient and well established position in the village of Templecombe. The property is offered for sale with no onward chain and will appeal to a range of buyers, including first-time purchasers, downsizers or those seeking a well-connected village setting.

The accommodation is arranged over two floors and provides a comfortable and practical layout. The ground floor is centred around a spacious sitting/dining room, forming the main living space and benefiting from direct access to the rear garden, creating a natural connection between inside and out. The kitchen is fitted in a modern style, while a downstairs W.C. adds further practicality.

On the first floor there are two well proportioned double bedrooms, served by a modern shower room for added convenience.

Externally, the property enjoys a private and enclosed rear garden with a south-westerly aspect, designed for ease of maintenance with patio, gravel and mature planting. A garage is situated in a nearby block, with parking available directly in front and the addition of solar panels further enhances the property’s efficiency and appeal.

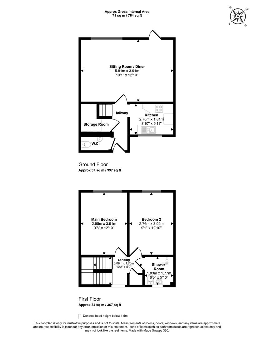
Accommodation

Inside

Ground Floor
The accommodation is entered via a hallway, providing access to the principal ground floor rooms along with a useful downstairs W.C., improving practicality for day-to-day living. There is also a useful storage cupboard with space and plumbing for a washing machine.
The sitting room is a particularly generous and inviting space, offering ample room for both seating and dining arrangements. A feature electric fireplace provides a focal point, while a door leads directly out to the rear garden, creating a natural connection between inside and out and allowing for plenty of natural light.
The kitchen is fitted in a modern style with a range of contemporary units complemented by wood-effect worktops. Both the kitchen and appliances are less than one year old. There is an eye-level oven, induction hob, and space and plumbing for a dishwasher and fridge/freezer. This room enjoys a bright aspect, with a window overlooking the front of the property.

First Floor
On the first floor, a central landing leads to two well proportioned double bedrooms, both offering comfortable accommodation with space for freestanding furniture.
These bedrooms are served by a modern shower room, fitted with a walk-in shower and complementary sanitary ware, creating a practical and well arranged layout.

Outside

Gardens
To the front of the property, steps lead up to the entrance, bordered by attractive planted beds with a variety of shrubs and flowers, creating a welcoming approach.

The rear garden enjoys a south-westerly orientation and has been thoughtfully arranged for ease of maintenance. It is predominantly laid to patio and gravel, with well stocked, mature flower beds adding colour and interest throughout the seasons. This space offers a good degree of privacy and is fully enclosed, with a gate providing rear access. There are several seating areas, ideal for outdoor dining and relaxation.

Parking and Garage
A garage is situated in a nearby block, with parking available directly in front, offering both convenience and practical storage.

Useful Information

Energy Efficiency Rating tbc
Council Tax Band B
Wholly Owned Solar Pannels
Electric Heating
Mains Drainage
Freehold
No Onward Chain

Location and Directions

Templecombe is a well served village with a range of everyday amenities including a shop, primary school and mainline railway station offering direct links to London Waterloo. The nearby towns of Sherborne and Wincanton provide a wider range of facilities including supermarkets, independent shops, restaurants and leisure amenities. The area is well regarded for its surrounding countryside, offering plenty of opportunities for walking and outdoor pursuits.

Postcode BA8 0JL

What3words ///puzzles.blackmail.rigid

Book a viewing

Or call us to make an enquiry

01258 473030

1 Market House, Market Place, Sturminster Newton DT10 1AS

Calculate

Please be aware, these results are for illustrative purposes only and should not be considered as a mortgage quote. These are based on a repayment mortgage and may vary depending on the term and interest rate of your mortgage.

Lender fees may also be applicable. If you would like guidance on the right mortgage for you, we recommend speaking to a mortgage consultant.

Results

Stamp Duty To Pay:

Effective Rate:

Tax Band % Taxable Sum Tax

Are you looking to sell?

Book a Valuation