For Sale 3 Bed For Sale

Offers In Excess Of £450,000

Ivy Cross, Shaftesbury

  • Linked Detached Cottage
  • Three Good Sized Bedrooms
  • Three Reception Rooms
  • Shower Room & Bathroom
  • Sitting in about 0.3 of an Acre
  • In Need of Modernisation
  • No Onward Chain
  • Energy Efficiency Rating F
A detached period cottage believed to date back to the mid-19th century, set within a generous plot of approximately one third of an acre and backing directly onto woodland. The property offers a rare opportunity for renovation and improvement, providing significant scope to create a bespoke home in a highly desirable setting.

The property has been in the same ownership for many years and now requires modernisation throughout, offering buyers the chance to reconfigure and enhance the accommodation to suit modern living. Retaining a number of character features, the cottage presents an appealing blend of period charm and future potential.

The overall plot is a particular feature, with mature gardens and a range of outbuildings offering further possibilities, subject to the necessary permissions. The setting provides a peaceful and private environment while still being within easy reach of local amenities.

The property is offered for sale with no onward chain.

The Property

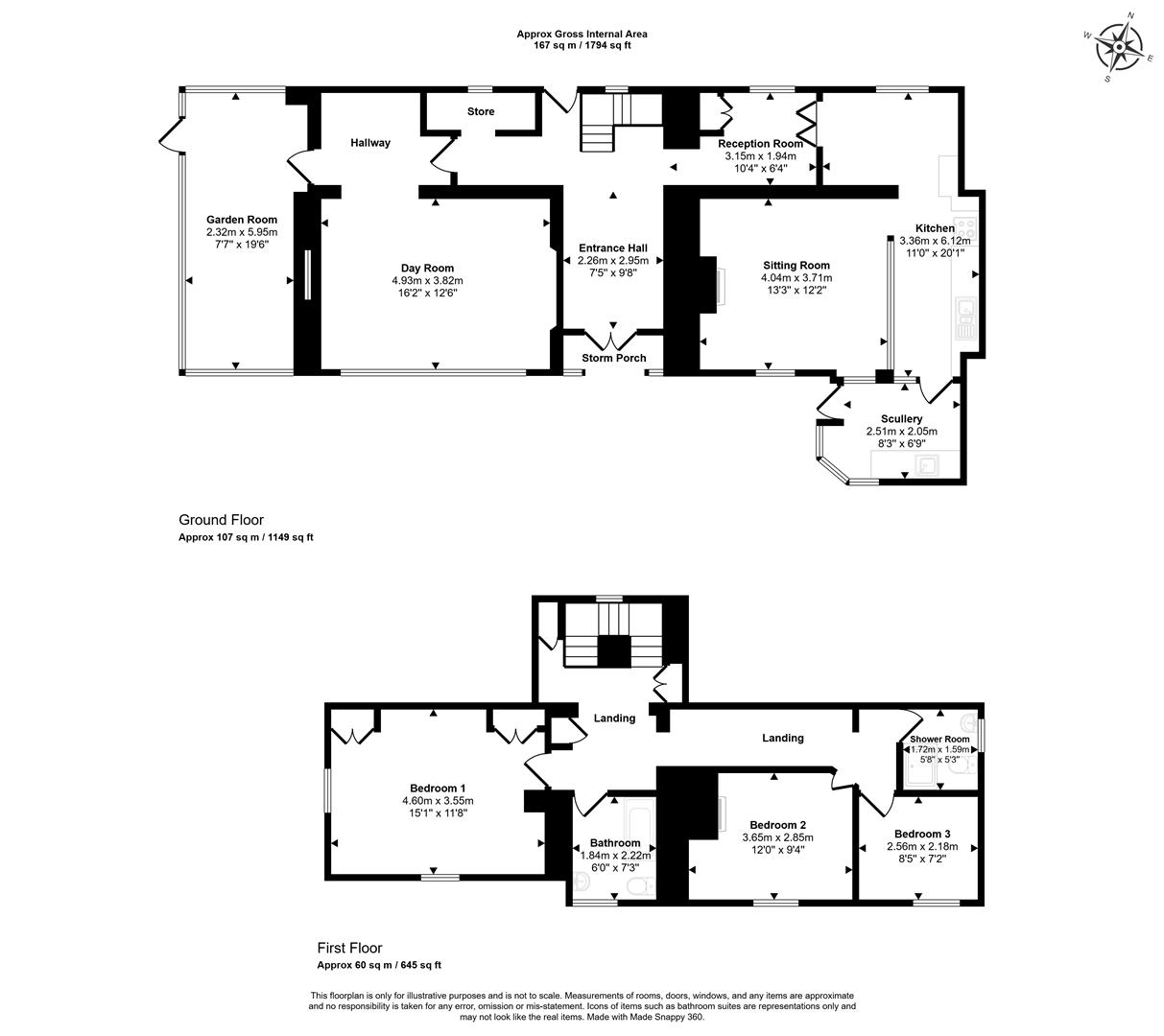
Accommodation

Inside

The accommodation is arranged over two floors and offers a flexible layout with a number of reception spaces.

On the ground floor, an entrance porch leads into a spacious hallway, which provides access to the principal rooms and sets the tone for the character of the property. There are three reception rooms, offering versatile living and dining areas, each with individual features and potential for reconfiguration depending on requirements.

The kitchen offers scope for updating or redesign, with the potential to create a more open-plan arrangement if desired. There are also additional spaces on the ground floor which could be adapted for a variety of uses depending on individual requirements.

Stairs rise to the first floor where the landing leads to three bedrooms, all of which offer good proportions. The accommodation on this level is served by two bathrooms.

Outside

The property is set within a generous plot extending to approximately one third of an acre, offering a mature and well established garden. The grounds back directly onto woodland, providing a high level of privacy and an attractive natural outlook.

There are a number of outbuildings within the garden, offering further potential for storage, workshop use or possible conversion, subject to the necessary consents.

The size and layout of the plot may also offer potential for further development, again subject to planning permission.

Useful Information

Energy Efficiency Rating F
Council Tax Band E
Single Glazing
Oil Fired Central Heating
Mains Drainage
Freehold
No Onward Chain
In Need of Modernisation

Location and Directions

The property is situated within easy reach of the popular market town of Shaftesbury, which offers a range of amenities including shops, schools, cafes and healthcare facilities. The town is well known for its historic character and surrounding countryside.

The area provides excellent access to walking routes and open green spaces, while nearby Gillingham offers a mainline railway station with direct services to London Waterloo.

Postcode - SP7 8DN

What3words - ///strut.verb.social

EPC Graph for Ivy Cross, Shaftesbury

Book a viewing

Or call us to make an enquiry

01747 824547

Restways, High Street, Gillingham, Dorset SP8 4AA

Calculate

Please be aware, these results are for illustrative purposes only and should not be considered as a mortgage quote. These are based on a repayment mortgage and may vary depending on the term and interest rate of your mortgage.

Lender fees may also be applicable. If you would like guidance on the right mortgage for you, we recommend speaking to a mortgage consultant.

Results

Stamp Duty To Pay:

Effective Rate:

Tax Band % Taxable Sum Tax

Are you looking to sell?

Book a Valuation