For Sale 3 Bed For Sale

Asking Price £439,995

The Old Dairy Farm, Hazelbury Bryan, Sturminster Newton

  • Semi Detached Home
  • Three Double Bedrooms
  • Two Reception Rooms
  • Bathroom & En-Suite
  • Garage & Drive
  • Good Sized Garden
  • No Onward Chain
  • Energy Efficiency Rating D
A well presented semi-detached home situated within the sought after Dorset village of Hazelbury Bryan. The property offers well proportioned accommodation arranged over two floors together with a landscaped rear garden, garage and parking. The house provides comfortable living space suited to both everyday living and entertaining and benefits from being close to village amenities whilst also enjoying easy access to the surrounding countryside.

The ground floor offers bright and versatile accommodation including a spacious sitting room with feature fireplace and double doors leading to a separate dining room which in turn opens to the rear garden. The kitchen/breakfast room provides ample space for dining and enjoys views over the garden with direct access outside.

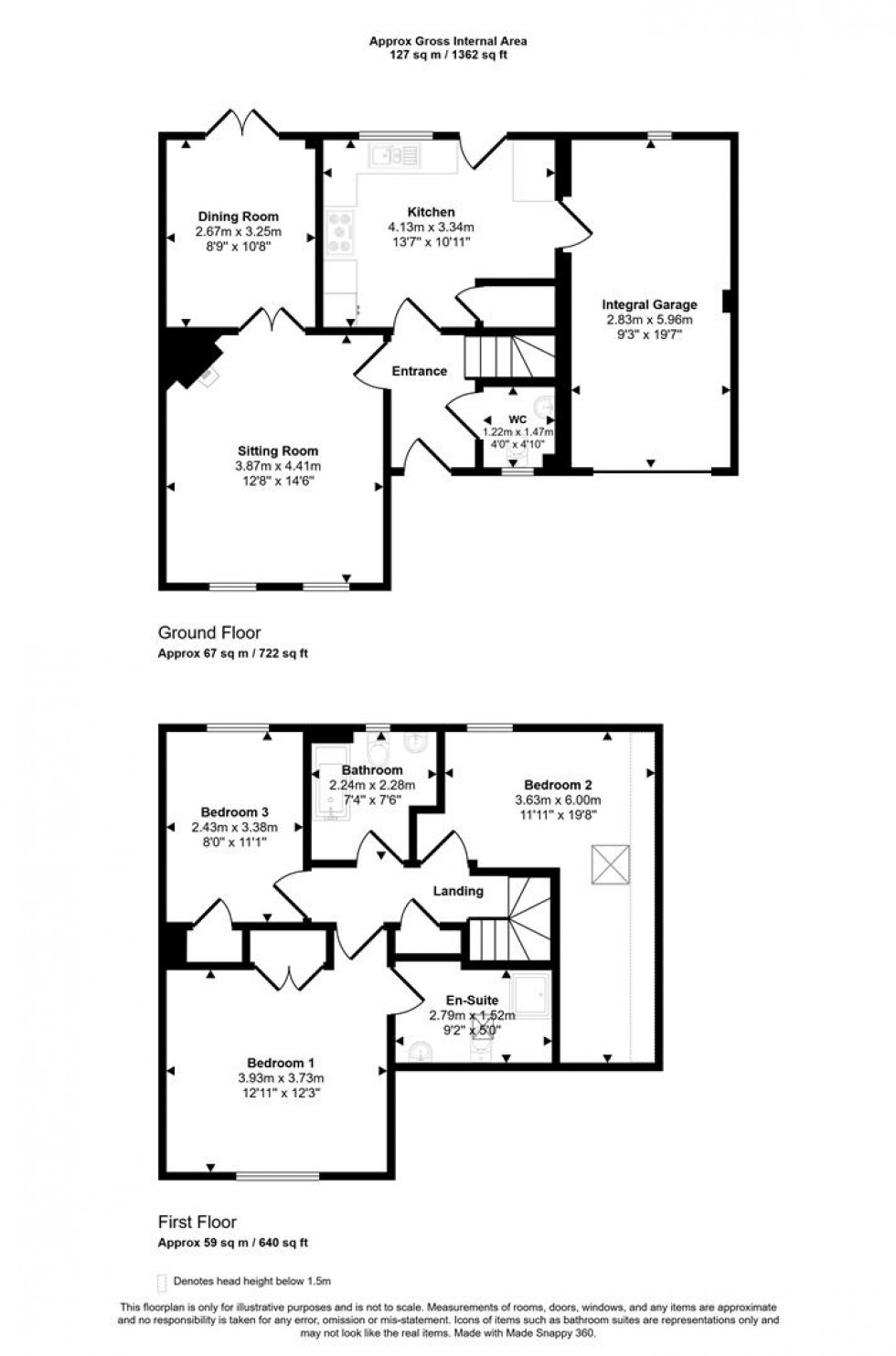
On the first floor there are three double bedrooms together with a family bathroom. The main bedroom benefits from built in wardrobes and an en-suite shower room whilst bedroom two also benefits from fitted storage. The property is offered for sale with no onward chain.

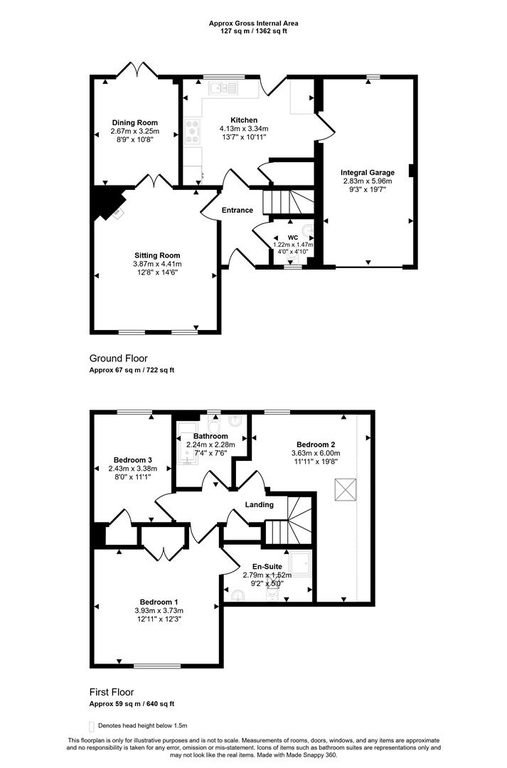
Accommodation

Inside
The property is approached from the drive leading to a storm porch where the front door opens into a bright and welcoming entrance hall which provides access to the principal ground floor rooms together with the staircase rising to the first floor. A cloakroom with WC and wash hand basin is also conveniently located on the ground floor.

The sitting room is a generously sized reception room overlooking the front garden and benefits from a feature fireplace. Double doors lead through to the dining room which provides space for a dining table and chairs and benefits from double doors opening onto the rear garden allowing plenty of natural light into the room.

The kitchen/breakfast room overlooks the rear garden and has a door providing access outside. The kitchen is fitted with a range of wood units together with work surfaces and a Butler style sink with swan neck mixer tap. Integrated appliances include a fridge and dishwasher and there is space within the cupboards for additional appliances. There is also ample space for a table and chairs making it ideal for everyday dining. From the kitchen there is access to the under stairs cupboard and the garage.

On the first floor the landing provides access to the loft space with pull down ladder together with the airing cupboard housing the hot water cylinder. There are three double bedrooms, two of which benefit from built in wardrobes and the third bedroom which has a free standing wardrobe included. The main bedroom also benefits from an en-suite shower room. The accommodation is completed by the family bathroom which is fitted with a bath with mixer tap and shower attachment, pedestal wash hand basin and WC.

Outside

The property benefits from a tarmacadam driveway providing parking for one vehicle and leading to the garage which has an electric up and over door together with light and power. The garage also houses the oil fired central heating boiler and provides space and plumbing for a washing machine together with additional storage.

The rear garden has been attractively landscaped and planted with a variety of trees, shrubs and well stocked borders providing interest throughout the year. There are two paved seating areas suitable for outdoor dining and relaxation and the garden enjoys a sunny aspect throughout the day. The garden also benefits from having an electric sun canopy to the rear of the property. The garden is fully enclosed and benefits from wrought iron gates to the side.

Useful Information

Energy Efficiency Rating D
Council Tax Band E
Sustainable Wood Framed Double Glazed Windows
Oil Fired Central Heating
Mains Drainage
Freehold
No Onward Chain

Location and Directions

Hazelbury Bryan is a well regarded Dorset village surrounded by attractive countryside. The village offers a range of everyday facilities including a village shop, public house, primary school and village hall together with an active local community.

The nearby market towns of Sturminster Newton and Sherborne provide a wider range of shopping, schooling and leisure facilities. Rail services to London Waterloo are available from nearby stations including Sherborne and Templecombe.

Postcode DT10 2ES

What3words president.fond.upholding

EPC Graph for The Old Dairy Farm, Hazelbury Bryan, Sturminster Newton

Book a viewing

Or call us to make an enquiry

01258 473030

1 Market House, Market Place, Sturminster Newton DT10 1AS

Calculate

Please be aware, these results are for illustrative purposes only and should not be considered as a mortgage quote. These are based on a repayment mortgage and may vary depending on the term and interest rate of your mortgage.

Lender fees may also be applicable. If you would like guidance on the right mortgage for you, we recommend speaking to a mortgage consultant.

Results

Stamp Duty To Pay:

Effective Rate:

Tax Band % Taxable Sum Tax

Are you looking to sell?

Book a Valuation