For Sale 2 Bed For Sale

Guide Price £265,000

Bay Road, Gillingham

  • Mid Terrace Cottage
  • Two Double Bedrooms
  • Large Rear Garden
  • Backing onto Fields
  • Close to the Town Centre
  • Feature Wood-Burner in Living Room
  • Newly Carpeted
  • Energy Efficiency Rating - D
A charming 17th century mid-terrace cottage, situated on the rural fringes of Gillingham, offering a wonderful balance of character, space and practicality. This attractive period home has been well cared for over many years and retains a wealth of original features, creating a warm and inviting atmosphere throughout.

The property offers well proportioned accommodation arranged over two floors, with a layout that lends itself well to both everyday living and those seeking a characterful home with further scope to enhance if desired. Improvements carried out by the current owners include the installation of a woodburning stove along with general decorative updates, helping to blend modern comfort with the property’s historic charm.

The cottage enjoys a particularly appealing position on the edge of the town, providing a more peaceful setting while still remaining conveniently close to local amenities. The surrounding area offers easy access to countryside walks and open green spaces, making it well suited to those who enjoy an outdoor lifestyle.

A standout feature of the property is the generous rear garden, extending to approximately 150ft in length and backing onto open fields. This creates a lovely sense of space and privacy, as well as a pleasant outlook, enhancing the overall enjoyment of the property.

The Property

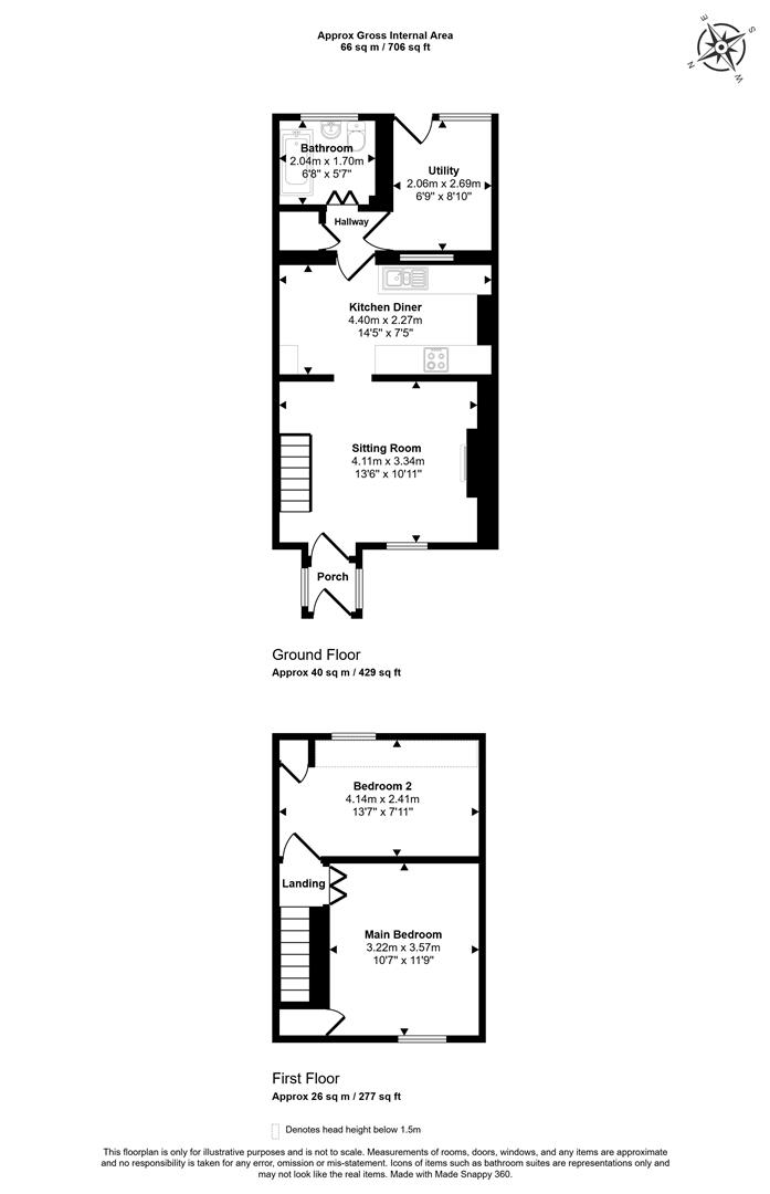
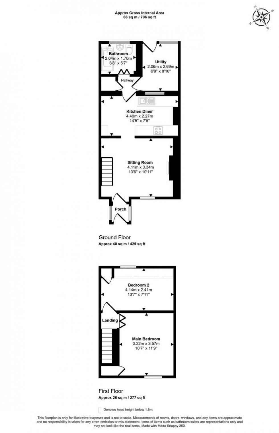
Accommodation

Inside

The accommodation is arranged over two floors and provides a comfortable and well balanced layout throughout. A useful front porch leads into the sitting room, which is a welcoming and cosy space featuring a woodburning stove as a focal point, creating an ideal setting for relaxation.

To the rear of the property, the kitchen/diner offers a traditional style with painted wooden units and ample space for a breakfast or dining table, making it a sociable and practical area for everyday use. The kitchen leads through to a useful utility space, providing additional storage and workspace, as well as direct access to the rear garden.

Also on the ground floor is a bathroom, conveniently positioned off the inner hallway.

On the first floor, there are two well proportioned double bedrooms, both offering comfortable accommodation with space for freestanding furniture and enjoying a pleasant outlook.

Outside

The property benefits from a particularly generous rear garden extending to approximately 150ft in length, offering a rare amount of outdoor space for a property of this type. The garden is mainly laid to lawn with a mature feel, providing a variety of areas suitable for planting, growing or relaxing.

The garden enjoys a good degree of privacy and backs onto open fields, creating an attractive outlook and a sense of seclusion. Towards the end of the garden there is a timber shelter, along with additional space that could be utilised for a variety of purposes depending on individual needs.

Useful Information

Energy Efficiency Rating D
Council Tax Band C
Gas Fired Central Heating
Mains Drainage
Upvc Windows
Freehold
Vendors will need to find onward purchase

Location and Directions

Gillingham is a popular and well served North Dorset town offering a good range of everyday amenities including independent shops, supermarkets, schools and healthcare facilities. The town also benefits from a mainline railway station providing direct services to London Waterloo, making it a convenient location for commuters.

The property is situated on the rural edge of the town, giving easy access to surrounding countryside and a variety of scenic walking routes. Despite this peaceful setting, the town centre and local amenities are within approximately a 10–15 minute walk, offering a convenient balance between town and country living.

Postcode SP8 4EF

What3words //mopped.headless.penny//

EPC Graph for Bay Road, Gillingham

Book a viewing

Or call us to make an enquiry

01747 824547

Restways, High Street, Gillingham, Dorset SP8 4AA

Calculate

Please be aware, these results are for illustrative purposes only and should not be considered as a mortgage quote. These are based on a repayment mortgage and may vary depending on the term and interest rate of your mortgage.

Lender fees may also be applicable. If you would like guidance on the right mortgage for you, we recommend speaking to a mortgage consultant.

Results

Stamp Duty To Pay:

Effective Rate:

Tax Band % Taxable Sum Tax

Are you looking to sell?

Book a Valuation