For Sale 3 Bed For Sale

50% Shared Ownership £150,000

Glovers Road, Stalbridge, Sturminster Newton

  • *50% Shared Ownership*
  • Semi Detached Home
  • Three Bedrooms
  • Enclosed Rear Garden
  • Garage and Parking
  • Built in 2021
  • Great Location
  • Energy Efficiency Rating B
An exciting opportunity to purchase a modern three bedroom semi-detached home, built in 2021, offered for sale on a shared ownership basis. Situated within a popular residential setting on the edge of Stalbridge, the property presents an excellent option for buyers looking to step onto the property ladder in an affordable and accessible way.

The home has been designed with modern living in mind and offers a practical and well balanced layout throughout, creating a comfortable and easy to manage living environment. The interiors are bright and welcoming, with a good sense of space across both floors, making it well suited to everyday living. The main bedroom benefits from an en-suite shower room, adding to the overall convenience of the accommodation.

Externally, the property benefits from an enclosed rear garden along with off-road parking and a garage, providing a manageable outdoor space with room to relax and entertain. The overall setting offers a pleasant residential environment, while remaining within easy reach of local amenities and surrounding countryside.

For further information on the eligibility criteria for this shared ownership property, please contact the office.

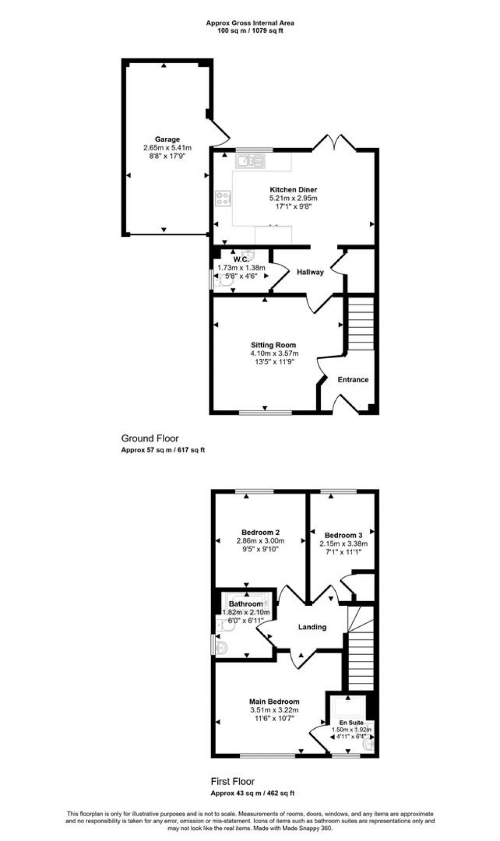
The Property

Accommodation

Inside

The accommodation is entered via a front door into an entrance hall which provides access to the sitting room together with the staircase rising to the first floor.

The sitting room is a well proportioned reception space offering ample room for seating and everyday living.

The kitchen/dining room is fitted with a range of modern units and worktop surfaces and incorporates an integrated dishwasher, fridge/freezer and oven with hob. There is also space and plumbing for a washing machine. The room offers ample space for a dining table and benefits from French doors opening onto the rear garden, allowing for plenty of natural light.

A cloakroom with WC is also conveniently located on the ground floor.

On the first floor, the landing leads to three bedrooms. The main bedroom benefits from an en-suite shower room, while one of the additional bedrooms includes built-in storage. The accommodation is completed by the family bathroom, fitted with a bath, wash hand basin and WC.

Outside

The property benefits from off road parking together with access to the garage.

The rear garden is enclosed and enjoys a good degree of privacy. It is predominantly laid to lawn with a decking area providing space for outdoor seating and entertaining. A pedestrian door provides direct access into the garage, and there is also a garden shed for additional storage.

Useful Information

*50% Shared Ownership*
Energy Efficiency Rating B
Council Tax Band C
Gas Fired Central Heating
Upvc Double Glazing
Mains Drainage
Estate Charge - £32.10 pcm
Rent - £523.12 pcm
Lease Management - £27.49 pcm
Building Insurance - £16.11 pcm
Monthly charges mentioned above payable to Heylo
Vendor will need to find onward purchase

Location and Directions

Stalbridge is Dorset’s smallest town and offers a range of everyday amenities including an independent supermarket, post office, café, public house and primary school. The town has a strong community feel and is surrounded by attractive countryside, ideal for walking and outdoor pursuits.

Further facilities can be found in the nearby towns of Sturminster Newton and Sherborne, both offering a wider selection of shops, schooling and leisure facilities, together with mainline rail links. Additional rail connections are available from Templecombe, providing convenient access to London Waterloo.

Postcode DT10 2FP

What3words ///sofas.down.battle

Book a viewing

Or call us to make an enquiry

01258 473030

1 Market House, Market Place, Sturminster Newton DT10 1AS

Calculate

Please be aware, these results are for illustrative purposes only and should not be considered as a mortgage quote. These are based on a repayment mortgage and may vary depending on the term and interest rate of your mortgage.

Lender fees may also be applicable. If you would like guidance on the right mortgage for you, we recommend speaking to a mortgage consultant.

Results

Stamp Duty To Pay:

Effective Rate:

Tax Band % Taxable Sum Tax

Are you looking to sell?

Book a Valuation