For Sale 2 Bed For Sale

Guide Price £185,000

Truman Terrace, Henstridge

  • End Of Terraced Home
  • Two Double Bedrooms
  • Built in Wardrobe/Storage Space
  • Close to Village Centre
  • Good Sized Rear Garden
  • Allocated Parking Space
  • No Onward Chain
  • Energy Efficiency Rating C
A well presented end of terrace home situated within the popular village of Henstridge. The property offers well arranged accommodation set over two floors together with an enclosed rear garden enjoying a south-westerly aspect.

The ground floor provides comfortable living space designed for everyday use, with a bright reception room that opens directly onto the garden, allowing natural light to flow through the room and creating a pleasant connection between the indoor and outdoor spaces. The property also benefits from a useful external storage room which runs the length of the side of the house, providing excellent space for bicycles, garden equipment or general storage.

Upstairs the property offers two double bedrooms and a family bathroom, creating well balanced accommodation suited to a range of buyers. The home also benefits from an allocated parking space and is offered for sale with no onward chain.

Henstridge is a well regarded village located on the Dorset/Somerset border, enjoying a convenient position for access to nearby towns and surrounding countryside.

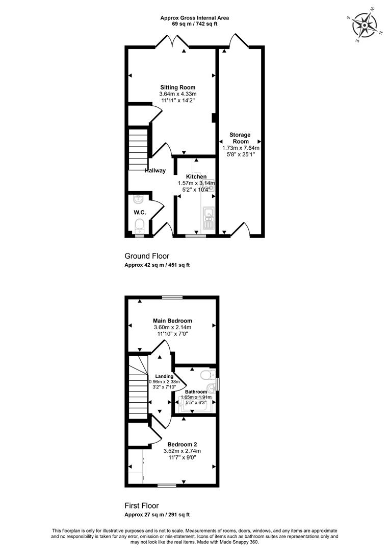
Accommodation

Inside
The property is entered through a front door into the hallway which provides access to the main ground floor rooms together with the staircase rising to the first floor. A WC is also conveniently located on the ground floor.

The sitting room is a well proportioned reception space providing ample room for seating and everyday living. French doors open onto the rear garden allowing plenty of natural light into the room.

The kitchen is fitted with a range of units and worktop space and incorporates a built-in electric oven with electric hob. There is also space and plumbing for a washing machine together with space for a fridge freezer.

On the first floor the landing leads to two double bedrooms. Bedroom two benefits from built in wardrobe space providing useful storage. The accommodation is completed by the family bathroom which is fitted with a bath, wash hand basin and WC.

Outside

The rear garden is enclosed and enjoys a south-westerly aspect. The garden is mainly laid to lawn with a patio area suitable for outdoor seating and dining.

A greenhouse is positioned within the garden and there is also a useful external storage room running the length of the side of the property, providing additional storage for bicycles, tools or garden equipment. The property also benefits from an allocated parking space.

Useful Information

Energy Efficiency Rating C
Council Tax Band B
Electric Heating
Upvc Double Glazed Windows
Mains Drainage
Freehold
No Onward Chain

Location and Directions

Henstridge is a well served Somerset village offering a range of everyday amenities including a village shop, public houses, primary school and community facilities. The village enjoys a convenient position close to the Dorset and Somerset border and provides good access to the surrounding countryside.

The nearby towns of Sherborne, Wincanton and Sturminster Newton offer a wider range of shopping, schooling and leisure facilities. Mainline railway services to London Waterloo are available from Sherborne and Templecombe.

Postcode BA8 0AT

What3words ///frail.grades.armful

EPC Graph for Truman Terrace,  Henstridge

Book a viewing

Or call us to make an enquiry

01258 473030

1 Market House, Market Place, Sturminster Newton DT10 1AS

Calculate

Please be aware, these results are for illustrative purposes only and should not be considered as a mortgage quote. These are based on a repayment mortgage and may vary depending on the term and interest rate of your mortgage.

Lender fees may also be applicable. If you would like guidance on the right mortgage for you, we recommend speaking to a mortgage consultant.

Results

Stamp Duty To Pay:

Effective Rate:

Tax Band % Taxable Sum Tax

Are you looking to sell?

Book a Valuation