For Sale 4 Bed For Sale

Asking Price £550,000

Tarrant Keyneston

  • Detached Grade II Listed Cottage
  • Three Double Bedrooms
  • Four Reception Rooms
  • En-Suite & Two Bathrooms
  • Two Garages
  • Large Mature Garden
  • Versatile Accommodation
  • Energy Efficiency Rating F
A truly enchanting Grade II listed detached cottage dating back to the 1600s, set within just over a third of an acre in the heart of the charming village of Tarrant Keyneston. Rich in character and history, this beautiful home blends period features with versatile living space, offering a rare opportunity to own a substantial village property with scope for multi-generational living or income potential.

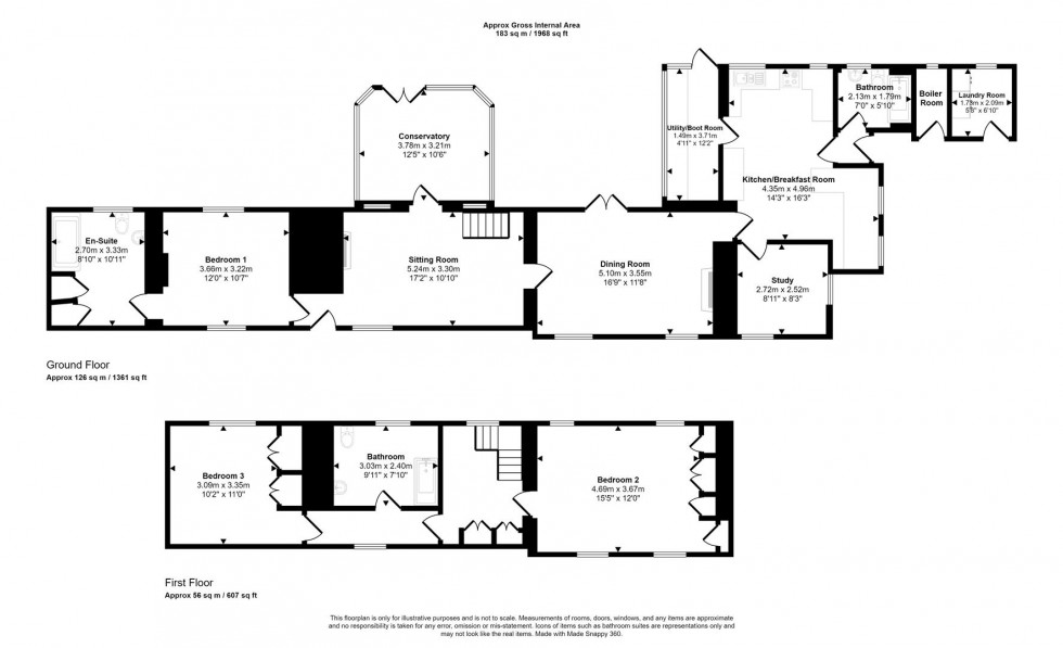
The accommodation is both generous and flexible, currently arranged to provide up to four double bedrooms and four reception areas. The ground floor layout has previously been utilised as a successful Bed and Breakfast, demonstrating the adaptability of the space, with a downstairs double bedroom benefitting from fitted wardrobes, its own ensuite and separate hot water cylinder operated via immersion heating.

Character features are evident throughout, including an impressive inglenook fireplace and exposed beams in the sitting room, creating a warm and inviting atmosphere. The dining room enjoys a wood burner and a traditional latch door leading into the kitchen/breakfast room, while a double-aspect study with fitted bookshelves offers further flexibility as a fourth bedroom if required. All bedrooms benefit from fitted wardrobes, adding to the practicality of this charming home.

Outside, the property is set well within its mature and beautifully landscaped grounds, enjoying a south to south-westerly aspect and backing onto open fields, providing a wonderful sense of privacy and connection to the surrounding countryside.

Accommodation

Inside
Entrance hall leading to the principal reception rooms. The sitting room is a delightful space with exposed beams and an impressive inglenook fireplace as its focal point. The conservatory provides additional living space with views over the garden.
The dining room, complete with wood burner, connects through a traditional latch door to the kitchen/breakfast room. The kitchen is presented in a modern country style with tiled flooring and integrated fridge with pull-out shelves and integrated dishwasher. A lobby off the kitchen provides access to a covered external area, boiler room and separate laundry room. An air sourced heat pump is located on the outer wall of the laundry room.
A versatile double-aspect study with fitted bookshelves offers flexibility as a fourth bedroom if required. The ground floor double bedroom features fitted wardrobes, an ensuite and its own hot water cylinder. There is also a further bathroom on the ground floor.
Two further generous double bedrooms, both with fitted wardrobes, and a family bathroom. A spacious landing connects the rooms and enhances the sense of light and flow on the first floor, with attractive character features continuing upstairs in keeping with the age and charm of the property.

Outside

The property sits in grounds extending to just over a third of an acre, enjoying a south/south-westerly orientation and backing onto open fields. The gardens are beautifully landscaped over two terraces and thoughtfully planted with a wide variety of trees, shrubs and flowering borders, along with a pond.
A formal garden area to the side includes a shed and greenhouse, mature beds and a productive vegetable patch. There are numerous fruit bushes including raspberry, blackcurrant, redcurrant, loganberry, gooseberry and strawberry, together with fruit trees including greengage, pear, cherry, apple and plum, all productive. Steps from the upper terrace lead down to further garden areas to the rear of the cottage, creating a wonderfully private and magical outdoor setting.
There are two timber garages (4.80m x 2.74m and 5.23m x 2.92m), both with light and power.

Useful Information

Energy Efficiency Rating F - Grade II Listed
Council Tax Band F
Air Sourced Heat Pump
Some Secondary Glazing and uPVC
Septic Tank Drainage - sole use
Freehold

Location and Directions

Tarrant Keyneston is a small and picturesque Dorset village nestled within the Tarrant Valley, surrounded by rolling countryside and open farmland. The village enjoys a peaceful rural setting while remaining within easy reach of Blandford Forum and the wider amenities of the region. The area is well regarded for its scenic walks, strong community feel and access to some of Dorset’s most beautiful countryside.
Postcode DT11 9JG

EPC Graph for Tarrant Keyneston

Book a viewing

Or call us to make an enquiry

01258 473030

1 Market House, Market Place, Sturminster Newton DT10 1AS

Calculate

Please be aware, these results are for illustrative purposes only and should not be considered as a mortgage quote. These are based on a repayment mortgage and may vary depending on the term and interest rate of your mortgage.

Lender fees may also be applicable. If you would like guidance on the right mortgage for you, we recommend speaking to a mortgage consultant.

Results

Stamp Duty To Pay:

Effective Rate:

Tax Band % Taxable Sum Tax

Are you looking to sell?

Book a Valuation