For Sale 3 Bed For Sale

Offers In Excess Of £635,000

Fifehead Magdalen, Gillingham

  • Spacious Barn Conversion
  • Flexible Accommodation
  • Three Double Bedrooms
  • Bathroom & Two En-Suites
  • Two Reception Rooms
  • Double Garage & Parking
  • Attractively Designed Garden
  • Energy Efficiency Rating E
Irresistible Barn Conversion with Annexe in a Hidden Dorset Gem:-

Set within an exclusive development of just three beautifully converted barns in the picturesque village of Fifehead Magdalen, this attached 2,404 sq ft barn conversion offers that rare mix of countryside tranquillity, striking architecture, and incredible flexibility.

Step inside and be captivated by the fabulous vaulted ceiling of the kitchen/dining room, and the full-height arched windows and doors that open to the garden and fill the sitting room with natural light. You will find exposed beams at every turn, and the crackle of not one, but two wood burners. The “showstopping” kitchen/dining room is the true heart of this home — a dramatic vaulted space with plenty of storage, character stone flooring - perfect for relaxed family living or lively gatherings with friends. A cloakroom and utility room add a practical solution for keeping things tidy. A double bedroom with an en-suite bathroom complete the ground floor. Upstairs, the mezzanine study makes work-from-home a joy, while a generous double bedroom also benefits from an en-suite.

The attached annexe can be tailored to meet your own needs— you will find a galleried bedroom, spacious living/dining room, bathroom, and kitchenette — perfect for guests and family. By creating a separate entrance, there is income for holiday lets or long term rental. Outside, the charm continues: a sunny, private garden perfect for long summer lunches, a double garage, and ample parking. From your doorstep, enjoy miles of scenic countryside walks, or take a short drive to the market towns of Shaftesbury and Gillingham — the latter offering mainline trains to London.

Whether you’re seeking a unique full-time residence or a magical holiday retreat, this is country living at its most stylish, full of character, warmth, and endless possibilities.

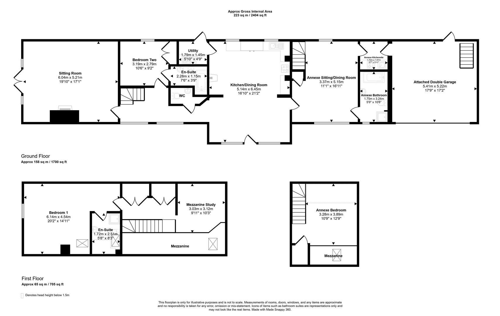
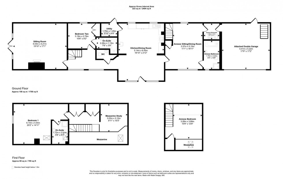
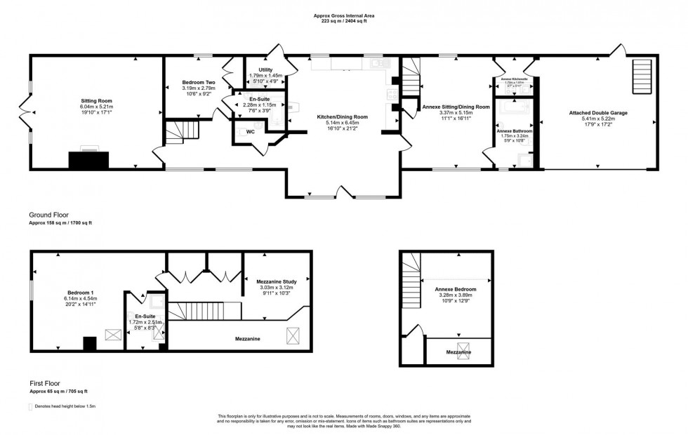
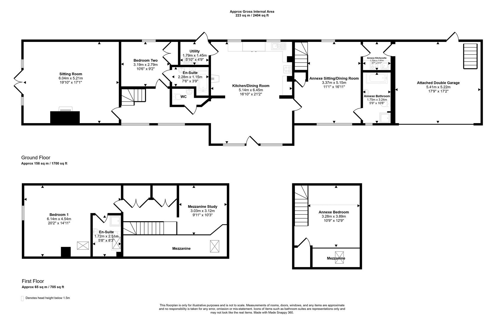
The Property

Accommodation

Inside

Ground Floor
The property is approached from the drive onto a paved frontage with shallow steps that lead down to the arched stone entrance, which has full height windows and a door that opens into a fabulous kitchen/dining room. The ceiling is vaulted with exposed timbers and there is a feature lintel shelf. The kitchen area is fitted with a range of country style units consisting of floor cupboards with drawers and eye level cupboards. You will find granite work surfaces with a tiled splash back and an inset sink with a swan neck aerator mixer tap. The side by side fridge and freezer are integrated with storage cupboards beneath and there is an electric 'Rangemaster' cooker with a ceramic hob. The wood burner adds warmth to the room and a great spot for coffee on a chilly morning. For appearance and practicality, the floor is laid in a stone tile that continues into the hall, cloakroom and utility.

From the kitchen/dining room there is a door into the utility room, which in turn, has a stable door leading out to the rear of the barn. Also, from the kitchen/dining room is a door to the annexe and an opening to an inner hall, which has stairs rising to the first floor and doors to the sitting room, bedroom and the cloakroom, which has a WC and wash hand basin plus space for coats, boots and shoes.

The spacious sitting room has arched double doors with full height windows to either side that open to the garden plus character features that include exposed ceiling beams and some brick walls plus wood flooring and a fireplace with a log burner. A wonderful room with a great ambiance. You will also find a double bedroom with fitted wardrobes and an en-suite bathroom - ideal for future proofing!

First Floor
On this floor, you will find a galleried landing with built in wardrobes and the airing cupboard housing the hot water cylinder, a mezzanine study space and a well proportioned double bedroom with an en-suite shower room.

The Annexe
The accommodation is arranged over two floors - on the ground floor you will find a spacious double aspect sitting/dining room with stairs rising to the first floor and doors leading off to the bathroom and kitchenette. From the kitchenette there is access to the double garage. On the first floor there is a good sized galleried double bedroom with storage drawers and built in wardrobe. The annexe is easily incorporated into the main accommodation and there is the potential to create a separate access for the annexe that will open up many options.

Outside

Garage and Parking
The property is accessed from the lane onto a sweeping drive that is laid to stone chippings. It leads under the arch where there is a central island planted with trees and shrubs. The barn is directly in front with the garage and parking to the right hand side. There is ample space to park three to four cars. The double garage has two timber doors that open out and benefits from light and power. There is loft storage and a personal door to the rear and into the kitchenette.

Garden
At the back of the barn, you will find a log store and the oil tank plus a gate to the lane. A stepping stone path leads along the back to the main body of the garden, which lies to the side of the property. There is a good sized paved seating area with shallow steps rising to the decked seating area and the lawn. The garden is planted with a range of mature trees and shrubs plus flowers plus a raised bed, laid to stone chippings that provides an ideal spot for plant pot display. This attractively designed garden enjoys a sunny and private aspect. You will also find a summerhouse and outside water tap.

Useful Information

Energy Efficiency Rating E
Council Tax Band F
Sustainable Wood Framed Double Glazing
Oil Fired Central Heating
Drainage - Private Treatment Plant for the three barns
Freehold

Location and Directions

Fifehead Magdalen is a small, picturesque village in Dorset’s Blackmore Vale, about three miles from Gillingham and five miles from Shaftesbury. Steeped in history, it takes its name from “five hides” of land dedicated to St Magdalene and is home to the 14th-century parish church of St Mary Magdalene, with its notable Newman chapel. Surrounded by rolling countryside, the village lies close to Fifehead Wood, a tranquil ancient woodland rich in wildlife and bluebells in spring, and is crossed by the Hardy Way long-distance walking route. Though peaceful and rural, it is well-placed for amenities, with Gillingham offering shops, a Waitrose, and a mainline railway station to London, and Shaftesbury providing cafés, independent stores, healthcare, and cultural attractions. Larger towns such as Sherborne, Salisbury, and Bath are all within comfortable reach, making Fifehead Magdalen an idyllic countryside setting with excellent access to facilities.
Postcode - SP8 5RR
What3words - ///feuds.outsmart.comet

EPC Graph for Fifehead Magdalen, Gillingham

Book a viewing

Or call us to make an enquiry

01747 824547

Restways, High Street, Gillingham, Dorset SP8 4AA

Calculate

Please be aware, these results are for illustrative purposes only and should not be considered as a mortgage quote. These are based on a repayment mortgage and may vary depending on the term and interest rate of your mortgage.

Lender fees may also be applicable. If you would like guidance on the right mortgage for you, we recommend speaking to a mortgage consultant.

Results

Stamp Duty To Pay:

Effective Rate:

Tax Band % Taxable Sum Tax

Are you looking to sell?

Book a Valuation