For Sale 4 Bed For Sale

Offers In Excess Of £400,000

Mill Street, Wincanton

  • Grade II Listed Terraced Cottage
  • Flexible Accommodation
  • Four/Five Double Bedrooms
  • Two/Three Reception Rooms
  • Two Bathrooms
  • Large Sunny Garden
  • Town Centre Location
  • Energy Efficiency Rating E
***MOTIVATED VENDOR***A fantastic chance to purchase a distinctive Grade II Listed mid terraced period cottage, offering around 2071 sq. ft./192 sq. m. of internal space with flexible room usage arranged over multi levels and four/five double bedrooms. The property lies in a prime and highly sought after area of the town and is within walking distance to all amenities. Wincanton offers good shopping facilities from major supermarkets such as Lidl and Morrisons to many independent shops, including a butcher, bakers and jewellers. There are many choices of takeaway providers, public houses, schools catering for all ages and there is a doctors surgery. We believe that the property dates to the 18th century and retains a whole host of character features, including the original flagstone floor and gutter in the cellar, paned glass cottage windows and some sash style windows with deep sills, exposed ceiling beams and timber framework, exposed floorboards and fireplace. The property has been a very much loved and enjoyed family home to our sellers for the last five years. During this time it has been well cared for and improved with a new gas fired central heating boiler, the kitchen has been updated with new flooring and underfloor heating and the outside has benefitted from landscaping to the side - creating terraced seating and entertaining areas. This is an opportunity not to be missed - it is not often that such a special home becomes available with such excellent inside and outside space and in this desirable location.

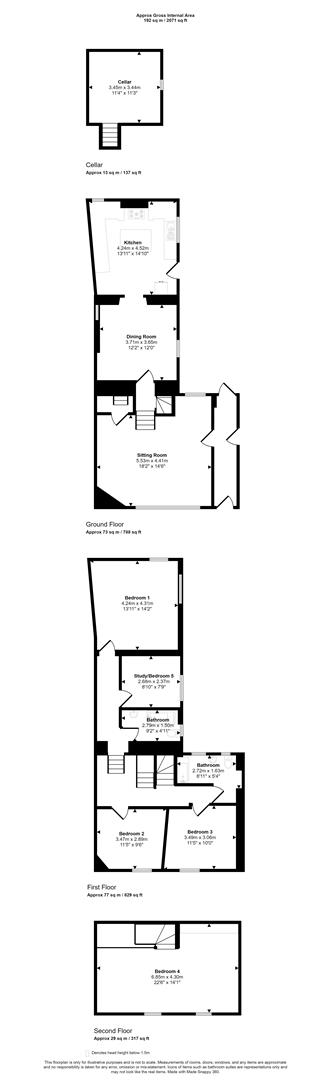
ACCOMMODATION

Entry Level

Entrance Hall

Original style panelled timber door opens into a welcoming and long entrance hall. Recessed ceiling lights. Coat hooks. Radiator. Cupboard fitted with shelves and housing the electrical consumer unit and meter. Stone tiled floor. Part glazed door to the rear garden and white panelled door and shallow step down into the:-

Sitting Room

Fabulous large bow paned glass window with deep sill to the front and paned glass window with deep sill to the rear. Recessed ceiling lights. Smoke detector. Original exposed ceiling beam. Radiator. Power points. Fireplace with timber mantel and wood burner. Door opening to steps leading down to the cellar, which is fitted with light, power and a radiator. Steps rising to the:-

Garden Level

Dining Room

Just before entering the dining room there is a small landing with stairs rising to the first floor and latch door into the dining room. Paned glass sash windows to either side. Recessed ceiling lights. Radiator. Power points. Wall cupboard sunken into the wall. Exposed painted floorboards. Opening and few steps down into the:-

Kitchen

Cottage style window with deep sill to the rear, paned glass window overlooking the side paved seating area and part glazed door opening to the seating area. Recessed ceiling and pendant lights. Wall mounted gas fired central heating boiler. Power points. Fitted with a range of country style kitchen units consisting of pull out spice rack, floor cupboards with corner carousel and eye level cupboards and cabinets with counter lighting under. Generous amount of quartz work surfaces with matching upstand and one and half bowl ceramic sink and drainer with swan neck mixer tap. Space and plumbing for a washing machine. Integrated dishwasher. Space for a range style cooker with tiled splash back, extractor hood over and tray/chopping board spaces to either side. Space for an American style fridge/freezer. Wood effect flooring with underfloor heating.

First Floor

Landing

Stairs rise and return to the first floor landing. Recessed ceiling lights. Smoke detector. Exposed ceiling beam. Wall mounted book/storage shelves. Radiator. Power points. Stairs rising to the second floor and to the upper first floor. Doors to the bathroom, bedroom three and to:-

Bedroom Two

Original paned glass sash window with deep sill to the front of the property. Exposed painted ceiling beam. Recessed ceiling lights. Wall shelves. Radiator. Power points.

Bedroom Three

Original paned glass sash window with deep sill to the front of the property. Exposed painted ceiling beam. Recessed ceiling lights. Radiator. Power points.

Bathroom

Two paned glass cottage windows with deep tiled sills to the rear aspect. Recessed ceiling lights. Exposed ceiling beam. Wall mounted bathroom cabinet. Heated towel rail. Fitted with a modern suite consisting of low level WC, pedestal wash hand basin with tiled splash back and bath with wood panelled side and tiles splash back. Wood effect vinyl flooring.

Upper First Floor Level

Landing

Ceiling light. Radiator. Doors to the bathroom, study/bedroom five and to:-

Bedroom One

Enjoying a double outlook with cottage style window and deep sill to the rear and large paned glass sash window to the side. Access to the loft space. Recessed ceiling lights. Radiator. Power points.

Study/Bedroom Five

Sash window to the side aspect. Ceiling light. Radiator. Power points.

Bathroom

Paned glass window with tiled sill to the side elevation. Recessed ceiling lights. Heated towel rail. Fitted with a suite consisting of bath with mixer tap and shower attachment, choice of hand held or monsoon shower head, folding screen plus full height tiling to the surrounding walls, pedestal wash hand basin and low level WC. Wood effect flooring.

Second Floor

Bedroom Four

Stairs rise and curve up to a fabulous part galleried room - great teenage den or principal bedroom. Two windows to the front with view of the church. Wonderful exposed timber framework. Recessed ceiling lights. Smoke detector. Radiator. Power and telephone points.

Outside

Garden

To the rear of the cottage there is a split level sun terrace with plenty of space for alfresco dining/entertaining with the rest of the garden being laid to lawn and path leading down to the bottom of the garden where there is a timber garden shed. There are some shrub and flower beds and a mature tree. The garden provides ample opportunity to landscape to one's own choice. There is also an outside tap. The large garden has good privacy and a sunny aspect.

Useful Information

Energy Efficiency Rating E - Grade II Listed
Council Tax Band E
Mostly Original Windows
Gas Fired Central Heating from a Combination Boiler
Mains Drainage
Freehold
Please note: The photographs were taken previously when the owners were in residence. The property is now tenanted and may therefore present slightly differently.

Directions

From Gillingham

Head out of Gillingham on the Wyke Road in the direction of Wincanton. Join the A303 towards Exeter and Wincanton. Come off at the next junction and follow signs for the town centre - passing Morrisons and Lidls on your right hand side. At the mini roundabout take the first exit onto the one way system. Go up the hill with the church on your right. At the top of the hill turn left to Bruton and then immediately left into Mill Lane. The property is on the right hand side towards the end of the lane.
Postcode BA9 9AP

EPC Graph for Mill Street, Wincanton

Book a viewing

Or call us to make an enquiry

01747 824547

Restways, High Street, Gillingham, Dorset SP8 4AA

Calculate

Please be aware, these results are for illustrative purposes only and should not be considered as a mortgage quote. These are based on a repayment mortgage and may vary depending on the term and interest rate of your mortgage.

Lender fees may also be applicable. If you would like guidance on the right mortgage for you, we recommend speaking to a mortgage consultant.

Results

Stamp Duty To Pay:

Effective Rate:

Tax Band % Taxable Sum Tax

Are you looking to sell?

Book a Valuation