For Sale 4 Bed For Sale

Guide Price £650,000

Milton On Stour, Gillingham

  • Four Bedroom Detached Home
  • Efficient Air Source Heat Pump
  • Underfloor Heating Downstairs
  • Beautiful Rural Views
  • Less than Ten Years Old
  • Popular Village Location
  • Shops and Amenities Nearby
  • Energy Performance Rating C
Set on the edge of the village of Milton on Stour, this modern detached home occupies a peaceful position backing directly onto open fields, offering a sense of space and a pleasant rural outlook while remaining within easy reach of Gillingham and its wide range of amenities. Built less than ten years ago, the property has been carefully maintained and tastefully decorated throughout, creating a well balanced and comfortable home suited to modern family living.

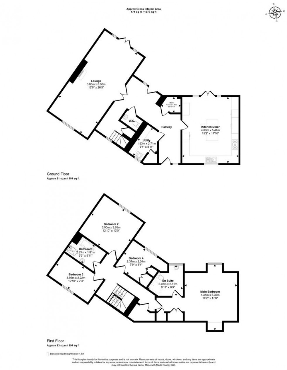
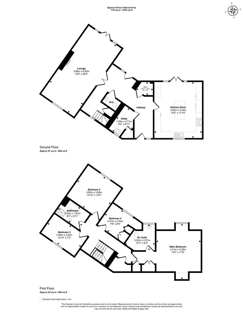
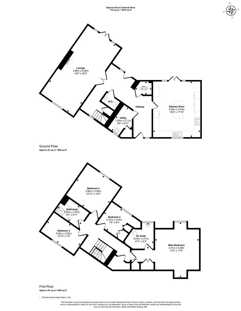
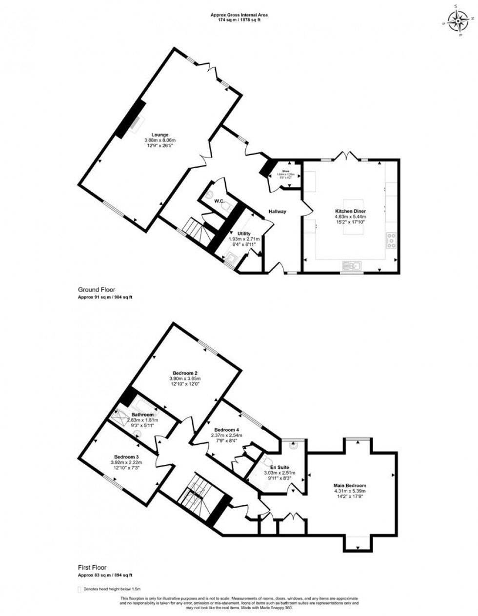
From the outset, the house makes a strong impression, with a spacious entrance hallway that feels like a room in its own right and sets the tone for the accommodation beyond. The layout has been thoughtfully designed and includes a generous open-plan kitchen and dining space, a separate sitting room, four bedrooms and two bathrooms plus the cloackroom. Practical features include a useful utility room, an additional storage room ideal for coats and shoes, and a ground floor cloakroom, all of which add to the everyday functionality of the home.

The house enjoys a west-facing aspect to the rear, allowing good natural light and attractive views across the surrounding countryside. With its village setting, contemporary finish and practical layout, the property offers a rare combination of rural character, modern comfort and everyday convenience.

The Property

Accommodation

Inside

The property is entered via a welcoming hallway which provides access to the principal ground floor accommodation. The sitting room is well proportioned and offers a comfortable space for everyday living, enjoying a pleasant outlook and good natural light.

The kitchen forms the heart of the home and is fitted with modern two-tone shaker-style units, with granite worktop on the island and a comprehensive range of built-in appliances including a fridge freezer, double ovens, wine cooler and dishwasher. A central island provides both additional preparation space and an informal seating area, making this a practical and sociable room. Doors open directly onto the rear garden, taking advantage of the views across the fields beyond.

A useful utility area and a ground floor cloakroom complete the ground floor accommodation, adding to the overall functionality of the layout. Underfloor heating runs throughout the ground floor, providing a comfortable and efficient heating solution.

Stairs rise to the first floor where the landing immediately stands out as a focal point of the upper level. Spacious and light, it feels more like a continuation of the living space rather than simply a hallway, providing an open and comfortable circulation area with access to all bedrooms.

The principal bedroom is well proportioned and enjoys views to the rear, along with the benefit of a dedicated en suite shower room. A particular feature of this room is the his and hers walk-in wardrobe area, offering excellent storage and dressing space while keeping the bedroom itself uncluttered.

There are three further bedrooms, each well sized and flexible in use, suitable for family accommodation, guests or home working. These rooms are served by a family bathroom, completing the first floor layout and providing practical accommodation for a range of needs.

Outside

The property enjoys a west-facing rear garden which is laid to lawn with a paved patio area and dedicated barbecue space, ideal for outdoor dining and entertaining. The garden backs directly onto open fields, creating an open and attractive outlook while still feeling private.

To the right-hand side of the property is a single garage, with driveway parking positioned in front. The garage can also be accessed directly from the rear garden via a side gate, providing a practical connection between the garden and parking area. This arrangement adds to the overall functionality of the outdoor space and makes the property well suited to everyday family use.

Important Information

Tenure: Freehold
Heating: Air source heat pump with underfloor heating to the ground floor
Drainage: Mains
Windows: uPVC double glazing
EPC Rating: C
Council Tax Band: F
Onward Chain: Vendors suited

Location

Milton on Stour is a small and well regarded village located just outside Gillingham, offering a village environment with easy access to town amenities. Gillingham provides a range of shops, schools, leisure facilities and a mainline railway station with direct services to London Waterloo. The surrounding countryside offers excellent walking routes and a strong rural feel, making the location particularly appealing to those seeking a balance of town and country living.

What3words - stone.latched.landowner

Postcode - SP8 5PZ

Book a viewing

Or call us to make an enquiry

01747 824547

Restways, High Street, Gillingham, Dorset SP8 4AA

Calculate

Please be aware, these results are for illustrative purposes only and should not be considered as a mortgage quote. These are based on a repayment mortgage and may vary depending on the term and interest rate of your mortgage.

Lender fees may also be applicable. If you would like guidance on the right mortgage for you, we recommend speaking to a mortgage consultant.

Results

Stamp Duty To Pay:

Effective Rate:

Tax Band % Taxable Sum Tax

Are you looking to sell?

Book a Valuation