To Let 3 Bed To Let

PCM £1,000 pcm

Church Street, Sturminster Newton

  • Grade II Listed Terraced Cottage
  • Three Good Sized Bedrooms
  • Two Reception Rooms
  • Small Courtyard Garden
  • Many Character Features
  • Close to the Town Centre
  • Energy Efficiency Rating E
Full of period charm and just a short stroll from the town centre, this delightful Grade II listed mid-terraced, double-fronted cottage offers the perfect blend of heritage features and modern comfort. Dating back to the 17th/18th century, the property is bursting with character and provides a versatile rental option — whether you’re looking for a long-term home, or a cosy retreat.

Inside, the accommodation includes three bedrooms — one spacious double and two generous singles — ideal for couples, small families, or guests. Two inviting reception rooms provide flexible living space, with one featuring a striking fireplace and substantial bressummer beam, perfect for cosy evenings in. Exposed ceiling beams and glimpses of original stone walls add to the cottage’s rich historic charm. The kitchen has been thoughtfully updated, combining modern convenience with period character.

Step outside into a private courtyard garden — a low-maintenance spot to enjoy a coffee, a book, or an evening drink. On-road parking is available nearby, and the property is ready to welcome its next occupants.

Located within easy walking distance of the town centre and close to scenic river and countryside walks, this charming cottage offers a unique opportunity to experience the best of both town and rural living.

Available Now
Sorry Non Smokers/Vapes
EPC Rating Band 'Exempt'
Council Tax Band 'TBC'
Deposit Required £1150.00 (1 week before the move in date along with the rent)
Subject to Referencing, 1 weeks (£230.00) holding deposit will be required.
www.mortonnew.co.uk

Landlord has the right to refuse

The Property

Accommodation

Inside

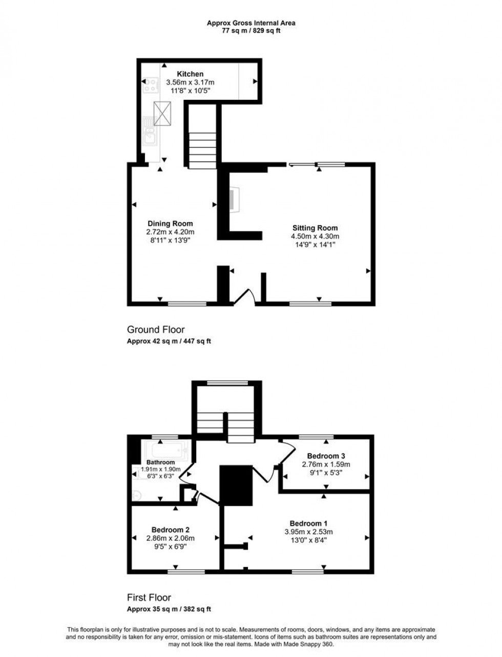
Ground Floor
The front door opens into a bright and generously sized sitting room with an outlook to the front and a large sliding door out to the rear. It is a characterful room with an exposed stone wall and ceiling beam plus an impressive inglenook fireplace with a Bressummer beam. From the sitting room there is an opening into the dining room, which has plenty of room for a good sized family dining table and chairs. It also looks out to the front and has stairs rising to the first floor and an arch to the kitchen. It too, retains character features, such as exposed ceiling beams and a stone wall.

The kitchen area is fitted with a range of modern rustic style units consisting of pull out floor cupboards, open ended floor display shelves, drawers and eye level shelves. There is ample work surfaces with a tiled splash back and inset stainless steel sink with a swan neck mixer tap. The dishwasher and fridge are integrated and there is a built in electric oven and ceramic hob with an extractor fan above. You will also find plumbing for a washing machine and a wall cupboard housing the gas fired combination boiler. For appearance and practicality, the floor is laid in a slate effect vinyl.

First Floor
On this floor you will find two generously sized single bedrooms plus a large double bedroom. In addition, there is the bathroom, which is fitted with a modern suite consisting of a pedestal wash hand basin, low level WC and a P shaped bath with a shower over and laminate panelled walls for easy cleaning. The floor is laid in a practical slate effect vinyl.

Outside

Parking
There is on road parking near to the cottage plus a pay and display car park.

Courtyard
At the back of the cottage there is a small paved courtyard with excellent privacy and retains some old stone walls.

Useful Information

Energy Efficiency Rating E
Council Tax Band C
Sustainable and in keeping Wood Framed Glazing
Gas Fired Central Heating from a Combination Boiler (New)
Mains Drainage
Freehold
No Onward Chain

Directions

Postcode - DT10 1DB
What3words - diplomas.wheat.tried

EPC Graph for Church Street, Sturminster Newton

Book a viewing

Or call us to make an enquiry

01258 473030

1 Market House, Market Place, Sturminster Newton DT10 1AS

Are you looking to sell?

Book a Valuation