For Sale 6 Bed For Sale

Guide Price £1,250,000

Shepherds Hill, Buckhorn Weston

  • Substantial Detached Country Home
  • Extending to about 6.3 acres
  • Flexible Accommodation
  • Impressive Kitchen and Dining Room
  • Recently Improved Stables
  • Detached Double Garage and Parking
  • Quiet Edge of Village Setting
  • Energy Efficiency Rating - D
A substantial detached six-bedroom country home with gardens, woodland and adjoining land extending to about 6.3 acres.

Set in a peaceful rural position on the edge of the sought-after village of Buckhorn Weston, this attractive country home offers generous and flexible accommodation surrounded by its own gardens, woodland and paddock land. The property enjoys open views across its grounds and a strong sense of privacy, while remaining well placed for everyday convenience.

Originally built in 1959 and extended during the 1990s, the house has evolved into a versatile family home well suited to a range of lifestyles. The accommodation extends to over 2,500 sq. ft and is arranged to provide comfortable everyday living alongside flexibility for home working, guests or multi-generational use. Large windows and well-positioned living spaces make the most of the outlook across the gardens and land, allowing the surrounding countryside to become an integral part of the home.

Despite its tranquil setting, the property is conveniently located for nearby towns, schooling and transport links. Buckhorn Weston benefits from a well-regarded village public house and church, while the market towns of Gillingham and Wincanton are within easy reach. Excellent road connections are provided by the nearby A30 and A303, and mainline rail services to London are available from Gillingham, Templecombe and Castle Cary, making this an appealing option for those seeking to balance country living with modern connectivity.

The Property

Inside

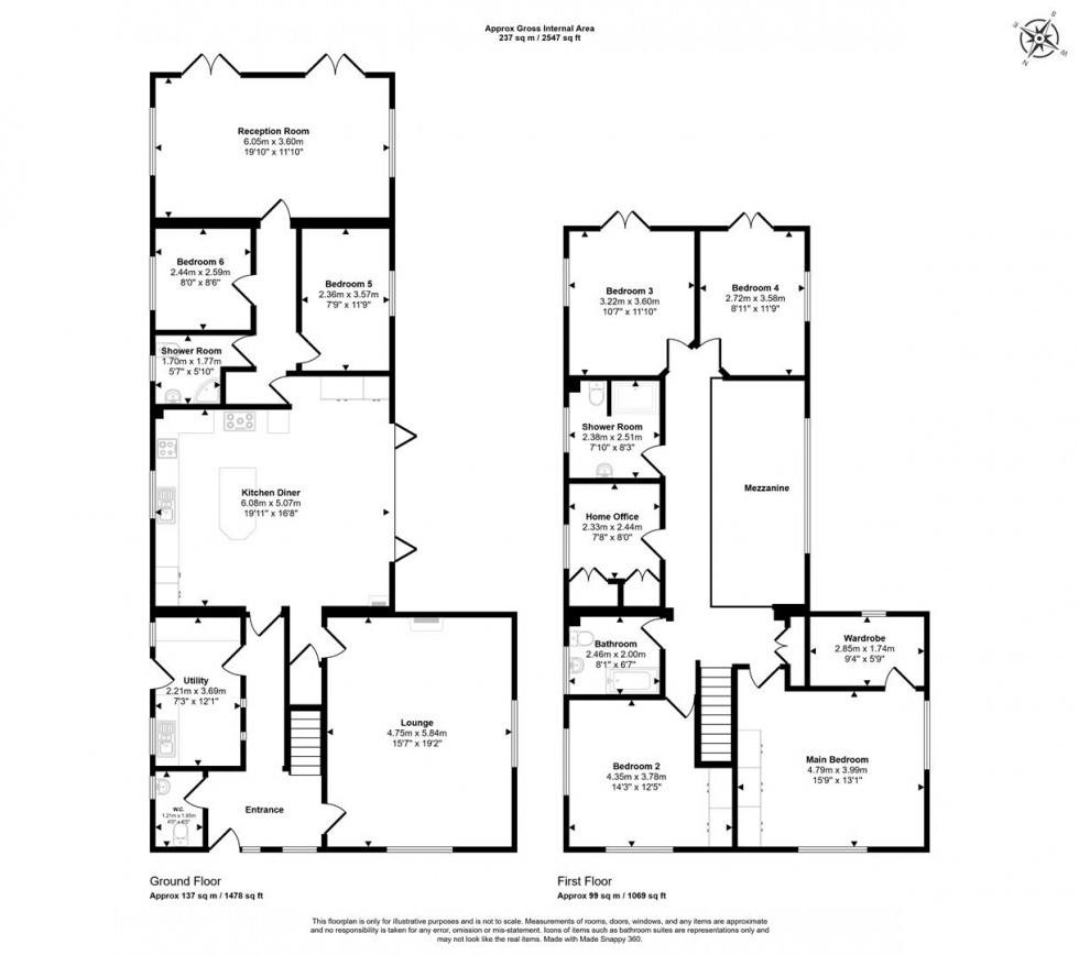
The accommodation extends to over 2,500 sq. ft and offers a flexible layout arranged over two floors, well suited to a range of lifestyles. There are six bedrooms in total, along with two reception rooms and three bath or shower rooms, allowing for multi-generational living, home working or guest accommodation.

The sitting room is a particularly welcoming space, enjoying a dual aspect and featuring a Jetmaster fire, creating a comfortable room for everyday living. The second reception room provides further flexibility and could be used as a family room, snug or playroom depending on requirements.

At the heart of the home is the impressive kitchen and dining room, designed as a contemporary living space and open to full height with a galleried landing above. The kitchen is fitted with a range of modern wall-mounted and floor-standing units, complemented by a range of integrated appliances, an induction hob, boiling water tap and a large corner wood-burning stove. Floor-to-ceiling glazing to the western elevation floods the room with natural light and enjoys views over the garden and land beyond. The lower section comprises bi-folding doors, which open fully onto the patio, creating a strong connection between inside and out.

The main bedroom is dual aspect and enjoys fine views across the gardens and adjoining land. It also benefits from a walk-in wardrobe. The remaining bedrooms are well proportioned and flexible in use, served by a combination of bath and shower rooms across both floors.

Outside

The property sits within beautifully varied grounds extending to approximately 6.3 acres in total. The gardens immediately surrounding the house are well established and lead into areas of woodland and open land, with a brook running through part of the grounds. This creates an attractive and peaceful setting, ideal for those seeking space, privacy and a strong connection to the countryside.

The adjoining land has recently benefited from improvement to both the access and the stables, making it particularly appealing for equestrian or smallholding use. The land also enhances the outlook from the house, with lovely views enjoyed from many of the principal rooms.

There is ample parking for several vehicles, together with a detached double garage. The stables further enhances the practicality and versatility of the property for those with animals or rural interests.

Useful Information

Tenure: Freehold
Council Tax Band: F
EPC Rating: D
Recently Upgraded Sewage Treatment Plant, Oil Fired Central Heating, Double Glazing
Sixteen Owned Solar Panels with Two Batteries.

Location and Directions

Buckhorn Weston is a desirable village set within the Dorset countryside and benefits from a well-regarded public house, The Stapleton Arms, along with a village church. The surrounding area offers excellent walking opportunities, with footpaths and countryside routes nearby, including a bridle path within approximately 300 yards of the property.

The property lies within easy reach of the market towns of Gillingham and Wincanton, which provide a good range of everyday amenities. The A303 is approximately four miles away and the A30 about two miles, offering excellent road access to London and the West Country.

The area is particularly well regarded for its choice of state and independent schools. For commuters, mainline railway services to London Waterloo are available from Gillingham and Templecombe, while Castle Cary provides direct services to London Paddington.

What3Words - koala.cork.issues
Postcode - SP8 5HX

EPC Graph for Shepherds Hill, Buckhorn Weston

Book a viewing

Or call us to make an enquiry

01747 824547

Restways, High Street, Gillingham, Dorset SP8 4AA

Calculate

Please be aware, these results are for illustrative purposes only and should not be considered as a mortgage quote. These are based on a repayment mortgage and may vary depending on the term and interest rate of your mortgage.

Lender fees may also be applicable. If you would like guidance on the right mortgage for you, we recommend speaking to a mortgage consultant.

Results

Stamp Duty To Pay:

Effective Rate:

Tax Band % Taxable Sum Tax

Are you looking to sell?

Book a Valuation