For Sale 2 Bed For Sale

Guide Price £225,000

Kingston Row, Kingston, Sturminster Newton

  • No Onward Chain
  • Large Garden
  • Scope to Enhance
  • Village Location
  • Garage
  • EPC- G
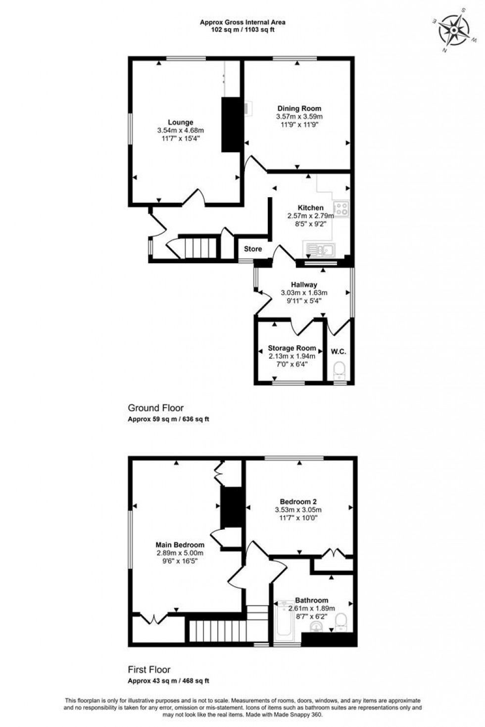
Set within the heart of the village, this property presents a rare opportunity to acquire a semi-detached home being offered to the market for the first time in its history. Occupying a generous corner plot, the property offers significant scope for modernisation and improvement, making it well suited to both first-time buyers looking to create a home to their own taste and investors seeking a project with clear long-term potential.

The house benefits from a notably large and mature garden, along with a garage and outbuildings, features that are increasingly hard to find at this level of the market. While the accommodation now requires updating throughout, the proportions, setting and plot size provide a strong foundation for refurbishment, extension or reconfiguration, subject to the necessary consents.

Kingston Row lies within the sought-after village of Hazelbury Bryan, a popular Dorset village known for its strong sense of community and attractive countryside surroundings. The village offers a well-regarded public house, village hall, church and a convenient local shop for day-to-day needs, while the nearby market town of Sturminster Newton provides a wider range of shops, schools and amenities. The combination of village setting, space and potential makes this an appealing opportunity for those seeking a property with scope to add value over time.

Inside

The property is entered via a central hallway which provides access to the main ground floor accommodation and staircase to the first floor.

The sitting room is positioned to the side of the house and features a window overlooking the garden. The room offers good proportions and retains character elements typical of its age, providing a solid base for refurbishment.

Adjacent, a separate dining room lends itself well to being opened up or reconfigured, subject to the necessary consents, to suit modern living requirements.

The kitchen is currently fitted with older-style wooden units and laminate worktops, with space for a freestanding cooker. The layout is functional but would benefit from updating, offering clear potential for redesign to suit individual tastes and needs.

Upstairs, there are two bedrooms, both of which are well sized and enjoy pleasant outlooks over the surrounding village and garden. The accommodation is served by a family bathroom, which again would benefit from modernisation.

Outside

One of the standout features of the property is the garden. Occupying a generous corner plot, the garden is predominantly laid to lawn with established planting, creating a sense of space and privacy. The south-easterly orientation allows for good natural light throughout the day.

The size and layout of the garden provide excellent potential for landscaping, extension (subject to the usual permissions) or simply enjoying a larger-than-average outdoor space in a village setting.

A garage is positioned within the plot, offering useful storage or parking, and further enhancing the practicality of the property.

Useful Information

Tenure: Freehold
Council Tax Band: C
EPC Rating: G
Heating: None
Windows: uPVC
Drainage: Mains

EPC Graph for Kingston Row, Kingston, Sturminster Newton

Book a viewing

Or call us to make an enquiry

01258 473030

1 Market House, Market Place, Sturminster Newton DT10 1AS

Calculate

Please be aware, these results are for illustrative purposes only and should not be considered as a mortgage quote. These are based on a repayment mortgage and may vary depending on the term and interest rate of your mortgage.

Lender fees may also be applicable. If you would like guidance on the right mortgage for you, we recommend speaking to a mortgage consultant.

Results

Stamp Duty To Pay:

Effective Rate:

Tax Band % Taxable Sum Tax

Are you looking to sell?

Book a Valuation