For Sale 4 Bed For Sale

Offers In Excess Of £375,000

Bourton, Gillingham

  • Unique Grade II Cottage
  • Versatile Accommodation
  • Four/Five Bedrooms
  • Three/Four Reception Rooms
  • Many Character Features
  • Scope to Personalise
  • Parking and Large Garden
  • Energy Efficiency Rating Exempt
Charming Grade II Listed Cottage Full of Character and Flexibility:-

Step back in time with this delightful attached Grade II listed cottage, believed to date back to the early 19th century, once thought to have been a flax worker’s home. Over the years, it has evolved into a unique, spacious and versatile property, offering a wonderful blend of period charm and modern comfort. Full of character, the cottage features exposed ceiling beams, stone walls, and a cosy fireplace with a wood burner — and with a home of this age, who knows what other hidden gems might be waiting to be uncovered!

The property has been sympathetically upgraded in recent years, yet still offers plenty of scope to add your own style and enhance further if desired. Inside, the accommodation is both comfortable and well-proportioned. Downstairs includes a spacious sitting room, kitchen with a small utility area, a garden room, and a formal dining room — perfect for entertaining. There’s also a double bedroom on the ground floor, along with two additional flexible rooms that could serve as bedrooms, snug areas, or home offices – the choice is yours, plus a shower room that adds practicality and convenience. Upstairs, you’ll find two generous double bedrooms and a large family bathroom, completing this charming home.

Outside, there’s parking to the rear, a large sunny garden ideal for relaxing and a separate area for growing your own vegetables, and a timber workshop with power, offering great potential for hobbies or storage.

Set in a great village location, the property is just a short walk from local shops, pub, and amenities, making it a wonderful choice for families or anyone seeking a home with history, space, and soul.

The Property

Accommodation

Inside

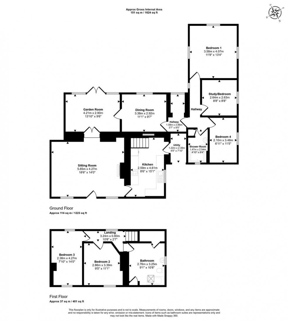
Ground Floor
The front door opens into a spacious sitting room with two windows that overlook the frontage. There are exposed ceiling beams and a stone fireplace with a wood burning stove - all adding character and warmth to the room. There's plenty of room for settees and armchairs for relaxing. Double doors open out into the garden room, which overlooks the outdoor space to the rear and has double door that open to the garden- there is a lantern roof, some exposed stone walls and wood flooring. From the garden room a door opens into a good sized formal dining room with an outlook over the rear garden. It retains exposed ceiling beams and an exposed stone wall. There is wood flooring and a serving pass into the kitchen.

The kitchen is well proportioned with a window to the side. It is fitted with a range of modern wood grain effect units consisting of floor cupboards, open shelves, separate drawer unit with cutlery and deep pan drawers, tall larder cupboard plus eye level cupboards. You will find a generous amount of work surfaces with a tiled splash back and a one and a half bowl stainless steel sink and drainer with a swan neck mixer tap. There is plumbing for a dishwasher and space for an under counter fridge. The built in oven is electric with a ceramic hob above. For practicality, the floor is laid in a tile effect vinyl. From the kitchen stairs rise to the first floor and a latch door opens to a utility area where there is space for a fridge/freezer, plumbing for a washing machine and a door to the outside.

From the dining room a door opens into a useful area that is perfect for coats, boots and shoes and opens to an inner hall with access to the shower room, which is fitted with a modern suite and doors leading off to three versatile room that can be tailored to suite your need. Currently set out as a spacious main bedroom with a triple aspect, snug/study but could easily be a bedroom plus a further generously sized bedroom.

First Floor
On this floor you will find two double sized bedrooms and a large bathroom.

The bathroom is fitted with a stylish modern suite consisting of vanity style wash hand basin, WC and bath with a wood panelled side and mixer tap with an old fashioned telephone style shower attachment. The floor is laid in a practical and attractive wood effect vinyl.

Outside

Gardens and Parking
The property is approached from the road via path leading to the front door and bordered by grass and shrub and flower beds. There is potential for a porch to be erected. The rear is accessed from a private drive, at the end of the row of cottages. Double timber gates open to the parking area with space for two to three cars and leads to the large timber detached garage/workshop with power. To the side and rear of the garage/workshop there is a vegetable garden overlooking the adjoining field and a gate from here leads along the side of the cottage to a courtyard, containing a dog kennel and door into the utility area. The main body of the garden leads from the parking area via a gate. This area is mostly laid to lawn with shrub and flower beds. The entire plot is fully enclosed, is of a good size and enjoys a sunny and private aspect backing onto fields.

Useful Information

Energy Efficiency Rating 'Exempt' due to Grade II Listed Status
Council Tax Band C
Sustainable Wood Framed Glazing
Electric Heating from Two Boilers via Radiators
Mains Drainage
Freehold

Location and Directions

Bourton, on the Dorset–Somerset–Wiltshire border near Gillingham, is a picturesque village on the River Stour with a rich history, once home to one of Britain’s largest water wheels. Despite its rural setting, it offers everyday essentials including two stores, a post office, a pub that serves delicious food, a primary school, and a well-equipped village hall. Gillingham, just a short drive away, provides larger shops, leisure facilities, schooling for all ages, and mainline rail links to London.

Postcode - SP8 5BD
What3words - ///trees.triangles.decreased

Book a viewing

Or call us to make an enquiry

01747 824547

Restways, High Street, Gillingham, Dorset SP8 4AA

Calculate

Please be aware, these results are for illustrative purposes only and should not be considered as a mortgage quote. These are based on a repayment mortgage and may vary depending on the term and interest rate of your mortgage.

Lender fees may also be applicable. If you would like guidance on the right mortgage for you, we recommend speaking to a mortgage consultant.

Results

Stamp Duty To Pay:

Effective Rate:

Tax Band % Taxable Sum Tax

Are you looking to sell?

Book a Valuation