For Sale 4 Bed For Sale

Guide Price £575,000

Lower Street, Okeford Fitzpaine, Blandford Forum

  • Attractive Detached Home
  • Four Double Bedrooms
  • Three Reception Rooms
  • Good Sized Sunny Garden
  • Double Garage with Power
  • Central Village Posisiton
  • No Onward Chain
  • Energy Efficiency Rating C
Set in a sought-after village location, this fabulous double-fronted modern home blends character appeal with contemporary comfort. A graceful wisteria climbs the front elevation, framing the entrance to a spacious and welcoming reception hall that immediately gives a sense of space and warmth.

Offering approximately 1,792 sq ft of beautifully arranged accommodation, the home is designed for both family living and entertaining. The double aspect sitting room is a true highlight, featuring a charming fireplace with a log burner — perfect for cosy evenings — and French doors opening onto a spacious decked terrace, ideal for alfresco dining or relaxing in the sunshine. A separate study provides a peaceful workspace, while the formal dining room is perfect for family gatherings or dinner parties. The impressive kitchen/breakfast room forms the heart of the home, complemented by a utility room and a convenient ground-floor WC. Upstairs, the light-filled main bedroom enjoys a dual aspect, countryside views in the distance, and a stylish en-suite shower room. Three further double bedrooms all offer distant rural views, served by a modern family bathroom.

Outside, the rear garden is beautifully presented with a sunny aspect and well stocked beds— a private haven for outdoor living. The property also benefits from a double garage with loft storage and power, plus the option to create additional parking (double gates already in place) at the bottom of the garden.

Perfectly positioned close to the village pub, shop, and church, this wonderful home combines the best of rural charm with excellent accessibility to nearby towns and amenities. Approx. 1,792 sq ft — offered with no onward chain, ready for you to move straight in and start enjoying village life.

The Property

Accommodation

Inside

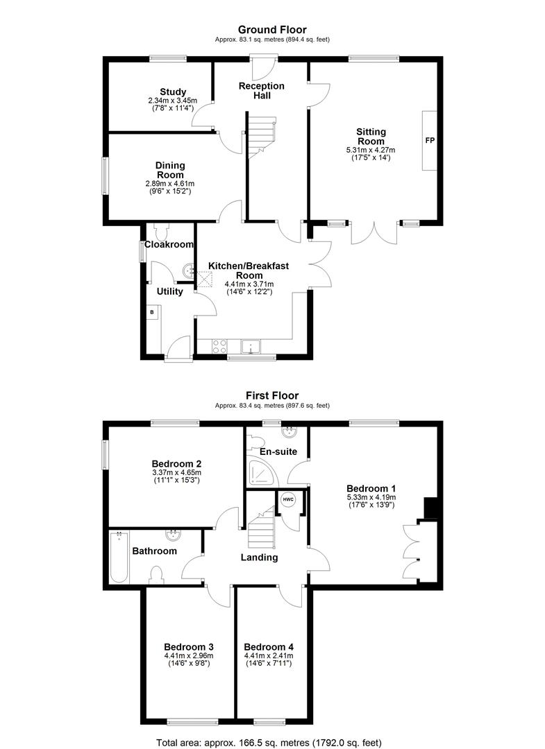
Ground Floor
The front door opens into an inviting and spacious reception hall with stairs rising to the first floor and doors leading off to the kitchen/breakfast room, sitting room, dining room and study. There is plenty of room for coats, boots and shoes. The floor is a practical wood effect, which continues into the kitchen/breakfast room. The large sitting room enjoys a double outlook with a window to the lane side and double doors that open out to the decked seating area. There is a central fireplace with a wood burner that adds character and warmth to the room. The separate study offers a great work from home space, hobbies room or even as a fifth bedroom. The dining room has ample space for a large dining table and chairs and offers a great setting for family gatherings or entertaining friends, and has a door directly into the kitchen.

The kitchen looks out over the rear garden plus double doors to the side that open to the decked seating area. It is fitted with a range of units consisting of floor cupboards with drawers and eye level cupboards. You will find a good amount of wood work surfaces with a tiled splash back and a Butler sink with an aerator swan neck mixer tap. There is a built in double electric oven and gas hob with an extractor hood above, plus space for a fridge/freezer and plumbing for dishwasher. A door leads off to the utility room, which houses the gas fired central heating boiler and has plumbing for a washing machine plus space for a tumble dryer. There is access to the rear garden and the cloakroom, which is large enough to accommodate a shower cubicle if required. For practicality, the floor in both the utility and cloakroom is a tile effect vinyl.

First Floor
On the landing there is access to the loft space and the airing cupboard housing the hot water cylinder as well as the bedrooms and bathroom. The generously sized bathroom is fitted with a WC, pedestal wash hand basin and bath with a mixer tap and telephone style shower attachment plus an electric shower above. Part of the walls are wood panelled and there is wood effect laminate flooring.

You will find four well proportioned double bedrooms - the principal bedroom is exceptionally spacious with a double aspect, built in wardrobes and an en-suite shower room. All the bedrooms, enjoy a degree of countryside views in the distance.

Outside

Parking and Double Garage
To one side of the property there is a gravelled drive that leads up to the double garage. This has two double doors, loft storage and is fitted with light and power plus a personal door to the rear garden. The garage measures -5.99 m x 5.97 m/19'8'' x 19'7''. There is no parking in front of the garage, however, from the drive there are double gates that open to the rear garden giving potential to create parking by sacrificing part of the garden. However, there is plenty of on road parking by the property.

Garden
At the back of the house there is a large decked seating area - ideal for alfresco dining or relaxing whilst reading a book and taking in the sun. The rest of the garden is laid to lawn and bordered by well stocked beds that are planted with mature trees, shrubs and flowers. The good sized garden enjoys a sunny aspect with good privacy and is fully enclosed.

Useful Information

Energy Efficiency Rating C
Council Tax Band F
Sustainable Wood Framed Double Glazing
Gas Fired Central Heating
Mains Drainage
Freehold
No Onward Chain

Location and Directions

Okeford Fitzpaine

Lying in the heart of North Dorset’s picturesque countryside, Okeford Fitzpaine is a charming and friendly village known for its strong community spirit and beautiful rural setting. The village offers everyday conveniences including a welcoming pub, a village shop, and a historic church, while being surrounded by rolling hills and scenic walks.

The nearby market town of Sturminster Newton provides a wider range of amenities, with independent shops, cafés, schools, and leisure facilities, all set along the banks of the River Stour. For more extensive shopping, dining, and transport links, the larger towns of Blandford Forum and Shaftesbury are within easy reach, offering an ideal blend of peaceful village life and convenient access to Dorset’s main destinations.
Postcode - DT11 0RN
What3words - ///overlook.foggy.ferrets

EPC Graph for Lower Street, Okeford Fitzpaine, Blandford Forum

Book a viewing

Or call us to make an enquiry

01258 473030

1 Market House, Market Place, Sturminster Newton DT10 1AS

Calculate

Please be aware, these results are for illustrative purposes only and should not be considered as a mortgage quote. These are based on a repayment mortgage and may vary depending on the term and interest rate of your mortgage.

Lender fees may also be applicable. If you would like guidance on the right mortgage for you, we recommend speaking to a mortgage consultant.

Results

Stamp Duty To Pay:

Effective Rate:

Tax Band % Taxable Sum Tax

Are you looking to sell?

Book a Valuation