For Sale 3 Bed For Sale

Guide Price £400,000

Vale View, Shaftesbury

  • Detached Family Home
  • Nearly New Property
  • Three Good Sized Bedrooms
  • Large Kitchen/Dining Room
  • South Facing Rear Garden
  • Garage and Long Drive
  • Easy Reach of the Town
  • Energy Efficiency Rating B
An appealing, immaculately presented, traditional style detached family home offering bright and spacious living space with three generously sized bedrooms, situated at the end of a no through road and within easy reach of the town centre. The property is located on the fringe of the town yet within level walking distance to local amenities, which include a Coop store, petrol station with shop attached, various takeaways and the primary school. The town centre and other facilities are also within easy reach. The property is nearly new - only four years old and has been a much loved and enjoyed home to our sellers since new. During this time it has been exceptionally well cared for and has some lovely finishing touches that have given it a very individual status. Some of the walls have had wood panelling fitted, the entrance hall, kitchen/dining room and cloakroom have been fitted with beautiful porcelain tiles with underfloor heating with the theme extending into the garden where there is a good sized matching porcelain tiled sun terrace and the kitchen has also been upgraded with the addition of an island with breakfast bar. In addition, the property benefits from high ceilings, in keeping with the conventional element of the build style, uPVC double glazing with some windows boasting a traditional diamond shaped leaded light and gas fired central heating from a combination boiler with dual zone facility. The property also has the advantage of the remaining National House Building Council guarantee. This wonderful home must be viewed to truly appreciate just what it has to offer and how easily it will meet the needs of many potential buyers. An early viewing is strongly advisable to avoid missing out on the chance to own this great home.

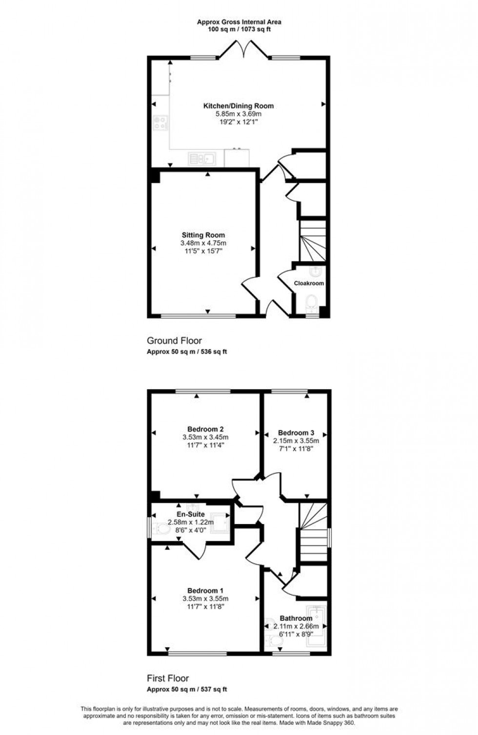
ACCOMMODATION

Ground Floor

Entrance Hall

Traditional style front door with leaded light glazed pane and spyhole opens into a welcoming entrance hall. Ceiling light. Smoke detector. Radiator. Power points. Part wood panelled walls. Fitted shoe storage cupboard. Wood effect porcelain tiled floor with underfloor heating. Stairs rising to the first floor with storage cupboard under, door to the cloakroom, kitchen/dining room and to the:-

Sitting Room

Large window with leaded light inlay and opening transom window to the front aspect. Ceiling light. Radiator. Power points. Part wood panelled wall.

Kitchen/Dining Room

Large double doors with full height windows to either side open out to the sun terrace.
Dining Area - Recessed ceiling lights. Heating thermostat. Upright radiator. Power and television points. Part wood panelled walls. Utility cupboard with space and plumbing for a washing machine and tumble dryer above.
Kitchen Area - Recessed ceiling lights. Fitted with a range of high quality contemporary soft closing units consisting of floor cupboards, separate drawer unit, eye level cupboards and larder style cupboard with shelves and drawers under. Good amount of laminate work surface with matching upstand. One and half bowl stainless steel sink and drainer with mono tap. Integrated dishwasher and fridge/freezer. Ceramic hob with brushed metal splash back and extractor hood over. Built in eye level double electric oven with storage above and below. Island with laminate work surface and lighting over, floor cupboards under and breakfast area.
Wood effect porcelain tiled floor throughout with underfloor heating.

Cloakroom

High level window with leaded light inlay to the front elevation. Recessed ceiling light. Wall mounted electrical consumer unit. Radiator. Part tiled walls. Fitted with a wall hung corner wash hand basin with mono tap and low level WC with dual flush facility. Wood effect porcelain tiled floor with underfloor heating.

First Floor

Landing

Stairs rise to the landing with part wood panelled walls and window to the side. Ceiling light. Access to the loft space. Smoke detector. Radiator. Power points. Cupboard housing the combination gas fired central heating boiler.

Bedroom One

Window with leaded light inlay and transom to the front of the property. Ceiling light. Radiator. Power and television points. Door to the:-

En-Suite Shower Room

Obscured glazed window with tiled sill to the side elevation. Recessed ceiling lights. Extractor fan. Chrome heated towel rail. Fitted with a suite consisting of low level WC with dual flush facility, wall hung wash hand basin with mono tap, tiled splash back and shaver socket to the side plus a large tiled walk in shower cubicle. Wood effect porcelain tiled floor.

Bedroom Two

Window overlooking the rear garden and partial hill views in the distance. Ceiling light. Radiator. Power points.

Bedroom Three

Window with outlook over the rear garden and hill views in the distance. Ceiling light. Radiator. Power points.

Bathroom

Obscured glazed window with leaded light inlay and tiled sill to the front elevation. Recessed ceiling lights. Extractor fan. Chrome heated towel rail. Fitted with a modern white suite consisting of bath with mono tap, mains shower over and full height tiling to the surrounding walls, low level WC with dual flush facility and wall hung wash hand basin with mono tap, tiled splash back and shaver socket to the side. Large over stairs storage cupboard. Wood effect LVT (luxury vinyl tile) floor.

Outside

Garage and Drive

The property is approached from the top of the road onto a long tarmacadam drive with space to park at least three cars and leads up to the garage. A good sized garage with an up and over traditional style door, fitted with light and power. A timber gate from the drive opens to the rear garden.

Garden

Immediately to the back of the house there is a generously sized porcelain tiled sun terrace with inset lighting. The rest of the garden has been landscaped for easy maintenance and is laid to artificial grass with a tiled seating area to one side of the garden. The garden is a good size, fully enclosed and enjoys a southerly aspect.

Directions

From Gillingham

Leave Gillingham via Newbury heading towards Shaftesbury. At the first roundabout (Ivy Cross) take the first exit onto the A350 heading towards Warminster. At the roundabout turn left and then right into Vale View. Take a right turn, after the Border Close turning. The property will be found at the end of the no through road on the righthand side. Postcode SP7 8TJ

EPC Graph for Vale View, Shaftesbury

Book a viewing

Or call us to make an enquiry

01747 824547

Restways, High Street, Gillingham, Dorset SP8 4AA

Calculate

Please be aware, these results are for illustrative purposes only and should not be considered as a mortgage quote. These are based on a repayment mortgage and may vary depending on the term and interest rate of your mortgage.

Lender fees may also be applicable. If you would like guidance on the right mortgage for you, we recommend speaking to a mortgage consultant.

Results

Stamp Duty To Pay:

Effective Rate:

Tax Band % Taxable Sum Tax

Are you looking to sell?

Book a Valuation