For Sale 3 Bed For Sale

30% Shared ownership £79,500

Walnut Grove Villas, Furge Lane, Henstridge

  • Mid Terraced Home
  • % Shared Ownership
  • Great Chance to Purchase
  • Three Good Sized Bedrooms
  • Spacious Sitting Room
  • Large Kitchen/Dining Room
  • Garden and Parking
  • Energy Efficiency Rating B
Ideal First Time Family Home in a Village Setting:-

A fantastic opportunity to get a foot on the housing ladder, this modern mid-terraced family home, offered for sale on a 30% shared ownership basis, with the option to staircase further in the future (criteria apply – please ask for details).

Situated in the popular village of Henstridge, the home is within walking distance of the primary school, local shop, welcoming public houses, and the village church. Excellent communication links are close by, with a mainline train station just a few miles away — making commuting or exploring the region simple and convenient.

Only five years old and finished to a high standard, the property is ready to move straight into. The welcoming entrance hall provides space for coats and shoes. The spacious and bright sitting room is a fabulous room for family movie nights or catching up with friends. To the rear, a large kitchen/dining room is fitted with sleek handleless units, integrated appliances, and French doors that open directly to the garden – ideal for family life or entertaining. Upstairs, you’ll find two generous double bedrooms, a good-sized single bedroom, and a stylish family bathroom.

Outside, the rear garden offers plenty of scope to make it your own, and there is a large paved seating area - ideal for summer time barbecues or unwinding in the evenings. From the garden there is access to the two parking spaces.

Offered with no onward chain, this home is perfect for those looking to take their first step onto the property market and enjoy modern living in a friendly, well-connected village setting.

The Property

Accommodation

Inside

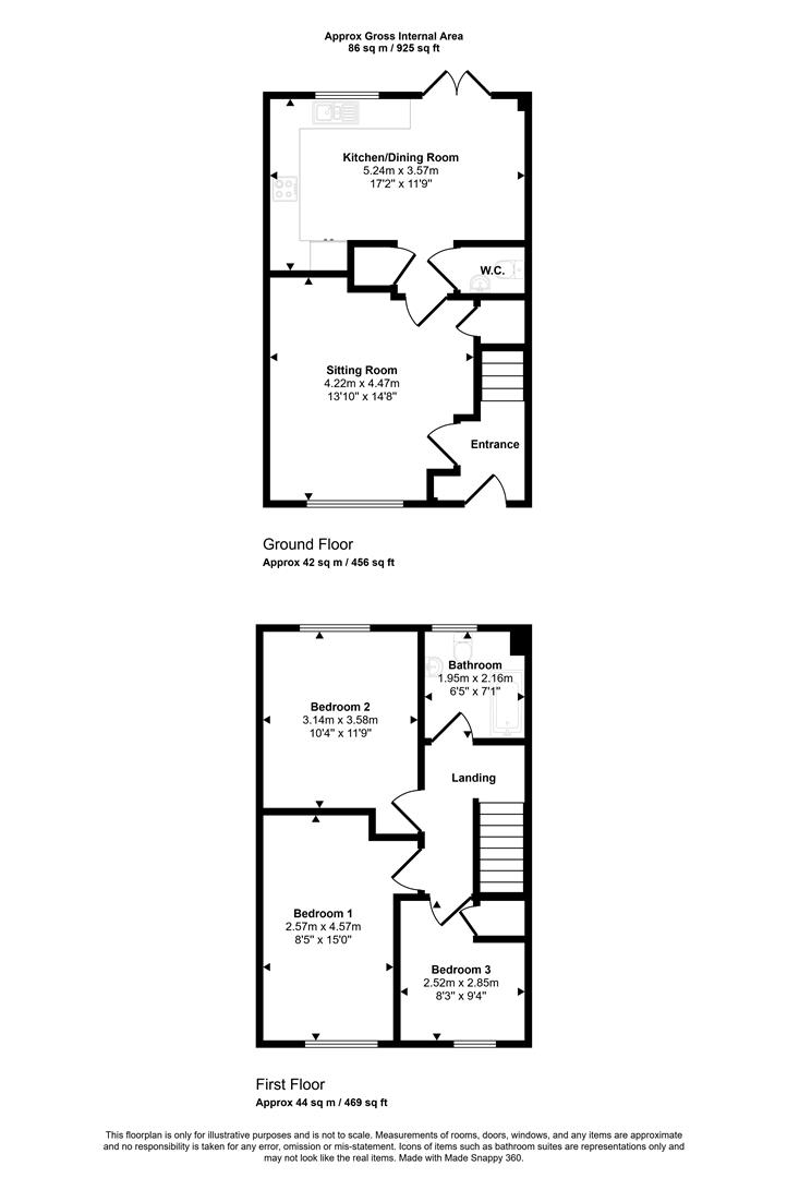
Ground Floor
From the pavement steps rise up to the frontage of the property where the front door opens into a welcoming entrance hall with stairs rising to the first floor and a door that opens to the sitting room. There is a recess that is ideal for coats, boots and shoes. The floor is laid in an attractive and practical engineered oak with an inset coir mat by the front door.

The bright and well proportioned sitting room has ample space for settees and armchairs and is a great room for relaxing as well as entertaining. A door opens to an inner hall where there is an opening into the combined kitchen and dining room, door to the airing cupboard housing the hot water cylinder and to the cloakroom, which is fitted with a pedestal wash hand basin and WC. The inner hall has a wood effect, practical vinyl flooring that continues in to the cloakroom and kitchen/dining room.

The kitchen/dining room is generously sized with a window overlooking the rear garden and double doors that open to the rear garden. The kitchen area is fitted with a range of modern, stylish, handleless units consisting of floor cupboards, separate drawer units, tall larder cupboard and eye level cupboards. You will find a good amount of wood effect work surfaces with a matching upstand and a one and a half stainless steel sink and drainer with a mixer tap. The dishwasher is integrated and there is space for a fridge/freezer, and plumbing for a washing machine. The electric oven is built in with a ceramic hob and extractor hood above.

First Floor
Stairs rise to the galleried landing with doors leading off to all rooms. You will find three bedrooms, two are double sized and the third bedroom is a good sized single bedroom with an overstairs storage cupboard. The family bathroom is fitted with a pedestal wash hand basin, WC and a bath with a mixer tap and shower attachment. The floor is laid in a practical vinyl covering.

Outside

Gardens
Immediately to the front of the house is an enclose space, planted with some shrubs and is ideal for pot plant display.

The rear garden has a large paved seating area where there are external power sockets and a water tap plus the boiler. A path leads down the garden, past the timber garden shed to a gate that opens to the parking area. The rest of the garden is laid to lawn, offering scope to make it your own.

Parking
There are two parking spaces that are located to the rear of the property and are denoted by the number 9.

Useful Information

Energy Efficiency Rating B
Council Tax Band C
uPVC Double Glazing
Air Sourced Heat Pump Central Heating with dual zone control
Mains Drainage
Leasehold - 30% Shared Ownership with LiveWest - Criteria will apply
Rent for the remaining share - £456.85 a month
Service charge £21.69
Buildings insurance £14.82
No Onward Chain

Location and Directions

The property is within walking distance to a Good Ofsted rated Primary School, two pubs, Village Hall and local shop with Post Office. Stalbridge is the next village a short drive away where there is a very well stocked family run supermarket. This also has a lovely café, you can shop online and it will deliver.

The property benefits from excellent communication links. There is easy access to the A30 and A303. The mainline railway station at Templecombe, with direct trains to London, is less than 2 miles from the property.

Postcode - BA8 0SS
What3words - ///happening.lows.notebook

EPC Graph for Walnut Grove Villas, Furge Lane, Henstridge

Book a viewing

Or call us to make an enquiry

01258 473030

1 Market House, Market Place, Sturminster Newton DT10 1AS

Calculate

Please be aware, these results are for illustrative purposes only and should not be considered as a mortgage quote. These are based on a repayment mortgage and may vary depending on the term and interest rate of your mortgage.

Lender fees may also be applicable. If you would like guidance on the right mortgage for you, we recommend speaking to a mortgage consultant.

Results

Stamp Duty To Pay:

Effective Rate:

Tax Band % Taxable Sum Tax

Are you looking to sell?

Book a Valuation