For Sale 3 Bed For Sale

Asking Price £345,000

Barleyfields, Gillingham, Dorset

  • Semi Detached Home
  • Three Good Sized Bedroom
  • Two Reception Areas
  • Good Sized Rear Garden
  • Garage/Store & Parking
  • Popular Residential Area
  • Easy Reach of Facilities
  • Energy Efficiency Rating C
Family-Friendly Home in the Perfect Location:-

This charming semi-detached home, built in mellow stone, is the ideal setting for family life – blending convenience, community, and countryside. Set in a popular residential area where town and country meet, it’s within walking distance of a primary and pre-school, doctors, pharmacy, and a friendly local pub. A Co-Op is close by for everyday essentials, while the town centre and mainline train station (just 1.5 miles away) make shopping, commuting, and days easy. And when it’s time to unwind, there are wonderful countryside and riverside walks right on the doorstep.

Step inside and you’ll find space and comfort for all the family. The useful porch opens into a bright and spacious sitting room, complete with a feature fireplace – the perfect spot for cosy evenings watching films or catching up with friends. An archway flows into the dining area, making family mealtimes and entertaining effortless. The kitchen is practical and well laid out, with a rear porch/boot room providing a handy drop zone for muddy boots, school bags, or sports kit and there is access to the garage. Upstairs, there are two generous double bedrooms and a single bedroom currently used as a reading nook – easily adaptable as a nursery, home office, or child’s bedroom – along with a family bathroom.

Outside, the home continues to tick the boxes: parking for two to three cars plus extra gated parking, a garage (currently used as a store room) with loft space for more storage, and a good-sized, easy-to-maintain garden where children can play and the whole family can relax.

A home that truly balances lifestyle and location – ready for a new family to make memories.

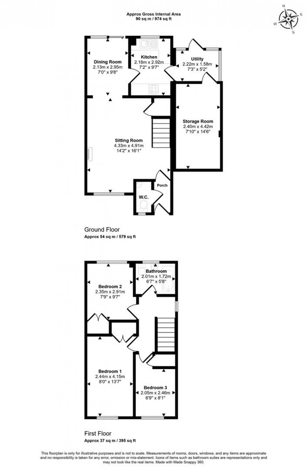
The Property

Accommodation

Inside

Ground Floor
The front door opens into a useful porch with door to the sitting room and to the cloakroom, which is fitted with a WC and wall mounted wash hand basin. There is ample room for coats, boots and shoes. The sitting room is well proportioned with stairs rising to the first floor and an arch to the dining room. There is a window to the front and a feature fireplace, which adds warmth and character to the room. You will find plenty of space for settees and armchairs and the floor is laid in a practical and stylish wood effect vinyl that flows into the dining area. The dining area has a patio door to the rear garden and ample room for a family sized dining table and chairs. From here there is a paned glass door into the kitchen.

The kitchen enjoys a view over the rear garden and is fitted with a range of floor cupboards with drawers and eye level cupboards. You will find a good amount of work surfaces with a tiled splash back and a sink and drainer with a swan neck mixer tap. There is space for an under counter fridge, plumbing for a washing machine and the electric oven is built in with and a new induction hob and an extractor hood above and you will find the wall mounted gas fired central heating boiler. The floor is laid in a practical vinyl. From the kitchen a door opens to a rear porch/boot room, which has room for appliances and door to the garden and into the garage/store.

First Floor
Stairs rise to a galleried landing with a window to the side elevation and access to the loft space and doors leading off to the bedrooms and bathroom. This is fitted with a suite consisting of a pedestal wash hand basin, WC and bath with a mixer tap and shower attachment. You will find three good sized bedrooms - a generously sized single bedroom with fitted shelves and currently used as a reading room, it also has a large overstairs cupboard and fitted with laminate floor. Plus two double bedrooms, both with build in wardrobes.

Outside

Garage and Parking
At the front of the house there is a tarmacadam drive with space to park two to three cars plus additional parking is available inside the gates. There is a large garage with up and over door, fitted with light and power plus loft storage. This is a drop down ladder, boarding and lighting. Please note that the garage has been converted to use as storage, however, it would easily convert back as a full time garage.

Gardens
In front of the house there is a gravelled area that is planted with a variety of shrubs. The rear garden has been landscaped for easy maintenance and is mostly laid to stone chippings and a paved seating area to the back of the house. There are raised beds and a semi circular seat and paved area in the middle of the garden. In addition, there are to sheds and an outside tap. The garden is a good size and enjoys sunshine throughout the day and offers the potential to have it your way.

Useful Information

Energy Efficiency Rating C
Council Tax Band C
uPVC Double Glazing
Gas Fired Central Heating
Mains Drainage
Freehold

Location and Directions

Gillingham is a vibrant market town in North Dorset, offering a wonderful blend of rural charm and modern convenience. Surrounded by rolling countryside yet well-connected by a mainline railway station with direct services to London Waterloo, it’s an increasingly popular choice for families and commuters alike. The town features a good range of everyday amenities, local shops, doctors and leisure facilities and excellent schooling for all ages.

Postcode - SP8 4UN
What3words - ///ripen.suits.most

EPC Graph for Barleyfields, Gillingham, Dorset

Book a viewing

Or call us to make an enquiry

01747 824547

Restways, High Street, Gillingham, Dorset SP8 4AA

Calculate

Please be aware, these results are for illustrative purposes only and should not be considered as a mortgage quote. These are based on a repayment mortgage and may vary depending on the term and interest rate of your mortgage.

Lender fees may also be applicable. If you would like guidance on the right mortgage for you, we recommend speaking to a mortgage consultant.

Results

Stamp Duty To Pay:

Effective Rate:

Tax Band % Taxable Sum Tax

Are you looking to sell?

Book a Valuation