For Sale 3 Bed For Sale

Guide Price £295,000

Shutler Street, Sherborne

  • Mid Terraced Home
  • Three Double Bedrooms
  • One Reception Room
  • Combined Kitchen/Dining Room
  • Bathroom and En-Suite
  • Enclosed Rear Garden
  • Two Parking Spaces
  • Energy Efficiency Rating B
This stylish mid-terraced townhouse perfectly balances town and country living, set on the edge of Sherborne where open countryside begins yet just a short stroll from the bustling town centre. Only four years old and presented in immaculate, almost-new condition, it combines modern design with a wonderfully practical layout, making it an ideal first home, a superb step up for a young family, or an excellent choice for anyone seeking a low-maintenance, well-connected property.

The welcoming entrance hall provides a practical space for coats and shoes before leading into a beautifully proportioned sitting room, perfect for relaxing or entertaining. Beyond lies a bright kitchen and dining room with integrated appliances, where double doors open directly to the garden, creating a seamless flow of indoor and outdoor living. A cloakroom completes the ground floor. Upstairs, the first floor offers two generous double bedrooms and a contemporary family bathroom, while the top floor is dedicated to an impressive main suite with a spacious double bedroom and a modern well proportioned en-suite shower room.

Outside, the rear garden is mainly laid to lawn and enjoys a private outlook, with a gate opening to two allocated parking spaces. With its superb position—just ten minutes’ walk to Sherborne’s historic centre and twenty minutes to the mainline station—this home is as convenient as it is inviting.

It is ready to move into - all you need to do is book your viewing and start planning where you would like your furniture to go.

The Property

Accommodation

Inside

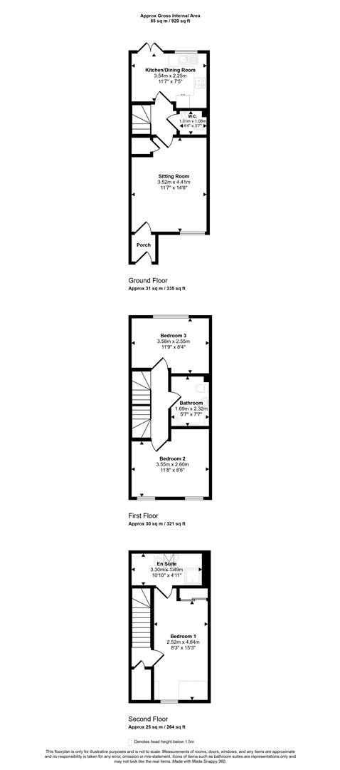
Ground Floor
The front door opens into a useful entrance hall with room for coats, boots and shoes. A further door opens into a bright and good sized sitting room with ample space for settees and armchairs - a lovely room for relaxing or entertaining. There is an understairs storage cupboard. A door opens to the inner hall with stairs rising to the first floor and doors to the cloakroom and the kitchen/dining room.

From the dining area double doors open out to the rear garden and the kitchen area has a window with an outlook over the rear garden. It is fitted with a range of modern, soft closing units consisting of floor cupboards with drawers and eye level cupboards. You will find a good amount of wood effect work surfaces with a matching upstand and a stainless steel sink and drainer. The washer/dryer, slimline dishwasher and fridge/freezer are all integrated and there is a built in electric oven and gas hob with a brushed metal splash back and an extractor hood above. There is attractive and practical wood effect flooring.

First Floor
Stairs rise to the galleried landing where doors lead off to the bedrooms and bathroom. The bathroom is fitted with a modern suite consisting of a WC, pedestal wash hand basin and bath with an electric shower over and full height tiling to the surrounding walls. The floor is laid in a practical vinyl. Both the bedrooms are double sized, one looks out to the front , whilst the other overlooks the rear garden.

Second Floor
On this floor you will find a large storage cupboard and the spacious main bedroom, which has fitted wardrobes with sliding mirror fronted doors, shelf and double and single hanging rails. It also has the benefit for a well proportioned en-suite shower room.

Outside

Parking and Gardens
There are two parking spaces that are located to the back of the house, where a gate opens into the rear garden. This benefits from a paved seating area immediately to the back of the house where there is also an outside tap, and a paved path leads down the garden to the gate leading out to the parking. It is mostly laid to lawn offering a blank canvas for your own design. You will also find a useful garden shed. The garden is fully enclosed and enjoys a sunny aspect.

Useful Information

Energy Efficiency Rating B
Council Tax Band D
uPVC Double Glazing
Gas Fired Central Heating from a Combination Boiler - Dual Zone facility
Mains Drainage
Freehold
Any development fees

Location and Directions

Sherborne

Sherborne is a historic market town in Dorset, renowned for its rich heritage, beautiful architecture, and welcoming community. At its heart stands the stunning Sherborne Abbey, surrounded by charming medieval and Georgian buildings that give the town a distinctive character. Sherborne offers a wide range of facilities, including independent shops, cafes, and restaurants, as well as practical amenities such as supermarkets, healthcare services, and leisure centres.

The town is also well known for its excellent schools, cultural events, and green spaces, making it a vibrant yet peaceful place to live or visit. With good transport links to nearby towns and cities, Sherborne combines historic charm with modern convenience.

Postcode - DT9 4FP
What3words - ///basis.lifters.blotting

EPC Graph for Shutler Street, Sherborne

Book a viewing

Or call us to make an enquiry

01258 473030

1 Market House, Market Place, Sturminster Newton DT10 1AS

Calculate

Please be aware, these results are for illustrative purposes only and should not be considered as a mortgage quote. These are based on a repayment mortgage and may vary depending on the term and interest rate of your mortgage.

Lender fees may also be applicable. If you would like guidance on the right mortgage for you, we recommend speaking to a mortgage consultant.

Results

Stamp Duty To Pay:

Effective Rate:

Tax Band % Taxable Sum Tax

Are you looking to sell?

Book a Valuation