For Sale 4 Bed For Sale

Offers In Excess Of £575,000

New Road, Zeals, Warminster

  • Detached Bungalow
  • One Bedroom Annexe
  • Three Double Bedrooms
  • Bathrooms & En-Suite
  • Two Reception Rooms
  • Gardens & Good Parking
  • Backing onto Fields
  • Energy Efficiency Rating D - A
*** MOTIVATED VENDORS *** EDGE OF VILLAGE LOCATION **** SELF-CONTAINED ANNEXE ***

Set back from the road, in the pretty village of Zeals, this detached bungalow with a separate self-contained annexe offers generous, flexible living space and a lifestyle that blends comfort, privacy, and convenience. Backing directly onto open fields and within walking distance of village amenities, it’s an ideal home for families, downsizers, or those seeking multi-generational living.

The main bungalow is beautifully proportioned, offering three double bedrooms, including a principal suite with en-suite shower room, plus a modern family bathroom. The spacious sitting room, with its welcoming open fireplace, opens directly onto a sunny outside seating area, perfect for relaxing with views across the garden. Double doors lead to a versatile dining room that could easily serve as a fourth bedroom, hobbies room, or study, depending on your needs. A well-sized kitchen/breakfast room provides a central hub for family life, supported by a practical utility room.

The separate annexe is a real asset. With its own large sitting/dining room, a kitchen/breakfast area opening onto a private seating space, bathroom, and double bedroom, it offers independence and flexibility. Whether for an elderly relative, a young adult not yet ready to fly the nest, or as a potential income stream, the annexe adds significant value and opportunity.

Outside, the property continues to impress. Parking for up to six vehicles makes life easy for family and guests, while the private rear and side gardens enjoy a sunny aspect and excellent privacy — ideal for gardening, outdoor entertaining, or simply unwinding while looking out onto the surrounding fields.

This is more than just a bungalow; it’s a home that can adapt as your lifestyle changes, offering space, independence, and a strong sense of community in one of Wiltshire’s most charming villages

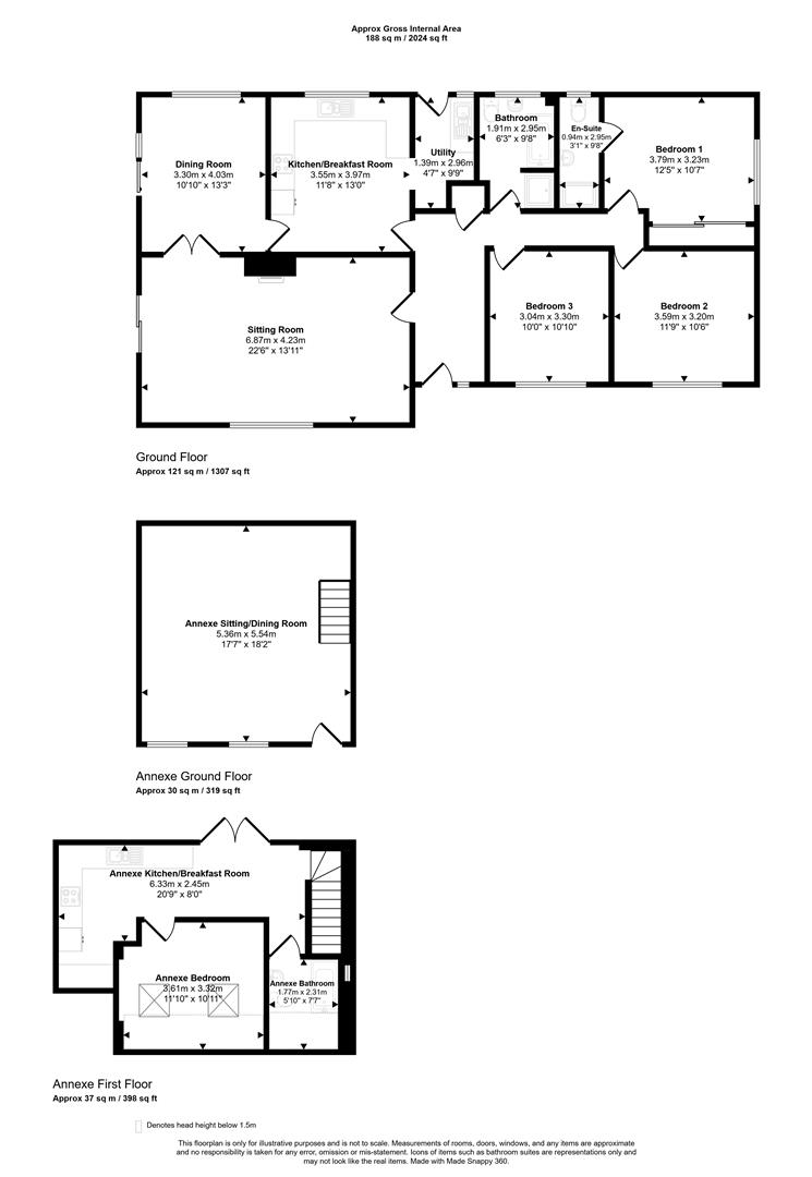
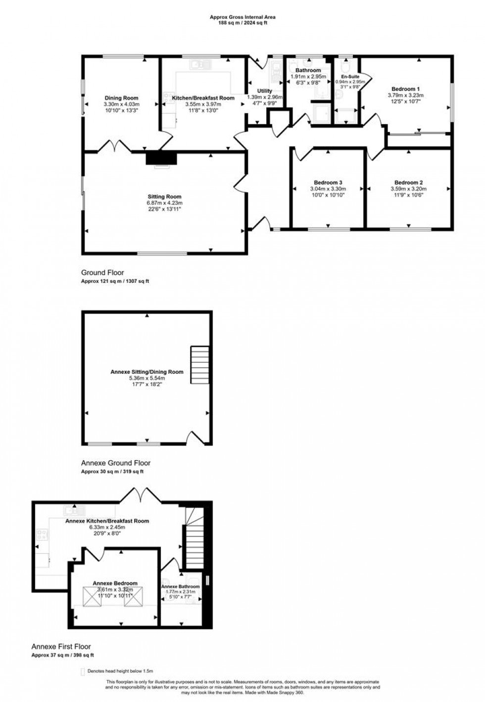
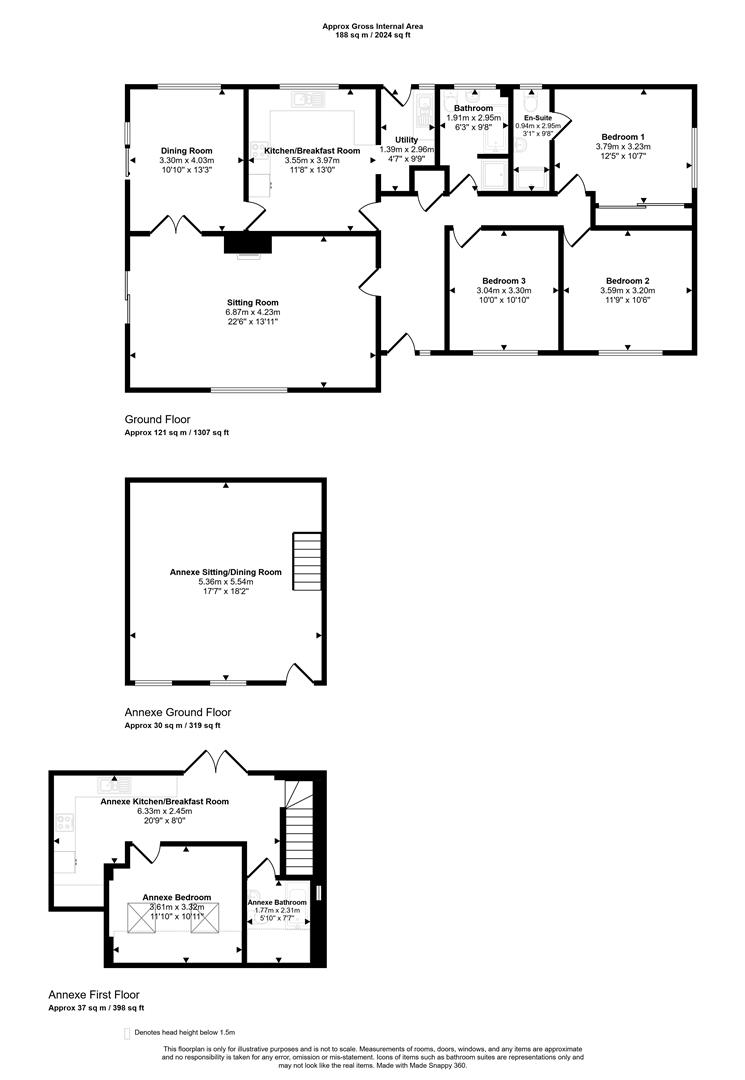
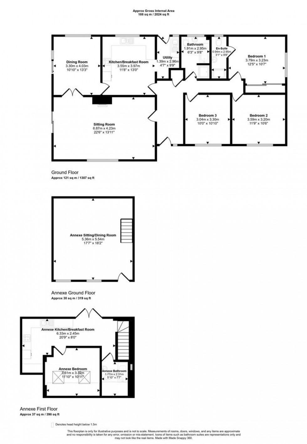
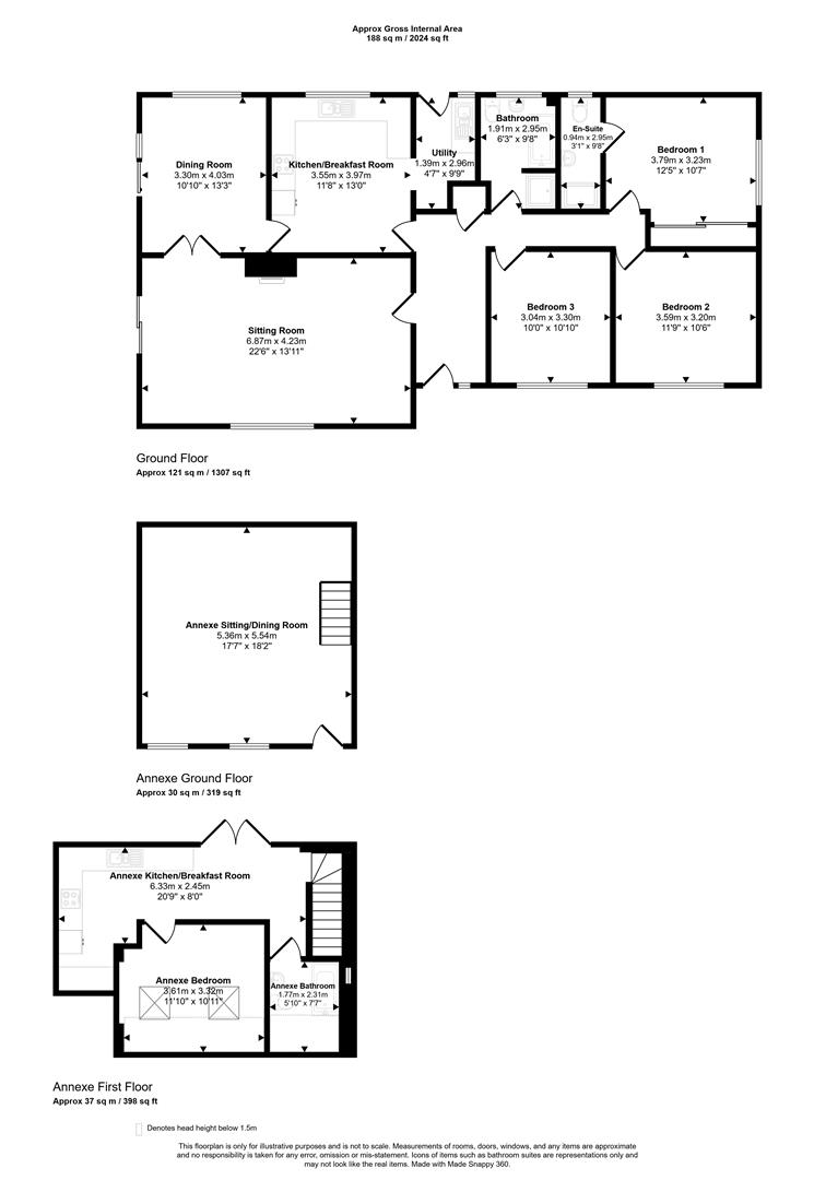
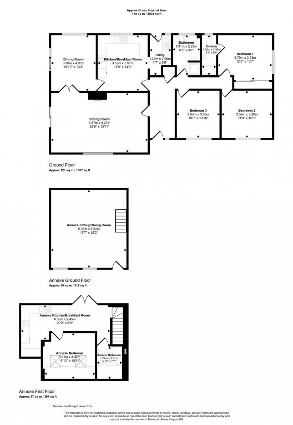
The Property

Accommodation

Inside the Bungalow

The front door opens into a welcoming and spacious entrance hall with doors leading off to the bedrooms, bathroom, kitchen/breakfast room and to the sitting room. There is a useful storage cupboard fitted with a hanging rail and plenty of space for boots and shoes. On entry there is a coir mat with the rest of the floor being laid in an attractive wood effect Karndean, which continues into the kitchen/breakfast room, utility and the dining room plus the en-suite. The large sitting room enjoys an outlook over the front garden and a sliding door opens to the paved outdoor seating area. The focal point of the room is the open fireplace. From the sitting room, double doors open into a well proportioned dining room with a window to the rear and sliding door leading to the paved seating area. It offers a versatile space that could be used as a fourth double bedroom, study or hobbies room.

The good sized kitchen/breakfast room is accessed from the dining room and hall. It is fitted with plenty of units, consisting of floor cupboards with drawers, separate drawer unit with cutlery and deep pan drawers plus eye level cupboards and cabinet. You will find a generous amount of work surfaces with a tiled splash back and a one and a half bowl sink and drainer with a swan neck mixer tap. The eye level double electric oven is built in and there is a ceramic hob with an extractor hood above plus plumbing for a dishwasher. The utility room has room for a fridge /freezer and is fitted with floor and eye level cupboards, work surface and a stainless steel sink and drainer. There is plumbing for a washing machine and it houses the oil fired central heating boiler.

The bathroom is fitted with a stylish modern suite consisting of a WC, pedestal wash hand basin, bath with mixer tap and shower attachment, plus a separate shower cubicle with a mains shower. For practicality, the floor is tiled. In addition, you will also find three double bedrooms, the main bedroom has built in wardrobes and the benefit of an en-suite shower room.

Inside the Annexe

The detached annexe benefits from its own separate entrance and is located to the right of the bungalow.

On the ground floor, the front door opens into a spacious and bright reception room with plenty of space for settees, armchairs and a large dining table. Beneath the staircase is an ideal study area or work from home space.

On the first floor, you will find a lovely kitchen/breakfast area with double doors that lead out to a private and enclosed paved seating area. The kitchen is fitted with a range of modern units consisting of floor cupboards, separate drawer units and eye level cupboards with counter lighting beneath. You will find a generous amount of wood effect work surfaces with a sink and drainer with a swan neck mixer tap. There is plumbing for a washing machine and dishwasher, space for a fridge/freezer and a ceramic hob with an extractor hood above plus an eye level built in double electric oven. For practicality, the floor is laid in an attractive wood effect Karndean.

Also on this floor is a good sized double bedroom and the bathroom, which is fitted with a bath with mains shower above, WC and a pedestal wash hand basin.

Outside

Parking and Gardens
The property is approached from the road onto a generously sized tarmacadam drive which leads to further parking that is laid to stone chippings. There is ample space to park six cars comfortably. The main gardens lie to the side and rear of the property. A gate in between the bungalow and annexe opens to steps rising to the rear. Beneath part of the annexe there is a sheltered area for storage and the site of the oil fired boiler. Immediately to the back of the annexe is a paved seating area with raised beds that are planted with a variety of shrubs and flowers and a small lawn. A gate opens to the back of the bungalow where there is a paved path, bordered by a raise lawn, that leads to the main body of the garden, which is located to the side of the bungalow. This is mostly laid to lawn with a paved seating area and a section of the garden has been enclosed to provide a wildlife garden. Here there is a useful shed and outdoor power supply. The rear of the plot backs onto fields, whist the whole grounds benefit from excellent privacy and a sunny aspect.

Useful Information

Energy Efficiency Rating D
Council Tax Band E - The Annexe A
uPVC Double Glazing
Oil Fired Central Heating - there are separate boilers for each property but fed off the one oil tank
Main Drainage
Freehold
The annexe shares the utilities

Location and Directions

The property is situated in the pretty Wiltshire village of Zeals which lies in between the old market towns of Gillingham, Mere and Wincanton. The village itself boast a village church, public house and small shop, which provides for every day essentials and is ideally placed with easy access to the A303 linking the West Country and London. A little further on at Bourton there is a petrol station with attached shop, public house and primary school. Gillingham, which is just a short drive away offers excellent day to day facilities, such as hardware store, pet shops, and so forth, as well as supermarkets including a Waitrose. There are numerous pre-schools and primary schools, along with an excellent secondary and sixth form. The town also has the advantage of having a mainline train station serving Exeter to London.
Postcode - BA12 6NG
What3words - ///canoe.commented.replaces

EPC Graph for New Road, Zeals, Warminster

Book a viewing

Or call us to make an enquiry

01747 824547

Restways, High Street, Gillingham, Dorset SP8 4AA

Calculate

Please be aware, these results are for illustrative purposes only and should not be considered as a mortgage quote. These are based on a repayment mortgage and may vary depending on the term and interest rate of your mortgage.

Lender fees may also be applicable. If you would like guidance on the right mortgage for you, we recommend speaking to a mortgage consultant.

Results

Stamp Duty To Pay:

Effective Rate:

Tax Band % Taxable Sum Tax

Are you looking to sell?

Book a Valuation