For Sale 3 Bed For Sale

Offers In Excess Of £295,000

Field Close, Sturminster Newton

  • Semi Detached Home
  • Three/Four Double Bedrooms
  • One/Two Reception Rooms
  • Garden and Parking
  • Move in Ready
  • Popular Residential Area
  • Edge of Town & Country
  • Energy Efficiency Rating C
Modern Comfort, Flexible Living, and a Touch of Countryside:-

This modern well maintained end-of-terrace home offers far more than meets the eye, perfectly positioned where town and countryside meet. Peaceful yet convenient, it’s within easy reach of schools, shops, and transport links.

Inside, the home is designed for flexibility. The bright sitting room sets a welcoming tone, while the second reception room opens up exciting possibilities. With its own door to the outside, it’s ideal as a home office, therapy or beauty studio, teenager’s den, guest room, or simply a formal dining space—the choice is yours. The kitchen/breakfast room is fitted with plenty of storage cupboards and makes a natural gathering spot for family and friends, with plenty of room for a dining table and chairs, while the utility room and cloakroom add everyday convenience. Upstairs, three double bedrooms, all with built in wardrobes provide generous space for everyone. The standout main bedroom offers excellent space and feels like a true retreat with its own en-suite shower room.

Outdoors, the enclosed rear garden is safe and private, perfect for children and pets playtime, or summer entertaining. An undercover off-road parking space with a store ensures practicality matches the lifestyle.

Whether you’re a growing family, a professional looking for a work-from-home haven, or someone seeking a well-located home with versatile options, this property is ready to adapt to your needs. This is a home that blends practicality with lifestyle—versatile, welcoming, and ready to grow with you.

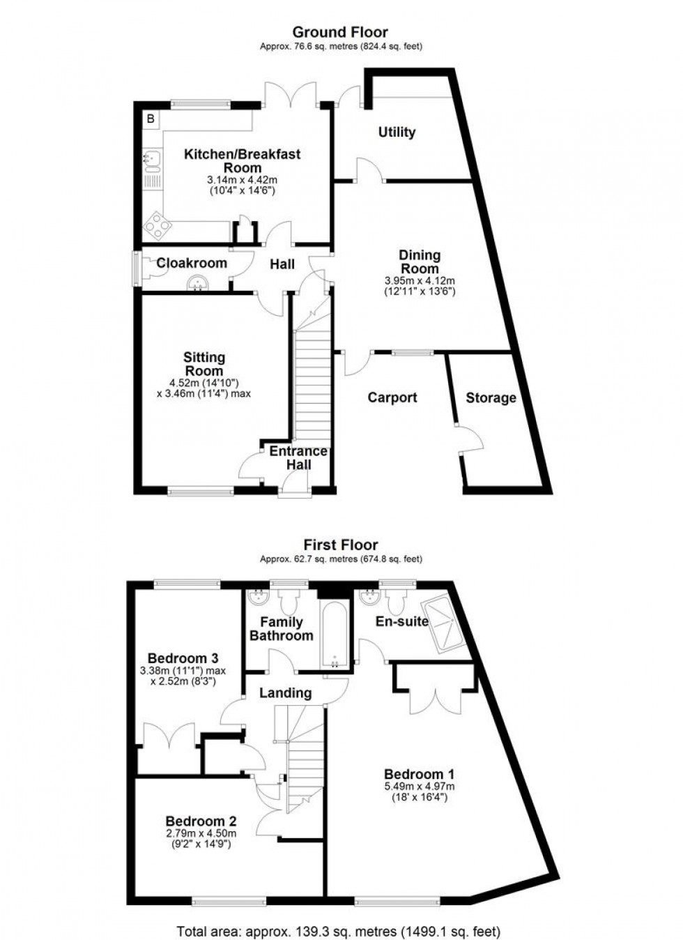
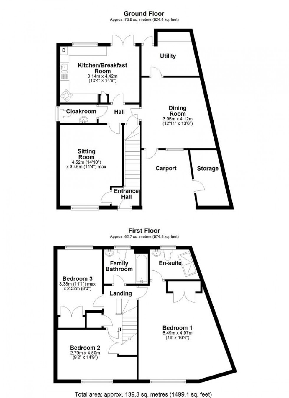
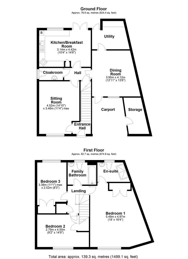
The Property

Accommodation

Inside

Ground Floor
The front door opens into a welcoming entrance hall with stairs rising to the first floor and a door opening into the sitting room. The sitting room has an outlook to the front and plenty of space for settees and armchairs and makes a great room for relaxing with family and friends. A further door opens to an inner hall, which has doors to leading off to a versatile reception room, kitchen/breakfast room and to the cloakroom, which is fitted with a wall mounted wash hand basin and a WC.

The combined kitchen/breakfast room is of a good size with a window overlooking the rear garden and double doors opening out to the garden. It is fitted with a range of cherry wood effect units consisting of floor cupboards with drawers, larder style cupboard with shelves and eye level cupboards and shelves with counter lighting underneath. You will find a good amount of work surfaces with a tiled splash back and a one and half bowl stainless steel sink and drainer with mixer tap. The fridge is integrated and there is a built in electric oven and gas hob with extractor hood over. One of the wall cupboard houses the gas fired central heating boiler. For practicality, the floor is tiled.

The versatile reception offers a multi functional space that is currently used as a dining room, but lends itself as a playroom, study, bedroom four or hobbies room as well. There is a door to the front opening into the carport and a window that looks into the carport. A further door opens to the utility room. which has work surface with cupboard above and under plus space and plumbing for a washing machine, dishwasher and tumble dryer. A door opens to the rear garden.

First Floor
Stairs rise and curve up to to a galleried landing where there is the airing cupboard housing the hot water cylinder and doors leading off to the bedrooms and family bathroom. The bathroom is fitted with a suite consisting of pedestal wash hand basin, WC and bath with mixer tap and shower attachment. For practicality, the floor is laid in a vinyl. All three double bedrooms have built in wardrobes, and the main bedroom has access to the part boarded loft space and also has the benefit of an en-suite shower room.

Outside

Parking
There is a carport for one car to the front of the property where there is also a large store/shed with light and power.

Garden
The rear garden is accessed from a gate to the side of the house and is partly laid to lawn that is edged by stone chippings and paved seating areas. There is space to the side of the house for storing bins etc. The garden is fully enclosed by wall and timber fencing giving it a high degree of privacy.

Useful Information

Energy Efficiency Rating C
Council Tax Band D
uPVC Double Glazing
Gas Fired Central Heating
Mains Drainage
Freehold

Location and Directions

The property is situated one the outskirts of Sturminster Newton. in a popular residential area. Steeped in history and tradition, the town still has a Monday Market and offers a combination of country and town living with easy access to some fabulous walking tracks, including the Trailway and nearby is the famous water mill. There is a range of independent shops and chain stores, doctor and dentist surgeries, schooling for all ages and a variety of entertainment venues. Further facilities which are all about 10 miles away, may be found at Blandford, Shaftesbury, Sherborne and Gillingham both of, which have mainline train stations, serving London Waterloo and Exeter St. David's.
Postcode - DT10 1QW
What3words - ///rehearsed.motored.royal

EPC Graph for Field Close, Sturminster Newton

Book a viewing

Or call us to make an enquiry

01258 473030

1 Market House, Market Place, Sturminster Newton DT10 1AS

Calculate

Please be aware, these results are for illustrative purposes only and should not be considered as a mortgage quote. These are based on a repayment mortgage and may vary depending on the term and interest rate of your mortgage.

Lender fees may also be applicable. If you would like guidance on the right mortgage for you, we recommend speaking to a mortgage consultant.

Results

Stamp Duty To Pay:

Effective Rate:

Tax Band % Taxable Sum Tax

Are you looking to sell?

Book a Valuation