For Sale 3 Bed For Sale

Asking Price £365,000

Shaftesbury Road, Gillingham

  • Detached Edwardian Home
  • Three Double Bedrooms
  • Three Reception Rooms
  • Work from Home Cabin
  • Off Road Parking
  • Enclosed Sunny Garden
  • Easy Reach of Town
  • Energy Efficiency Rating tba
***Confirmed Onward Chain***A fantastic opportunity to purchase a handsome double fronted Edwardian family home, offering great adaptability with three double bedrooms, off road parking for two vehicles and ideally located close to the town centre and within easy reach of the mainline train station. The town offers an excellent range of facilities with independent shops and chain stores, doctor and dentist surgeries, schooling for all ages and a variety of entertainment venues.

The property was built in 1910 and has been a much loved and enjoyed family home to our sellers for the last five years. During this time it has been exceedingly well maintained and improved. The wow factor rear extension provides an open plan space that is ideal for modern living, with more than enough space for family and friends to gather - where long term memories will be made - and the contemporary kitchen - from Howdens - is a chef's dream with plenty of soft closing units and a generous amount of oak work surfaces. The recently installed wood burner creates a cosy atmosphere and brings together old world charm and modern times. The adaptable accommodation allows for versatility - whether you prefer three/four bedrooms or two/three reception rooms, this property can cater to any changing needs. The windows to the front are sash style, in keeping with the property's origins and there are two original fireplaces in the front bedrooms.

Outside, the garden offers a tranquil outdoor retreat with a sunny and private aspect and for those who work from home or desire a creative space, the cabin in the garden provides the perfect setting for productivity and inspiration.

Don't miss out on the opportunity to own this wonderful Edwardian home with a perfect blend of classic features and modern amenities. Contact us today to arrange a viewing and make this property your next home.

The Property

Accommodation

Inside

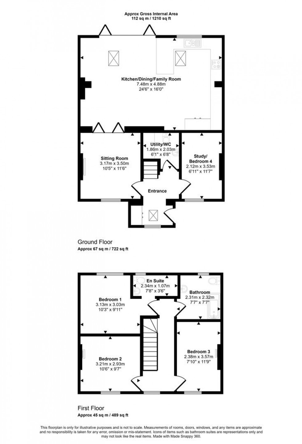
Ground Floor
The property is approached from the drive via double wrought iron gates that open to the frontage and the front door. This opens into a spacious entrance with space for boots, shoes and coats and has stairs rising to the first floor, door to the study which has a sash window overlooking the frontage. This room could be used as the fourth bedroom. There is also access to the combined utility and cloakroom and door into the sitting room. This, enjoys a sash window to the front and fireplace with wood burner and a granite hearth. Double doors open into a fabulous open plan space with room for a large dining table and chairs, seating area and designated kitchen space. Tri-folding doors open to the paved terrace. The kitchen area is fitted with a range of stylish, contemporary, soft closing handless kitchen units consisting of floor cupboards, separate drawer unit with deep pan drawers and pull out cutlery tray and eye level cupboards with counter lighting beneath. There is a generous amount of solid oak work surfaces with matching upstand and a ceramic sink and drainer with an aerator swan neck mixer tap. There is an integrated fridge/freezer, separate freezer and dishwasher plus built in electric oven and combination oven/microwave and induction hob with extractor hood above.

First Floor
Stairs rise to a bright and roomy landing with window to the front and access to the part boarded loft space with a pull down ladder. There is also the family bathroom, which is fitted with a modern suite consisting of pedestal wash hand basin, low level WC with dual flush facility and 'P' shaped bath with mixer tap and shower attachment. All three bedrooms are double sized with bedrooms two and three having sash windows to the front and original fireplaces, whilst the main bedroom overlooks the rear garden and has an en-suite shower room.

Outside

Parking
To the side of the house there is a gravelled drive with space to park one vehicle and double gates open to further parking and the rear garden.

Garden
There is room at the front of the house for bin storage. The rear garden has an Indian Sandstone paved sun terrace with the remaining garden being laid to lawn. The garden enjoys a southerly aspect and is fully enclosed by a mature hedge that provides excellent privacy. There is also a large timber cabin ( 3.51 m x 3.56 m/11'6'' x 11'8'') which has light and power and is ideally as a work from home space.

Useful Information

Energy Efficiency Rating tba
Council Tax Band C
Gas Fired Central Heating
uPVC Double Glazing
Mains Drainage
Freehold

Directions

From the Gillingham Town

Leave the High Street heading towards Shaftesbury. The property will be found just after the second set of lights on the right hand side. For viewings turn left or right at the lights and park in Rookery Close on the left or in Hine Close on the right. Postcode SP8 4LL

Book a viewing

Or call us to make an enquiry

01747 824547

Restways, High Street, Gillingham, Dorset SP8 4AA

Calculate

Please be aware, these results are for illustrative purposes only and should not be considered as a mortgage quote. These are based on a repayment mortgage and may vary depending on the term and interest rate of your mortgage.

Lender fees may also be applicable. If you would like guidance on the right mortgage for you, we recommend speaking to a mortgage consultant.

Results

Stamp Duty To Pay:

Effective Rate:

Tax Band % Taxable Sum Tax

Are you looking to sell?

Book a Valuation