For Sale 4 Bed For Sale

Asking Price £330,000

Fern Brook Lane, Gillingham

  • Semi Detached Home
  • Four Double Bedrooms
  • Two Reception Rooms
  • Garage & Gated Parking
  • Sunny Rear Garden
  • Beautifully Presented
  • Close to Amenities
  • Energy Efficiency Rating D
A Contemporary Family Home with Style, Space and a Surprise Inside:-

From the outside, this semi-detached home appears traditional — but step through the door and you’ll find a beautifully finished, contemporary interior that’s full of style and designed with family living in mind. With four double bedrooms, including a chic en-suite to the principal bedroom and a modern family bathroom, it’s a home that’s ready for you to move straight into and enjoy.

The cosy sitting room, complete with a feature fireplace surround, is perfect for relaxing evenings, while the showstopping open-plan kitchen/dining/family/garden room is the real heart of the home. Flooded with light and wonderfully flexible, it’s a space where you can cook, dine, entertain or simply unwind — designed to evolve with the way your family lives. Tasteful wood panelling throughout and different types of flooring plus internal oak doors adds character and individuality, making this home stand out from the rest.

Step outside to discover a private, good-sized garden, plus gated parking and a garage with power — ideal for storage, hobbies or a workshop.

Set on the edge of town, you’ll have the best of both worlds: countryside walks and open space just moments away, with shops, supermarkets and a children’s play area close at hand. A home that blends practicality, personality and lifestyle, and one that’s been transformed into the perfect family haven.

Don't let this one slip through your fingers - pick up the phone to book a viewing today and start living your dream.

The Property

Accommodation

Inside

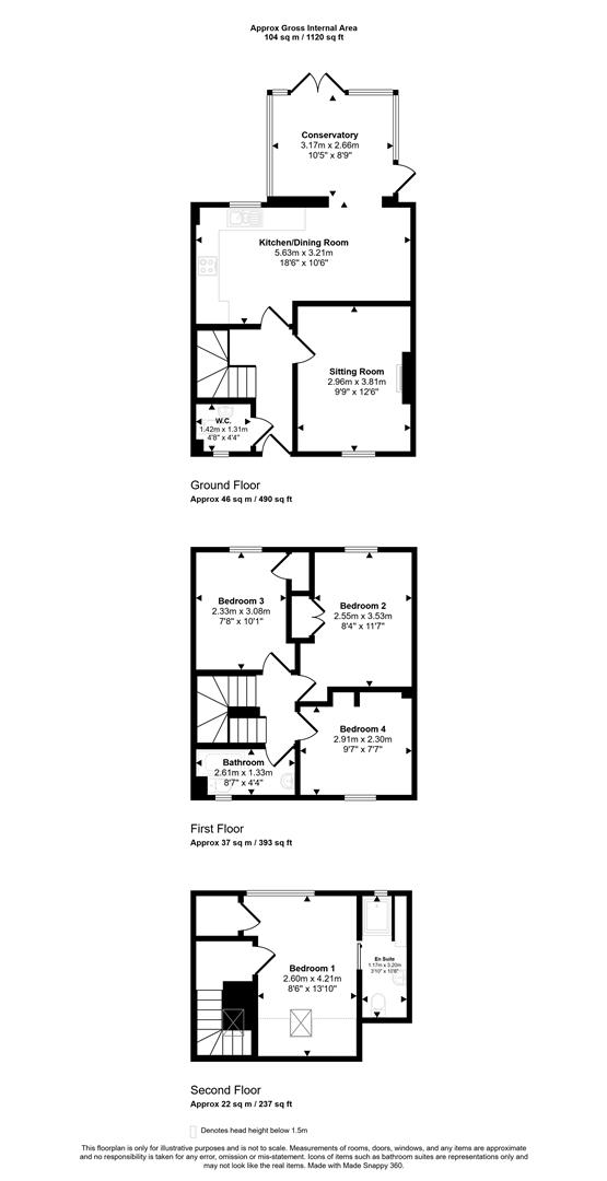
Ground Floor
The front door opens into a bright and inviting entrance hall with stairs rising to the first floor and doors leading off to the sitting room, kitchen/dining/family room and to the cloakroom, which is fitted with a wall mounted wash hand basin and a WC plus enough room for coats, boots and shoes. Beneath the stairs is a useful built in cupboard for shoes, hats etc. The floor is laid in a practical and attractive tile, which continues through into the cloakroom and kitchen/dining/family and garden room.

The sitting room has a front aspect and benefits from a feature fireplace that adds a lovely focal point to the room. You will find ample room for settees and armchairs and the floor is laid in a practical and stylish wood effect laminate. At the back of the house there is a fabulous open plan living space that offers flexibility to how you wish to use it. The kitchen area is fitted with a range of modern Shaker style units consisting of floor cupboards, bottle racks, separate drawer unit and eye level cupboards with further bottle racks. You will find a good amount of wood effect work surfaces with a tiled splash back and a one and half bowl sink and drainer with an aerator swan neck mixer tap. There is space for a fridge/freezer and plumbing for a dishwasher and washing machine. The double electric oven is built in with a gas hob and extractor hood above. You will also find the wall mounted combination boiler. The dining/family and garden room flow from the kitchen and allow you to use as you wish. The garden room has a lantern style roof, a door to the drive and double doors out to the garden.

First Floor
On this floor you will find the stairs rising to the second floor, three double bedrooms, two with wardrobes and there is also the family bathroom. This is fitted with a modern suite consisting of a vanity wash hand basin, WC and bath with a mains shower over. For practical reasons, the floor is laid in a wood effect vinyl.

Second Floor
Stairs rise to a bright landing with a velux window to the front and door into the principal bedroom. This benefits from a double aspect and has a built in wardrobe with automatic lighting and also benefits from an en-suite shower room that is fitted with a stylish contemporary suite. From this floor there are partial countryside views.

Outside (4.57m#3.35m' x 2.62m'')

Garage and Parking
To the side of the house there are double timber gates that open to a tarmacadam drive with space to park two cars and leads up to the garage. This has an up and over door and is fitted with light and power.

Garden
The rear garden has been attractively laid out - there is a paved seating area immediately outside of the garden room plus a further paved area at the bottom of the garden, which is access via a stepping stone path. In between these area there is a lawn and you will also find raised beds planted with a variety of shrubs and flowers. There is also an outside tap. The garden is fully enclosed and enjoys the morning and afternoon sun.

Useful Information

Energy Efficiency Rating D
Council Tax Band C
uPVC Double Glazing
Gas Fired Central Heating from a Combination Boiler
Mains Drainage
Freehold

Location and Directions

The property is within walking distance to local facilities that include a children's play area, an Aldi, vets, petrol station with shop plus the garden centre - the town centre and mainline train station a little further on. Gillingham, is a vibrant market town in North Dorset, offering a wonderful blend of rural charm and modern convenience. Surrounded by rolling countryside yet well-connected by a mainline railway station with direct services to London Waterloo, it’s an increasingly popular choice for families and commuters alike. The town features a good range of everyday amenities, local shops, doctors and leisure facilities and excellent schooling for all ages.
Postcode - SP8 4FL
What3words - ///lingering.letter.composts

EPC Graph for Fern Brook Lane, Gillingham

Book a viewing

Or call us to make an enquiry

01747 824547

Restways, High Street, Gillingham, Dorset SP8 4AA

Calculate

Please be aware, these results are for illustrative purposes only and should not be considered as a mortgage quote. These are based on a repayment mortgage and may vary depending on the term and interest rate of your mortgage.

Lender fees may also be applicable. If you would like guidance on the right mortgage for you, we recommend speaking to a mortgage consultant.

Results

Stamp Duty To Pay:

Effective Rate:

Tax Band % Taxable Sum Tax

Are you looking to sell?

Book a Valuation