Sold STC

Sold STC

Asking Price £250,000

Hilmar Drive, Gillingham

  • Semi Detached Chalet Home
  • Adaptable Accommodation
  • Two/Three Double Bedrooms
  • One/Two Reception Rooms
  • Garden, Garage and Parking
  • Scope to Enhance
  • No Onward Chain
  • Energy Efficiency Rating D
Flexible Living with Glorious Views***Quiet Yet Connected***Spacious & Versatile Inside***Easy Outdoor Living***

Set in the popular Wyke area, this chalet-style home offers far-reaching views of the Downs, flexible living space, and no onward chain. Perfect for first-time buyers, downsizers, or anyone seeking room to grow. Tucked away in a peaceful spot yet just a short walk from local shops, the post office, and easy access to the town centre and train station, this location blends countryside calm with everyday convenience.

The bright sitting room features a character fireplace and sliding doors to the garden, while the modern kitchen has plenty of space for dining. A ground-floor double bedroom, bathroom, and separate WC add flexibility for guests or home working. Upstairs, you’ll find two airy double bedrooms and a handy storage room. Enjoy a sunny, low-maintenance garden, parking for two cars, and a garage — all designed for easy living without the fuss. A home with heart, space, and stunning views — ready for you to make it your own.

The Property

Accommodation

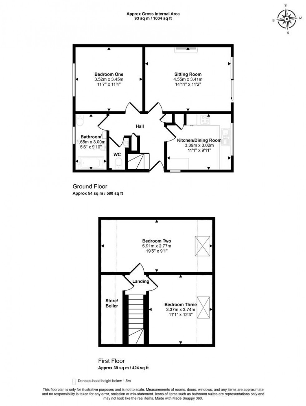
Inside

Ground Floor
The main entrance lies to the side of the property where steps rise to the door, which opens into a large and welcoming entrance hall. From the top of the steps, you will see a fabulous view towards the downs. The entrance hall has doors leading off to all the ground floor accommodation and stairs that rise to the first floor. For appearance and practicality, the floor is laid in a painted wood effect vinyl. There is a spacious sitting room with a sliding door to the rear garden and a feature fireplace with a stone surround and timber mantelpiece.

The kitchen/dining room enjoys a double aspect with a window overlooking the rear garden and to the side with a lovely view towards the downs. With a small tweak - there is ample room for a family sized dining table and chairs. It is fitted with a range of modern units consisting of floor cupboards - some with drawers and eye level cupboards and wall shelves. You will find a good amount of wood effect work surfaces with a tiled splash back and a one and a half ceramic bowl sink and drainer with a swan neck mixer tap. There is a built in eye level double electric oven with storage above and below plus a ceramic hob with an extractor hood above. There is room for further under counter appliances. A built in cupboard provides extra storage and is fitted with shelves.

Also on the ground floor is a double bedroom with outlook to the front - this could also be another reception room, depending on your requirements. The bathroom is fitted with a modern suite consisting of a bath with shower above, WC with concealed cistern and a vanity wash hand basin. The floor is laid in a practical ceramic tile. For added convenience, there is a separate cloakroom.

First Floor
On this floor you will find two double bedrooms with outlook to the rear and a walk in store cupboard that houses the boiler.

Outside

Garage and Parking
The property is located at the top right hand of the cul de sac and is tucked away down the drive, which has room for two small cars and leads up to the garage.


Garden
A path from the drive leads along the side of the property to a picket gate that opens to the rear garden. This is mostly laid to lawn with steps rising to a slightly elevated paved seating area that lies outside of the sitting room. The garden is enclosed, benefitting from good privacy and offers a blank canvas for you own ideas. It is a good and manageable size.

Useful Information

Energy Efficiency Rating D
Council Tax Band C
Mixed Styles of Glazing
Gas Fired Central Heating from a Combination Boiler
Mains Drainage
Freehold
No Onward Chain

Directions and Location

The property is within walking distance to local facilities, which include a OneStop with post office, hairdressers and pet shop plus a primary school and café. The town centre is also within easy reach. Gillingham, itself, is a vibrant market town in North Dorset, offering a wonderful blend of rural charm and modern convenience. Surrounded by rolling countryside yet well-connected by a mainline railway station with direct services to London Waterloo, it’s an increasingly popular choice for families and commuters alike. The town features a good range of everyday amenities, local shops, doctors and leisure facilities and excellent schooling for all ages.
Postcode - SP8 4PL
What3words - ///jiffy.diamonds.walked

EPC Graph for Hilmar Drive, Gillingham

Book a viewing

Or call us to make an enquiry

01747 824547

Restways, High Street, Gillingham, Dorset SP8 4AA

Calculate

Please be aware, these results are for illustrative purposes only and should not be considered as a mortgage quote. These are based on a repayment mortgage and may vary depending on the term and interest rate of your mortgage.

Lender fees may also be applicable. If you would like guidance on the right mortgage for you, we recommend speaking to a mortgage consultant.

Results

Stamp Duty To Pay:

Effective Rate:

Tax Band % Taxable Sum Tax

Are you looking to sell?

Book a Valuation