For Sale 3 Bed For Sale

Asking Price £430,000

Fiddleford Ridge, Sturminster Newton

  • Stamp Duty Paid By Developer
  • Brand New Family Home
  • Three Double Bedrooms
  • Spacious Sitting Room
  • Open Plan Kitchen/Dining Room
  • Close to Town & Country
  • No Onward Chain
  • Solar PV Panels
  • Energy Efficiency Rating A
*Stamp Duty Paid By Developer* An opportunity to be the first owner and resident of this spacious, newly built detached family home, designed by Wyatt Homes which offers two double bedrooms and a single room all whilst enjoying the close proximity to the town centre with wonderful river and countryside walks, including the popular Trailway. The market town of Sturminster Newton caters well for everyday needs with a range of independent shops and chain stores, doctor and dentist surgeries, schooling for all ages and a selection of entertainment venues.

Built by Wyatt Homes, this property is designed with both elegance and sustainability in mind, offering a perfect blend of modern living and environmental consciousness. Designed for modern living, the home features solar PV panels, EV charging provisions, double glazing, and a ten-year build warranty, complemented by premium fixtures and fittings.

This charming home offers generous space, perfect for families or anyone in need of additional accommodation for guests or a dedicated home office. The large open-plan kitchen and dining room are fitted with high-quality units and integrated Bosch appliances, making it an ideal social space for entertaining friends or enjoying family meals. The spacious sitting room features elegant French doors that open onto the garden, creating a bright and inviting atmosphere. The stylish bathroom suites add a touch of luxury, ensuring comfort and convenience for all residents.

Enclosed with an attractive fencing, the garden ensures privacy and security. Complementing the green space is a spacious patio, offering an elegant and practical extension of the living area - ideal for both refined entertaining and tranquil relaxation.

In summary, this is not just a house; it is a lifestyle choice that combines modern amenities with sustainable living.

Contact us now - viewings 7 days a week!

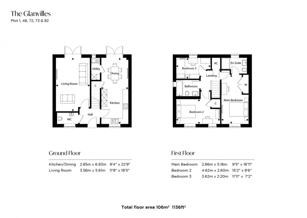
The Property

Accommodation

Inside

Ground Floor
The entrance hall greets you as you enter through the front door, with the WC to your left, the hall also connects you to the living room, kitchen/diner area and a staircase leading you upstairs. Spacious and light-filled, the large living room offers ample space for multiple sofas and additional furnishings. French doors open onto the rear garden, inviting natural light to flood the room and creating a seamless connection between indoor and outdoor living

Brimming with charm and designed for modern family living, you will find that the heart of the home is the spacious open-plan kitchen and dining area. Thoughtfully laid out, this stylish yet practical space features French doors that lead straight into the garden - perfect for summer barbecues, alfresco dining, or simply enjoying the outdoors. The kitchen combines character with convenience, offering generous worktop space, integrated Bosch appliances, and a layout that caters effortlessly to everyday family life. A welcoming dining area open to natural light from the french doors, offers the perfect setting for relaxed family breakfasts to lively dinner parties with friends. Beneath the stairs, you will find a handy storage cupboard, while a well-proportioned utility room just off the kitchen provides extra space for laundry and organisation, all while preserving the home’s open flow.

First Floor
With stairs leading up to a good sized landing, you will find the large main bedroom, with built in wardrobe space and a shower room en-suite with a pedestal basin. The second bedroom is a generously sized double, positioned at the front of the home, filled with natural light from two windows. It also features built-in wardrobes, offering both comfort and practical storage without compromising on space. The third bedroom is a well-proportioned single, ideal for a nursery, home office, or guest space. With a thoughtfully designed layout, it offers flexibility to suit a range of needs. The main bathroom offers space for relaxing, with a bath and mains shower over hanging, WC and pedestal basin. An airing cupboard provides ample storage for your linen and towels located on the landing.

Outside

Garage and Parking
This home offers a single garage with two off-road parking spaces.

Garden

The property enjoys a generous, well-appointed garden that is fully turfed, securely fenced, and finished with a paved patio - providing an inviting outdoor space for relaxation, play, or entertaining.

Useful Information

Predicted Energy Rating A
Council Tax Band tba
Double Glazed Windows
Gas Fired Central Heating Boiler and Solar PV Panels
Mains Drainage
Freehold
No Onward Chain
10 Year Build Warranty
There will be an estate charge - amount to be confirmed
Buying Schemes: Part Exchange, Express Move and Own New

Location & Directions

From the office turn right and proceed to the traffic lights and turn right onto Old Market Hill. At the next set of lights turn left heading towards Shaftesbury and take the second turning on your right into Elm Close. Take the first turning left into Bull Ground Lane where the development is located.
Post Code DT10 1JG

EPC Graph for Fiddleford Ridge, Sturminster Newton

Book a viewing

Or call us to make an enquiry

01258 473030

1 Market House, Market Place, Sturminster Newton DT10 1AS

Calculate

Please be aware, these results are for illustrative purposes only and should not be considered as a mortgage quote. These are based on a repayment mortgage and may vary depending on the term and interest rate of your mortgage.

Lender fees may also be applicable. If you would like guidance on the right mortgage for you, we recommend speaking to a mortgage consultant.

Results

Stamp Duty To Pay:

Effective Rate:

Tax Band % Taxable Sum Tax

Are you looking to sell?

Book a Valuation