Sold STC

Sold STC

Guide Price £425,000

Dry Lane, Gillingham

  • Attractive Victorian Cottage
  • Two Double Bedrooms
  • Two Reception Rooms
  • Beautiful Landscape Gardens
  • Large Garage & Parking
  • Original Character Features
  • Rural But Not Isolated
  • Energy Efficiency Rating E
A Storybook Victorian Cottage Steeped in History & Charm:-

Built in 1861 and cherished by only three families in over 160 years, this semi-detached Victorian cottage is as rare as it is beautiful. With its mellow-coloured stone walls, decorative trims, and irresistible kerb appeal, it captures the essence of an English country idyll.

For the past 27 years, it has been a much-loved home – and you can feel that warmth the moment you step inside. Light pours into the triple-aspect sitting room, where a wood burner promises cosy evenings by the fire. The dining room, with its window seat, feature fireplace, and original timber ceiling, is perfect for long, lazy breakfasts or lively family dinners. The kitchen offers generous cupboard space, while a handy rear porch keeps muddy boots and wet coats neatly tucked away after countryside walks. Upstairs, you’ll find two generously sized double bedrooms, each with views over the rural landscape, plus a stylish shower room.

Outside is where the magic truly unfolds. The fabulous country garden is a patchwork of colour and texture, with raised vegetable planters, lawns, mature shrubs and trees, and charming original outbuildings – including the old wash house and even a former pigsty. Beyond the hedgerows, you’ll gaze across open pastureland to the Grade II listed St. George’s Church – a view that feels like it’s been lifted from a painting. With a garage and gated driveway, the cottage enjoys a lane-side position on the edge of Gillingham, offering complete privacy yet the convenience of being able to walk across fields to the local pub and shop. The much-favoured Old Brewery Café & Kitchen is also within easy reach for weekend treats.

This is more than just a home – it’s a slice of history, a sanctuary of calm, and a chance to embrace the very best of English country living.

The Property

Accomodation

Inside

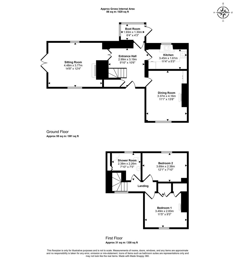
Ground Floor
A metal gate from the lane opens to a path that leads up to the cottage and the storm porch. An original door opens into a generously sized entrance hall with stairs rising to the first floor, double doors opening to the sitting room and doors leading off to the dining room and kitchen. There is the original flagstone flooring. The sitting room enjoys a triple aspect with plenty of light entering the room. The windows look out over the front and rear gardens and the double doors opening to a decked seating area. There is a fireplace with wood burning stove that adds character to the room and is perfect for chilly afternoons and evenings. The dining room window overlooks the front garden with a window seat beneath and retains the original timber ceiling and feature fireplace. Adding warmth and character to the room is the wood flooring.

The kitchen looks out over the courtyard to the old wash house and is fitted with a range of modern country style units consisting of a tall larder cupboard with shelves, floor cupboards - some with drawers and eye level cupboards and cabinets that have internal lighting. You will find a good amount of wood effect work surfaces with a tiled splash back plus a soldi wood work surfaces and drainer with a Butler style sink. There is space for an under counter fridge and a slot in electric cooker. For appearance and practicality, there is a tiled floor.

A useful addition to the cottage is the rear porch with a tiled floor, which makes a great boot room with ample space for coats, boots and shoes and an ideal place to dry pets. There is also a door to the rear garden and courtyard.

First Floor
Stairs rise and curve up to the landing, which has a window to the front with a view over the garden to the fields opposite. There are two double sized bedrooms - both with rural views and the main with fitted wardrobes and the original Victorian fireplace. You will also find a well proportioned shower room that is fitted with a modern suite consisting of a large walk shower cubicle with laminate panelled walls (for easy cleaning) and an electric shower, a pedestal wash hand basin and a WC. For practicality, the floor is laid in an attractive wood effect vinyl.

Outside

Parking, Garage and Outbuildings
From the lane the property is accessed via double timber gates that open to a good sized block paved drive with space to park three cars or for storing a caravan or motorhome. There is a large single garage with an up and over door, benefitting from light and power plus a door to the side. It measures 4.85 m x 4.27 m/15'11'' x 14'. The old pigsty has been renovated into a dry storage that is ideal for garden tools etc - it measures approximately 4.14 m x 1.98 m/13'7'' x 6'6''. The old wash house benefits from light, power and water with a gardener's WC plus space a freezer and plumbing for a washing machine as well as housing the oil fired central heating boiler.

Gardens
A truly enchanting country garden, this idyllic outdoor space feels like a hidden sanctuary. Raised planters offer the perfect place for vegetable growing, complemented by an additional patch near the garage for even more homegrown bounty. lawns that sweep gently between pockets of shrubs and bursts of colourful flowers, all framed by graceful trees that add structure and charm. A decked seating area just outside the sitting room invites lazy mornings and long summer evenings, while a more secluded corner offers a private retreat for quiet reflection. There is a summer/greenhouse, perfect for reading, relaxing, or simply enjoying a view over the garden. The garden backs onto open pastureland, and is completely enclosed by mature hedgerows, offering both privacy and a feeling of timeless seclusion. Bathed in sunlight from dawn till dusk, it is the very picture of a classic English country garden – magical, tranquil, and deeply welcoming.

Useful Information

Energy Efficiency Rating E
Council Tax Band D
Mixed Styles of Glazing
Oil Fired Central Heating
Septic Tank Drainage
Freehold

Location and Parking

Gillingham is a vibrant market town in North Dorset, offering a wonderful blend of rural charm and modern convenience. Surrounded by rolling countryside yet well-connected by a mainline railway station with direct services to London Waterloo, it’s an increasingly popular choice for families and commuters alike. The town features a good range of everyday amenities, local shops, and leisure facilities, along with a welcoming community atmosphere. In addition to its own well-regarded primary and secondary schools, Gillingham is ideally positioned for access to some of the region’s most prestigious independent schools. With its combination of strong schooling, beautiful surroundings, and excellent transport links, Gillingham continues to attract families looking for both quality of life and educational opportunity.
Postcode - SP8 5DP
What3words - ///encodes.occupiers.worked

EPC Graph for Dry Lane, Gillingham

Book a viewing

Or call us to make an enquiry

01747 824547

Restways, High Street, Gillingham, Dorset SP8 4AA

Calculate

Please be aware, these results are for illustrative purposes only and should not be considered as a mortgage quote. These are based on a repayment mortgage and may vary depending on the term and interest rate of your mortgage.

Lender fees may also be applicable. If you would like guidance on the right mortgage for you, we recommend speaking to a mortgage consultant.

Results

Stamp Duty To Pay:

Effective Rate:

Tax Band % Taxable Sum Tax

Are you looking to sell?

Book a Valuation