For Sale 2 Bed For Sale

Guide Price £320,000

Vine Street, Templecombe

  • Unique Barn Conversion
  • Two Double Bedrooms
  • Open Plan Living Space
  • Character Features
  • Enclosed Sunny Garden
  • Parking for Two Cars
  • Easy Reach of Amenities
  • Energy Performance Rating C
Stylish Stone Barn Conversion – Character, Comfort & Convenience Combined:-

A rare find – full of personality and providing 792 sq ft/74 sq. m of living space. This stunning stone barn conversion, completed in 2019 and still under a 10-year build guarantee, blends rustic charm with chic modern living. Set in a small village community with excellent transport links—including a mainline train station just moments away—this property is perfectly positioned for young professionals looking to escape the ordinary without sacrificing convenience. It also presents a fantastic investment opportunity that will cater for many types of buyers.

Inside, the home immediately impresses with its bold, open-plan layout and exceptional character. Vaulted ceiling, exposed timber beams, and deep-set windows create an inviting sense of space and warmth, while the striking media wall with a living flame fire adds a sleek, modern edge to the main living area. The kitchen features stylish soft-closing Shaker style units and solid wood work surfaces that perfectly balance the contemporary and old world charm of the barn. The garden room offers scope to tailor to your own needs - a fabulous dining space or just to relax with a good book. With two double bedrooms—one on the ground floor and a galleried principal bedroom upstairs—this home offers flexible living that adapts to your lifestyle. Whether you're working from home, having guests over, or creating the perfect retreat, you’ve got the space to make it your own.

The enclosed south-facing garden—ideal for morning coffees, weekend BBQs, or your feline friend enjoying the bespoke catio. .Parking is taken care of with two dedicated spaces, and with village shops, cafés, and the train station all within easy reach, you’ll enjoy a lifestyle that’s both stylish and practical. Smart, characterful, and full of personality—this is a home that delivers on every level.

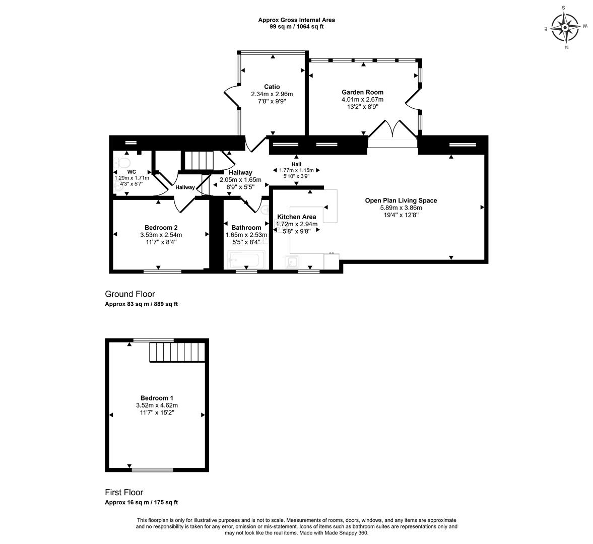
The Property

Accommodation

Inside

Ground Floor
The property is approached from the parking via a timber gate that opens to an enclosed courtyard and the main entrance. A latch door opens into a welcoming and versatile entrance/garden room with windows overlooking the rear garden, plenty of space for dining or relaxing and some exposed stone walls. Double doors open into a spacious and characterful open plan living space with a designated kitchen area. The roof is pitched with exposed timber beams, velux windows to the rear and a window with a deep sill overlooking the courtyard. There is a large media wall with display shelves and a contemporary living flame electric fire. For practicality and appearance, the floor is laid in an attractive engineered wood flooring that continues throughout the ground floor accommodation with the exception of the cloakroom and bathroom.

The kitchen has a window to the front elevation and is fitted with a range of stylish, modern soft closing units consisting of floor cupboards with corner carousel, separate drawer unit and eye level cupboards with counter lighting beneath. You will find a good amount of wood work surfaces, (including a breakfast bar), with a tiled splashback and an inset one and half bowl stainless steel sink with a swan neck mixer tap. The fridge/freezer, dishwasher and washing machine are integrated and the electric oven is built in with a ceramic hob and extractor hood above.

From the open plan living space there is a hall with door to the catio and doors leading off to the staircase, bathroom and inner hall where there is access to the second bedroom and cloakroom. The bathroom is fitted with a modern suite consisting of a wall hung wash hand basin with illuminating mirror above, WC and bath with wall mounted spout and taps plus a mains shower over. For practical reasons, the floor is tiled. The ground floor bedroom is double sized with a window to the front aspect. You will find a useful cloakroom next to the bedroom.

First Floor
From the hall stairs rise to a spacious double aspect principal bedroom with ample room for a king sized bed and bedroom furniture. There is also a radiator.

Outside

Parking
There is parking for one car to the side of the property plus a further parking space that is accessed via Merthyr Guest Close where steps lead from the parking area down to the property.

Garden
The courtyard is laid in paving stone. The main garden is access from the catio via a gate that opens to a seating area and the heat pump and a gentle slope leads to the main body of the garden, which is laid to lawn and planted with a variety of shrubs and trees. It enjoys southerly aspect with plenty of sunshine and is fully enclosed.

Useful Information

Energy Efficiency Rating C
Council Tax Band C
uPVC Double Glazing
Air Sourced Heat Pump with underfloor heating
Mains Drainage
Freehold
There is a yearly management charge for the upkeep of communal parking area, which is currently £434.00

Location and Directions

Templecombe is a Somerset village with a population of approximately 1500 and has good communication links to all major road networks and the advantage of a mainline train station. The village also has a post office with convenience store, a primary school and church plus a Co-Op store. There are various clubs to suit all from toddler groups to bowling and bellringing to dancing. For further facilities Yeovil and Sherborne are both within twelve miles and Wincanton about five miles away which has good shopping facilities from major supermarkets such as Lidl and Morrisons, in addition the town centre has many independent shops from butcher and bakers to jewellers and hardware store. There are many choices of takeaway providers, public houses, schools catering for all ages and there is a doctors surgery. Places of interest around the area include the famous Wincanton Race Course and the Stourhead House and gardens.
Postcode - BA8 0JY
What3words - ///kitchen.outs.digress

EPC Graph for Vine Street, Templecombe

Book a viewing

Or call us to make an enquiry

01258 473030

1 Market House, Market Place, Sturminster Newton DT10 1AS

Calculate

Please be aware, these results are for illustrative purposes only and should not be considered as a mortgage quote. These are based on a repayment mortgage and may vary depending on the term and interest rate of your mortgage.

Lender fees may also be applicable. If you would like guidance on the right mortgage for you, we recommend speaking to a mortgage consultant.

Results

Stamp Duty To Pay:

Effective Rate:

Tax Band % Taxable Sum Tax

Are you looking to sell?

Book a Valuation