For Sale 2 Bed For Sale

Guide Price £725,000

Kingston, Sturminster Newton

  • Individual Detached Home
  • Two Double Bedrooms
  • Set in just over 8 Acres
  • Edge of Village Location
  • Stunning Far Reaching Views
  • Fields, Stables and Barn
  • Scope to Develop (Sbj to PP)
  • No Onward Chain
  • EPC D
Create Your Dream Life in the Countryside:-

If you’ve been longing to leave behind the daily grind and embrace a slower, more fulfilling way of life, this property offers the perfect chance to make it happen. Set on the edge of a friendly village, with uninterrupted views over the Blackmore Vale, this detached two-bedroom home, set in 8 acres, isn’t just a house—it’s a gateway to a new way of living.

With no onward chain, you can move straight in and start imagining the possibilities.

The home is spacious for a two-bedroom with 1,207 sq. ft/112 sq. m - but the real magic lies in its untapped potential. There’s ample scope to extend and reconfigure (subject to planning), making it ideal for those wanting to create a larger family home in a stunning rural setting. Whether you need more bedrooms, a home office, or open-plan living, there’s room to grow as your dreams evolve.

Inside, the property offers a warm and welcoming feel, featuring a boot room, a generous kitchen/dining space, and a sitting room with an open fireplace. The home is well maintained but ready for your personal touch.

Step outside, and the 8-acre plot opens up endless opportunities for a truly self-sufficient lifestyle. With a formal garden ready to be landscaped, two large fields, and outbuildings including a barn and stables, this is a property that could become your own equestrian retreat, smallholding, or family sanctuary with room to roam. Grow your own food, keep animals, or simply enjoy the peace and privacy of country life. The land also holds income potential if not fully required.

This is the kind of property that rarely comes along—a chance to build a life less ordinary, with space, freedom, and real connection to the land and community around you. Whether you’re a family looking to escape the city, a couple seeking space and creativity, or someone ready for a lifestyle overhaul, this unique home is your blank canvas.

Move in, dream big, and let the countryside set the pace.

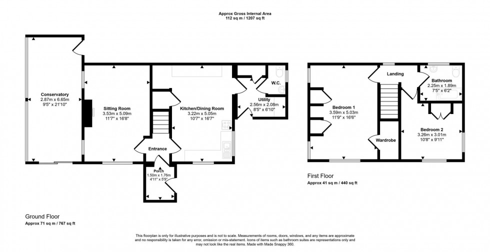
The Property

Accommodation

Inside

Ground Floor
The front door opens into a good sized welcoming entrance with plenty of space for visitors' coats and shoes. A further door opens into the hall, where stairs rise to the first floor and door lead off to the kitchen/dining room and to the sitting room. The well proportioned sitting room benefits from a double aspect with windows in to the external conservatory and to the front taking in a breath-taking far reaching view over the beautiful Blackmore Vale countryside. There is an open fireplace that adds character and warmth.

The combined kitchen and dining room also has a double outlook with a window to the side that looks towards the entrance and over the first field plus a window to the front that enjoys far reaching views over the adjoining countryside. It is fitted with a range of units consisting of floor cupboards with drawers, separate drawer unit and eye level cupboards and cabinets with open ended display shelves. You will find a good amount of work surfaces with a tiled splash back and a stainless steel sink and drainer. There is ample room for appliances.

From the kitchen, there is a door opening into a useful utility/boot room, where there is the oil boiler and plumbing for a washing machine. There is also a large cupboard for coats, boots and shoes. In addition, you will find a door to the WC and to the front of the house.

First Floor
On this floor you will find a generously sized bathroom, plus two double bedrooms - both with a double outlook that takes in stunning far reaching views an the principal bedroom benefits from built in wardrobes plus the airing cupboard that houses the hot water cylinder.

Outside

Formal Gardens
From the lane a metal gate opens to a drive that sweeps round to the parking area, bordered on either side by lawn. A path leads under a timber arch to the front and side doors of the house. The rest of the garden is laid to lawn with some trees and shrubs. There is access to the external conservatory (in need of repair) and to the back of the house there is a path with a further door to the conservatory. Concealed to the side of the house is the oil tank. Part of the garden overlooks the property's land with views over the countryside to the Dorset Gap, whilst the other part looks out over the adjoining fields with more far reaching views. The gardens provide a great opportunity to create outdoor space to your own needs.

Outbuildings
There is a greenhouse and shed by the parking area. From the parking there is access to the large barn and the stables, which have direct access to the fields. Both these outbuildings are in need of some management and offer the option to develop, subject to the necessary permissions.

Land
From the outbuildings, there is access to the first field. At the bottom of the first field there is an opening to the second field that slopes down to its boundary.

Useful Information

Energy Efficiency Rating D
Council Tax Band D
uPVC Double Glazing
Oil Fired Central Heating
Mains Water - Private Drainage
Freehold
No Onward Chain
Set in just over 8 Acres

Location

Kingston, Hazelbury Bryan

The property is situated in the Kingston area of the popular and sought after village of Hazelbury Bryan, which lies in the beautiful Blackmore Vale countryside and is about five miles from the picturesque market town of Sturminster Newton. The village itself has a lively community with many events taking place around the area and also in the village hall. For every day essentials there is the Red Barn shop, the village also has a public house, park/recreational grounds and primary school. Sturminster Newton has further facilities with a range of independent shops and chain stores, doctor and dental surgeries, schooling for all ages and The Exchange - a major entertainment venue. Sherborne with a mainline train station is about twelve miles away.

Directions

Postcode - DT10 2AR
What3words - ///windows.uppermost.encoded

EPC Graph for Kingston, Sturminster Newton

Book a viewing

Or call us to make an enquiry

01258 473030

1 Market House, Market Place, Sturminster Newton DT10 1AS

Calculate

Please be aware, these results are for illustrative purposes only and should not be considered as a mortgage quote. These are based on a repayment mortgage and may vary depending on the term and interest rate of your mortgage.

Lender fees may also be applicable. If you would like guidance on the right mortgage for you, we recommend speaking to a mortgage consultant.

Results

Stamp Duty To Pay:

Effective Rate:

Tax Band % Taxable Sum Tax

Are you looking to sell?

Book a Valuation