For Sale 5 Bed For Sale

Asking Price £750,000

Station Road, Stalbridge

  • Grade II Listed Home
  • Adaptable Accommodation
  • Four/Five Double Bedrooms
  • Two/Three Reception Rooms
  • Large Garden & Outbuildings
  • Scope to Personalise
  • No Onward Chain
  • Village Location
  • Energy Efficiency Rating D
Charming Victorian Farmhouse with Character, Space & Endless Potential

This detached Victorian farmhouse offers an exceptional opportunity to own a spacious and character-filled home just a short stroll from the heart of town. Boasting over 3,000 sq. ft282 sq. m of living space across two expansive floors, this versatile five double bedroom property is ideal for growing families or those seeking room to tailor a home to their lifestyle.

Full of period charm, the home retains a wealth of original features including flagstone and exposed wood flooring, exposed beams, and a variety of window styles—from sash and cottage-pane to leaded light—adding unique charm throughout. The property also includes several feature fireplaces, including an impressive old stone fire and hearth that serves as a striking focal point in one of the bedrooms.

The ground floor offers a spacious reception hall with practical boot and shoe storage, a generous sitting room, and an additional reception room offering flexible use—ideal as a playroom, study, or formal dining space. The large kitchen/breakfast room is perfect for family gatherings and casual meal, complemented by a separate utility room and pantry.

Upstairs, five large double bedrooms provide ample space for family and guests, with two enjoying en-suite facilities. A family bathroom and a bright landing areas—ideal as a study or homework nook—complete the upper floor.

Outside, the property includes useful outbuildings with potential for development, generous off-road parking, and a large garden—a true blank canvas ready for landscaping or leisure use. The garden also offers direct access to the conservatory, enhancing the indoor-outdoor flow.

With no onward chain, this wonderful home invites you to make it your own, offering a rare combination of character, convenience, and potential in a highly sought-after location.

The Property

Accommodation

Inside

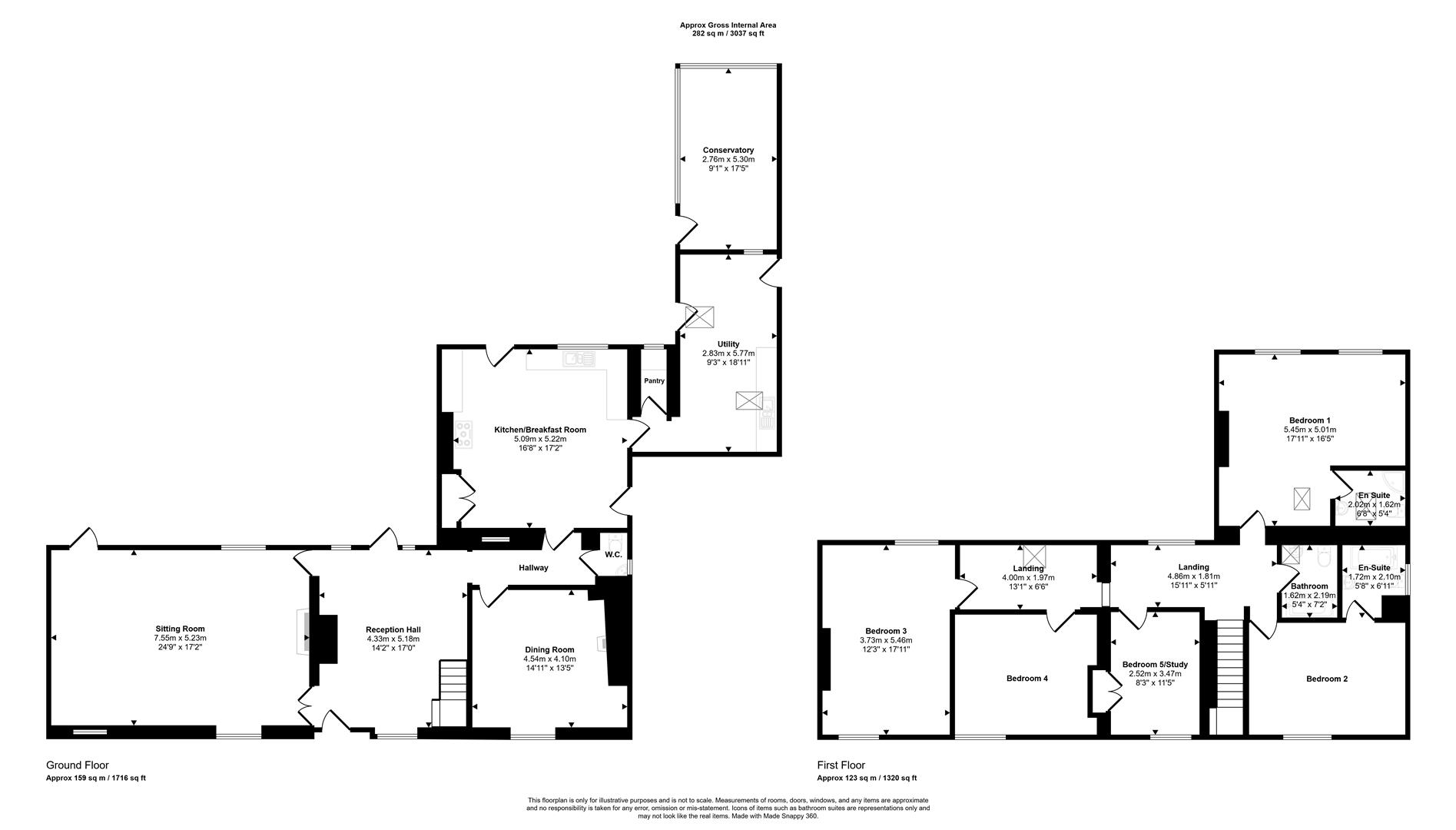
Ground Floor
From the road, a picket gate opens to a path that leads up to the storm porch with the main door opening into a spacious and welcoming reception hall with a paned glass door opening to the rear garden, doors into the sitting room, dining room, WC and kitchen/breakfast room. Stair rise to the first floor with storage beneath for shoes and boots. There is an original flagstone floor, sash window to the front and a unique window with stone reveal and a leaded light bar to the rear. The sitting room enjoys a double aspect with sash windows to the front and a paned glass door that opens to the rear garden. There are ceiling beams, character features, wood flooring and a feature fireplace. A large room with plenty of room for family gatherings or entertaining friends.

You will find another spacious reception room that lends itself to many usages - formal dining room, study or snug or even a playroom. There is a sash window to the front, feature fireplace and original flagstone floor. The large kitchen/breakfast room has a door opening to the rear garden as well as a window with view over the garden. A door to the side opens to the yard. It is fitted with a range of floor and eye level cupboards, space for appliances plus work surfaces. There is also the airing cupboard with the hot water cylinder and boiler. In addition, there is a generously sized utility room with doors leading out to the yard and rear garden. Also on the ground floor is a cloakroom.

First Floor
On this floor there are split level landings that offer enough room for study areas or homework stations. There is the main bathroom plus five double bedrooms, one with an en-suite bathroom and one with en-ensuite shower room. Three of the bedrooms enjoy and outlook to the front, whilst one large double has a view of the garden and another generously sized double bedroom has view to the front and rear plus a stone fireplace.

Outside

Garaging and Outbuildings
There is an outbuilding with light and power, measuring 2.87 m x 3.18 m/9'5'' x 10'5'' - great for storage. You will also a large outbuilding, divided into three garages that offer development potential to suit your own needs - the overall external measurement is about 5.18 m x 11.58 m/17' x 38'. There is plenty of parking in the yard in front of the outbuildings and to the side of the house.

Garden
The large garden lies to the rear of the house and mostly laid to lawn with some shrubs. It is totally enclosed by stone walls and has a sunny and very private aspect. It offers enormous potential to create an outdoor space to your own needs and design. From the garden there is access to a good sized conservatory.

Useful Information

Energy Efficiency Rating D
Council Tax Band F
Mixed Glazing and Styles
Gas Central Heating
Mains Drainage
Freehold
Located within the Conservation Area
No Onward Chain
There is the opportunity of purchasing the yard, which offers excellent development potential.

Location

Stalbridge

The property is located in the popular Dorset town of Stalbridge, which is reputed to be the county's smallest town, steeped in history and dating back to Saxon times with a 15th Century Church and Market Cross. The town has an approximate population of 2500 and caters well for everyday needs with an award winning supermarket, family run butchers, post office and community run library. There is also a primary school with excellent OFSTED report, dental surgery and public house as well as a variety of takeaway shops. Further facilities are available at Sturminster Newton 4 miles to the East and Sherborne and Shaftesbury both within 7 miles. The town is close to excellent communication links with the A30 and A303 within easy reach and just 3 miles from the mainline train station at Templecombe, serving London, Waterloo and the West Country.

Directions

Postcode - DT10 2RQ
What3words - ///copying.grunt.interrupt

EPC Graph for Station Road, Stalbridge

Book a viewing

Or call us to make an enquiry

01258 473030

1 Market House, Market Place, Sturminster Newton DT10 1AS

Calculate

Please be aware, these results are for illustrative purposes only and should not be considered as a mortgage quote. These are based on a repayment mortgage and may vary depending on the term and interest rate of your mortgage.

Lender fees may also be applicable. If you would like guidance on the right mortgage for you, we recommend speaking to a mortgage consultant.

Results

Stamp Duty To Pay:

Effective Rate:

Tax Band % Taxable Sum Tax

Are you looking to sell?

Book a Valuation