Sold STC

Sold STC

Offers In Excess Of £250,000

Lanchards, Shillingstone

  • Mid Terraced Cottage
  • Two Good Sized Bedrooms
  • Large Sitting/Dining Room
  • Some Countryside Views
  • Attractive Cottage Garden
  • Easy Reach of Facilities
  • No Onward Chain
  • Energy Efficiency Rating D
A Delightful Dorset Cottage – Full of Charm, Views & Possibilities

Set in a picturesque and popular Dorset village, this enchanting mid-terraced stone cottage offers an irresistible combination of character, comfort, and countryside charm. Whether you're looking for a first home, a peaceful retreat from city life, or the perfect lock-up-and-leave escape, this delightful property ticks all the right boxes.

Step inside and you'll immediately feel the warmth and character of the cottage. The spacious sitting/dining room features exposed ceiling beams and a classic open fireplace—ideal for cosy evenings in. The country-style kitchen, with its farmhouse cupboards and some built-in appliances, is full of rustic appeal and opens directly onto the garden, blending indoor and outdoor living beautifully. Upstairs, two generously sized double bedrooms enjoy countryside views, providing a restful sense of space and light. And the bathroom completes the internal layout.

Outside, the sunny courtyard-style garden is bursting with colour from established flowers and shrubs—a serene spot to relax or entertain. There's a useful shed for storage, and parking is available nearby in the lane.

With no onward chain and plenty of scope to enhance and make it your own, this charming cottage is a rare find. Just a short stroll to the village’s amenities and surrounded by Dorset’s rolling landscapes, it offers a lifestyle that’s both peaceful and connected. A wonderful opportunity for first-time buyers, a weekend escape, or a low-maintenance second home in one of the county’s most desirable locations.

The Property

Accommodation

Inside

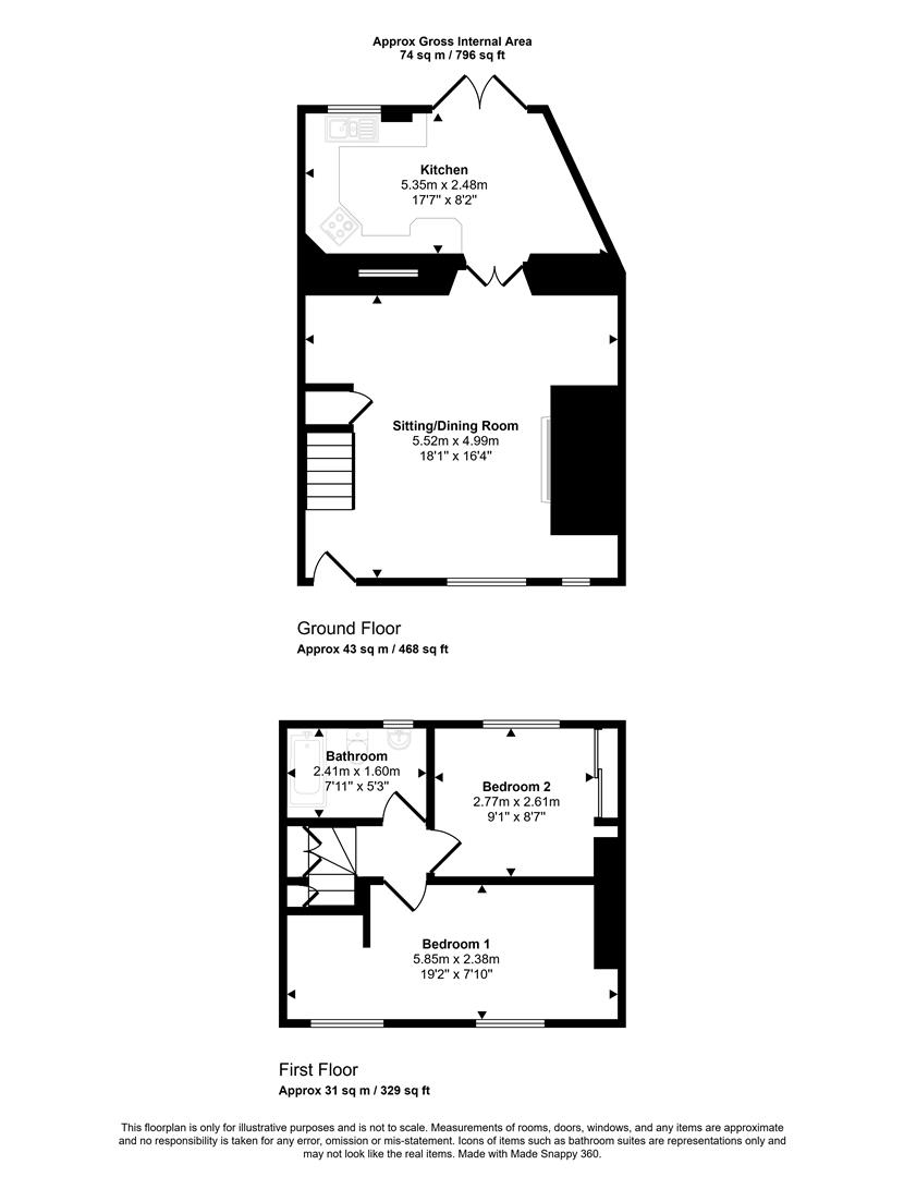
Ground Floor
An original timber door opens into a spacious combined sitting and dining room with a window that has a deep sill and overlooks the lane. There are exposed ceiling beams and a large open fireplace with a timber beam. Stair rise to the first floor and double doors open into the kitchen.

The kitchen is fitted with a range of farmhouse style units consisting of floor cupboards with open ended display shelves,separate drawer unit and eye level cupboards - one housing the boiler. You will find a good amount of work surfaces with a tiled splash back and sink and drainer. There is space for an under counter fridge and plumbing for a washing machine and slimline dishwasher. The electric oven is built in and there is a gas hob with an extractor hood above. For practicality, the floor is tiled.

First Floor
On this floor you will find two double bedrooms with exposed ceiling beams and both enjoying a degree of countryside views. There is also the bathroom, which has a bath with a mixer tap and telephone style shower attachment, a WC and pedestal wash hand basin.

Outside

Garden
The garden has been designed for easy upkeep and is mostly laid to paving stone that is bordered by well stocked mature beds planted with a variety of shrubs and flowers. A path ,meanders down to an arch where there is a good sized timber shed. The garden is a fabulous space and enjoys a good amount of sunlight.

Useful Information

Energy Efficiency Rating D
Council Tax Band C
uPVC Double Glazing
Gas Fired Central Heating from a combination boiler
Septic Tank Drainage shared
Freehold
No Onward Chain

Location and Directions

The property is situated in the village of Shillingstone which lies beside the river Stour and between the towns of Sturminster Newton and Blandford approximately 4 and 6 miles away. There are secondary schools in both towns. The village boasts a primary school, public house, petrol station and shop plus a Co-Op. The old railway station and track has been renovated as an on-going project. The large 7 acre recreation ground and trailway are very popular amenities.
Postcode - DT11 0QT
What3words - ///pranced.blast.rattled

EPC Graph for Lanchards, Shillingstone

Book a viewing

Or call us to make an enquiry

01258 473030

1 Market House, Market Place, Sturminster Newton DT10 1AS

Calculate

Please be aware, these results are for illustrative purposes only and should not be considered as a mortgage quote. These are based on a repayment mortgage and may vary depending on the term and interest rate of your mortgage.

Lender fees may also be applicable. If you would like guidance on the right mortgage for you, we recommend speaking to a mortgage consultant.

Results

Stamp Duty To Pay:

Effective Rate:

Tax Band % Taxable Sum Tax

Are you looking to sell?

Book a Valuation