For Sale 4 Bed For Sale

Asking Price £472,500

Common Mead Lane, Gillingham

  • Newly Built Detached
  • Four Double Bedrooms
  • Spacious Sitting Room
  • Large Kitchen/Dining/Family Room
  • Garage, Parking and Garden
  • Edge of Town and Country
  • Eco Friendly Features
  • Energy Efficiency Rating B
A brand-new, detached family home ready to move into, perfectly positioned at the end of a peaceful cul-de-sac and just a few strides from open countryside—ideal for dog walking, weekend adventures, and exploring with the children. The property also enjoys easy access to local facilities, with a short stroll across the fields to the pub and café, while the town centre and mainline train station are conveniently within reach.

Inside, the home is designed for modern family life. There are four generous double bedrooms, including a main bedroom with en-suite, complemented by a stylish family bathroom. The spacious sitting room features a bay window, offering a bright and welcoming space to relax. The heart of the home is the large open-plan kitchen, dining, and family room, fitted with some integrated appliances and French doors leading out to the garden—perfect for everyday family living and entertaining. A utility room and convenient downstairs WC complete the ground floor.

Outside, the garden is thoughtfully laid out with lawn and paved areas, providing space for play, gardening, or simply enjoying the fresh air. A garage and driveway parking for two cars add practicality.

This home also benefits from eco-friendly features including an EV charging point and photovoltaic panels, as well as a build guarantee for peace of mind. With numerous upgrades and help-to-buy style deposit terms available (subject to conditions), this property offers a rare opportunity to secure a modern, versatile, and sustainable family home in a superb location.

The Property

Accommodation

Inside

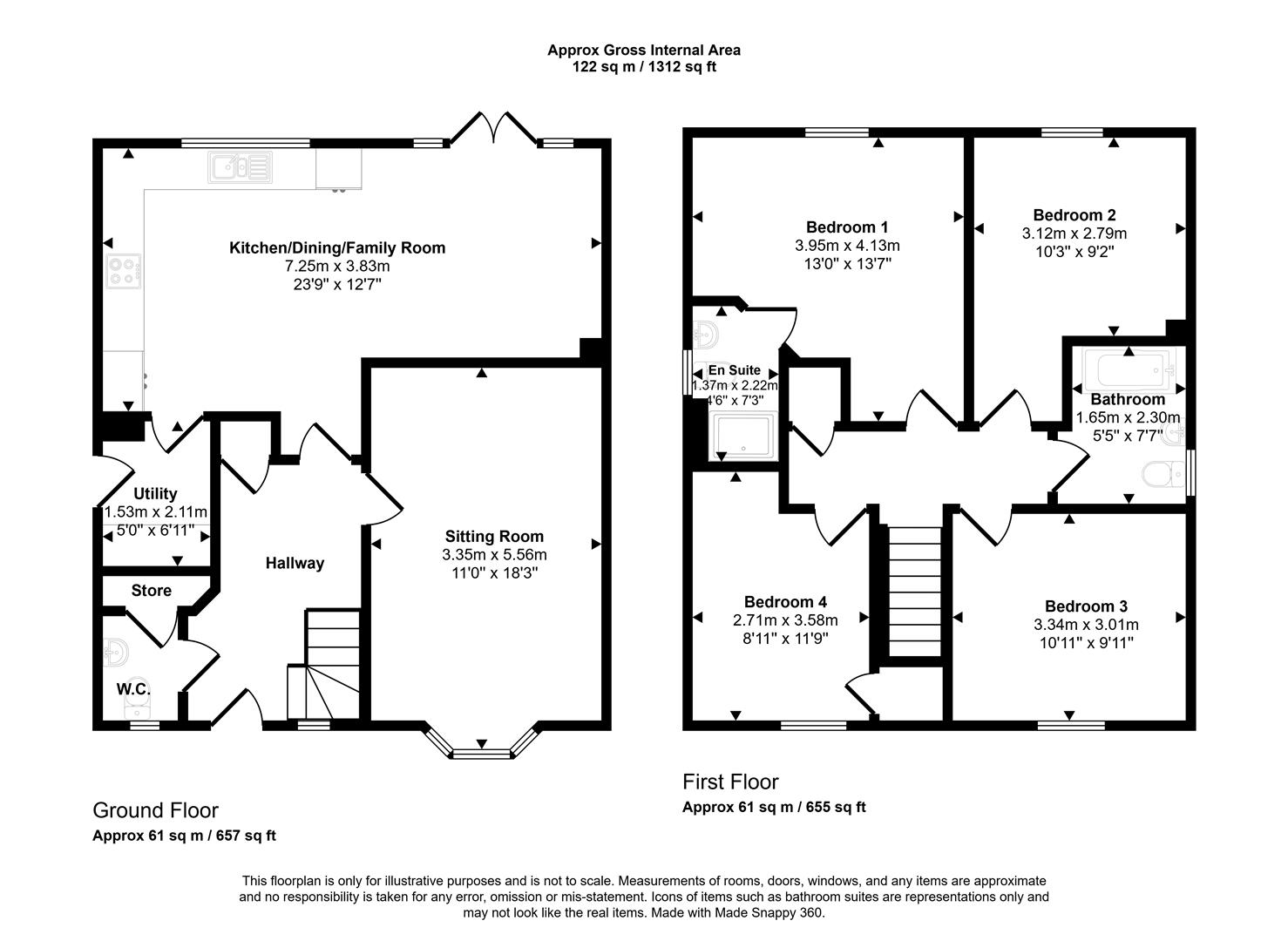
Ground Floor
The front door opens into a spacious and inviting entrance hall with stairs rising to the first floor and doors leading off to the cloakroom, kitchen/dining/family room and to the sitting room. The generously sized sitting room has a bay window to the front and plenty of space for settees and chairs.

At the rear of the house there is a large open plan kitchen/dining and family room with window overlooking the garden and double doors opening out to the garden. The kitchen area is fitted with a range of quality, soft closing units consisting of larder cupboard, floor cupboards, cutlery and deep pan drawers, as well as eye level cupboards with counter lighting beneath. There is a generous amount of work surfaces with matching upstand and inset bowl with a swan neck mixer tap. The built in appliances consist of a fridge/freezer, eye level double electric oven, dishwasher and five burner gas hob with a splash back and extractor hood above.

From the kitchen there is access to the utility room, which has a door to the rear garden and there is also a cloakroom on the ground floor with door to a large storage cupboard. Throughout the ground floor, with the exception of the sitting room, there is wood effect flooring.

First Floor
On this floor there are four double sized bedrooms, main with an e-suite shower room plus the bathroom. The bathroom is fitted with a stylish suite consisting of low level WC, pedestal wash hand basin with mono tap and bath with a mono tap.

Outside

Garage and Parking
The property benefits from a single garage with parking in front of the garage for two cars. There is also an EV point.

Garden
The rear garden is turfed with a paved seating area allowing you to design your own outdoor space.

Useful Information

Energy Efficiency Rating B
Council Tax Band - not assessed yet
uPVC Argon Filled Double Glazing
Gas Fired Central Heating
Mains Drainage
Freehold
No Onward Chain
Ready to Move into
Many Extras Included
There will be a development charge for the upkeep of communal areas, once the build has completed.
*The photos shown are of view homes at Romans Quarter. Actual plot specifications, layouts and materials may vary. Please contact the sales office for full details.*

Location and Directions

Gillingham is a vibrant market town in North Dorset, offering a wonderful blend of rural charm and modern convenience. Surrounded by rolling countryside yet well-connected by a mainline railway station with direct services to London Waterloo, it’s an increasingly popular choice for families and commuters alike. The town features a good range of everyday amenities, local shops, and leisure facilities, along with a welcoming community atmosphere.

In addition to its own well-regarded primary and secondary schools, Gillingham is ideally positioned for access to some of the region’s most prestigious independent schools. Nearby, you’ll find Port Regis School in Motcombe, just outside the town, while Bryanston School in Blandford Forum, Clayesmore School in Iwerne Minster, and both Sherborne School and Sherborne Girls in Sherborne are within easy reach. Leweston School, also near Sherborne, provides further options for private education, offering excellent academic standards and a strong co-curricular focus. With its combination of strong schooling, beautiful surroundings, and excellent transport links, Gillingham continues to attract families looking for both quality of life and educational opportunity.
Postcode - SP8 4RE
What3words, to the development entrance - couch.grilled.lurching

Book a viewing

Or call us to make an enquiry

01747 824547

Restways, High Street, Gillingham, Dorset SP8 4AA

Calculate

Please be aware, these results are for illustrative purposes only and should not be considered as a mortgage quote. These are based on a repayment mortgage and may vary depending on the term and interest rate of your mortgage.

Lender fees may also be applicable. If you would like guidance on the right mortgage for you, we recommend speaking to a mortgage consultant.

Results

Stamp Duty To Pay:

Effective Rate:

Tax Band % Taxable Sum Tax

Are you looking to sell?

Book a Valuation