For Sale 3 Bed For Sale

Asking Price £329,950

Vartenham Close, Milborne Port

  • End of Terrace Home
  • Three Good Sized Bedrooms
  • Spacious Kitchen/Dining Room
  • Bathroom and En-Suite
  • Easy to Maintain Garden
  • Garage and Parking
  • Close to all Facilities
  • Energy Efficiency Rating B
Stylish Village Living – Modern End-of-Terrace with Views and Versatility

Tucked away along a quiet pedestrian path, this smart and stylish end-of-terrace home delivers modern comfort with a village backdrop straight out of a postcard. With delightful views across the green to the church tower and village beyond, it’s the perfect blend of peaceful surroundings and everyday convenience—just moments from local amenities and a short car journey or bus ride to Sherborne and its mainline station.

Step inside and discover three well-proportioned bedrooms—two good sized doubles and a versatile single - ideal work from home space or nursery—along with an en-suite shower room and sleek family bathroom. Whether you're up-sizing, investing, or stepping onto the property ladder for the first time, this home ticks all the right boxes. The light-filled sitting room enjoys a lovely outlook to the front, while the open-plan kitchen and dining room opens directly onto the rear garden—ideal for hosting, relaxing, or simply enjoying the day-to-day flow of life. A large cloakroom adds to the practical appeal, offering space for coats, boots and shoes.

Outside, the low-maintenance garden offers just the right amount of outdoor space without the hassle, and with a garage and parking included, you’ve got everything covered.

Smart, spacious, and brilliantly located—this is a fantastic opportunity for first-time buyers, young families, or savvy investors looking for a home with heart and potential.

The Property

Accommodation

Inside

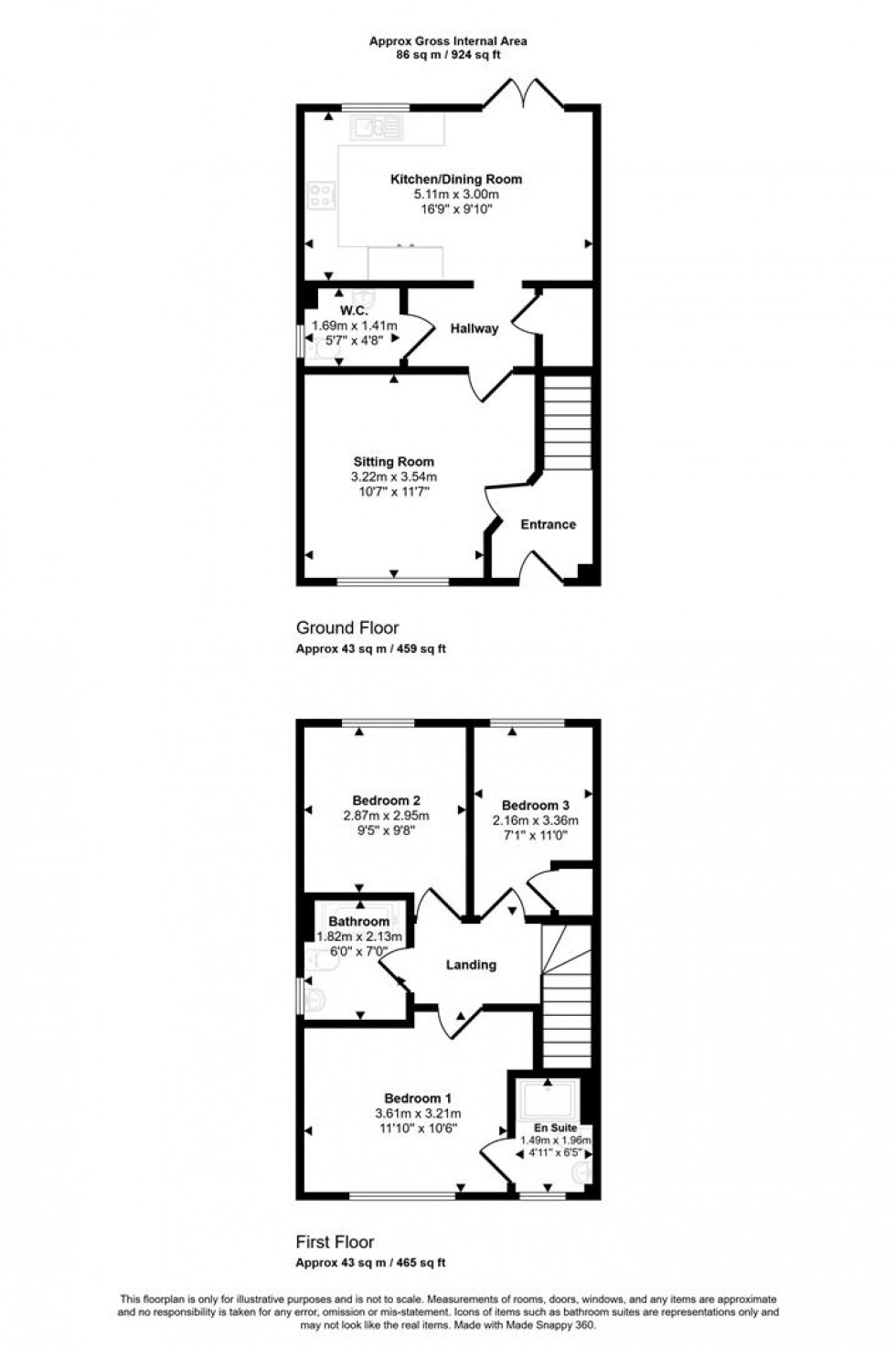
Ground Floor
The front door opens into a welcoming entrance with enough room for coats and shoes. For appearance and practicality there is attractive wood effect flooring. Stairs rise to the first floor and a door opens into a bright, well proportioned sitting room with view over the green to the front.

From the sitting room, there is a door into the inner hall where you will find the cloakroom and door to the understairs cupboard plus an opening into the kitchen/dining room. There is attractive wood effect flooring, which continues into the cloakroom and kitchen/dining room.

The kitchen/dining room overlooks the rear garden with double doors opening out to the garden. The kitchen area is fitted with a range of modern units consisting of floor cupboards, separate drawer unit, tall larder cupboard and eye level cupboards. You will find a generous amount of wood effect work surfaces with a matching upstand and a one and a half bowl stainless steel sink and drainer with a swan neck mixer tap. The dishwasher and fridge/freezer are integrated and there is plumbing for a washing machine. The electric oven is built in with a gas hob and extractor hood above.

First Floor
Stairs rise to a good sized, part galleried landing with access to the loft space and doors leading off to all rooms. You will find two good sized double bedrooms - main with an en-suite shower room, plus a generously sized single bedroom that is ideal as a work from home space or nursery. In addition, there is the family bathroom, which is fitted with a modern suite consisting of a wall hung wash hand basin, WC with concealed cistern and a bath with full height tiling to the surrounding walls.

Outside

Garage and Parking
Located to the back of the property, there is a single garage with an up and over door plus parking for one car in front. The garage is located in a block to the right hand side of the garden gate and is the second one in.

Garden
The rear garden has been designed for easy upkeep and has a decked seating area and an artificial lawn plus a banked area planted with a few shrubs - central steps rise to the top of the garden. To one side of the garden, you will find a paved path and steps that rise to the gate, which opens to the parking and garage. The garden is fully enclosed.

Useful Information

Energy Efficiency Rating B
Council Tax Band C
uPVC Double Glazing
Gas Fired Central Heating
Mains Drainage
Freehold
Remainder of the NHBC build warranty
There is a development charge for the upkeep of communal areas, which is currently £400 per annum.

Directions

Postcode - DT9 5FY
What3words - marine.tags.onions

EPC Graph for Vartenham Close, Milborne Port

Book a viewing

Or call us to make an enquiry

01747 824547

Restways, High Street, Gillingham, Dorset SP8 4AA

Calculate

Please be aware, these results are for illustrative purposes only and should not be considered as a mortgage quote. These are based on a repayment mortgage and may vary depending on the term and interest rate of your mortgage.

Lender fees may also be applicable. If you would like guidance on the right mortgage for you, we recommend speaking to a mortgage consultant.

Results

Stamp Duty To Pay:

Effective Rate:

Tax Band % Taxable Sum Tax

Are you looking to sell?

Book a Valuation