For Sale 4 Bed For Sale

Asking Price £585,000

Duntish, Dorchester

  • Spacious Detached Home
  • Annexe with Income Potential
  • Four Double Bedrooms
  • Four Reception Rooms
  • Garage, Parking & Outbuildings
  • Set in just under 0.6 of an Acre
  • Scope to Enhance
  • Far Reaching Views
  • Energy Efficiency Rating F
Step into the warmth and history of this delightful detached farmhouse, a cherished family home since the late 1800s, now ready for its next chapter. With over 2,600 sq ft/243 sq. m of flexible living space, this character-filled home is brimming with opportunity—ideal for a growing or multi-generational family looking to create something truly special.

From the moment you arrive, you’ll feel the soul of this home: original features, generous rooms, and the kind of adaptable layout that grows with your needs. Upstairs offers four spacious double bedrooms and a family bathroom, while downstairs presents a wealth of options, including three to four reception rooms—two with inviting fireplaces perfect for cosy evenings. At the heart of the home is a spectacular open-plan kitchen/dining/family room with a pitched ceiling and an abundance of natural light—made for family gatherings, Sunday roasts, and spontaneous laughter. Just off the kitchen, an inner hallway offering the perfect nook for homework sessions, quiet reading, or creative projects while dinner simmers on the stove.

The attached annexe, with its own shower room, is a real bonus—ideal for an independent teenager, a live-in relative, or even as a holiday let or business venture.

Outside, the magic continues. Set in half an acre, the garden is a true playground for imagination. Children can explore the wilder area across the charming stone bridge and stream, currently left to attract wildlife but easily transformed into a play space, vegetable garden, or chicken run. A large workshop and timber outbuildings add even more practical potential.

Nestled in a peaceful rural spot, yet conveniently close to nearby towns and amenities, this home offers the best of country living with all the convenience you need. Yes, it needs some updating—but that’s where the adventure begins. With space, soul, and endless potential, this farmhouse is ready to be reimagined as your family’s forever home.

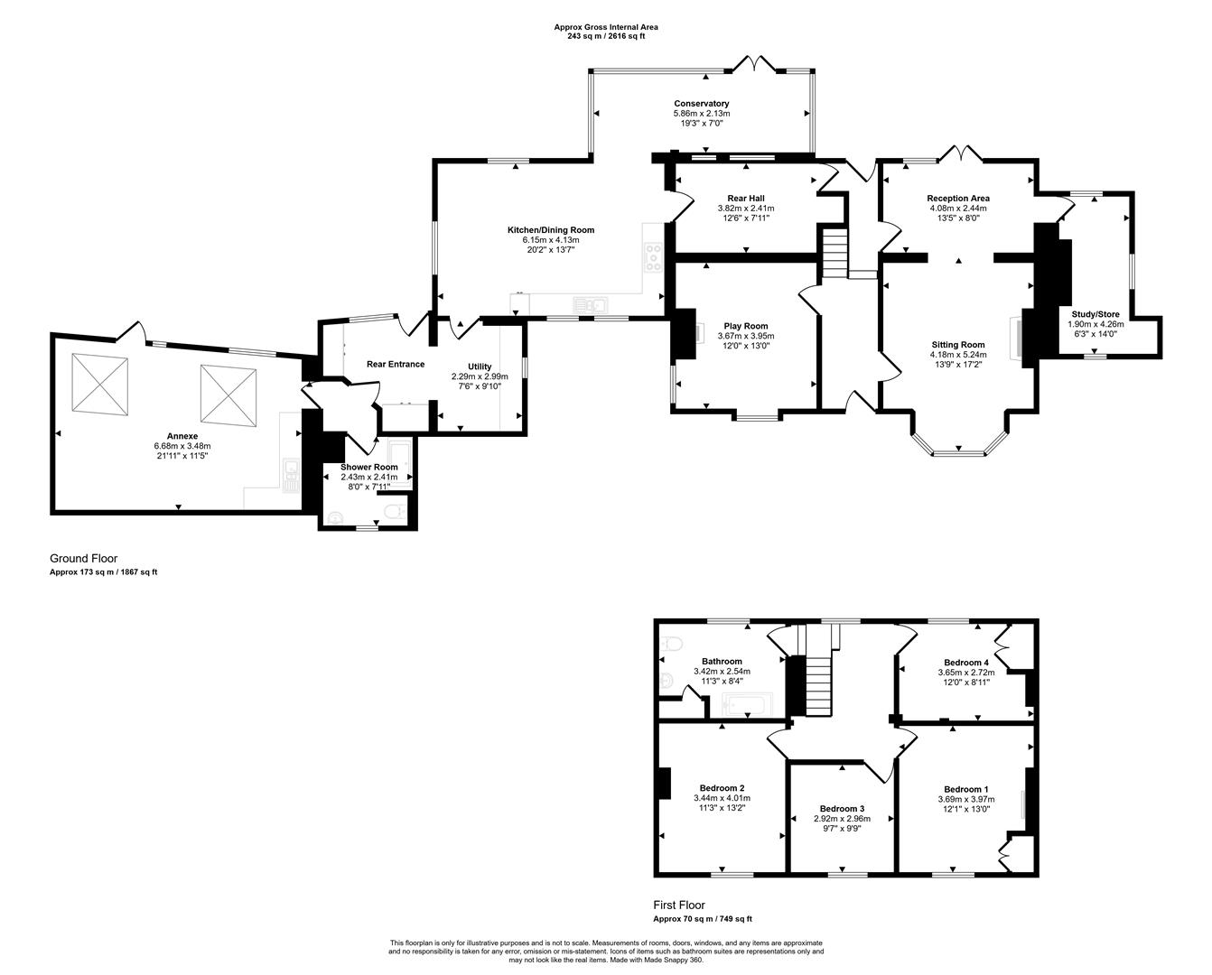
The Property

Accommodation

Inside

An original panelled door with inset glass panes and arched transom window above opens into the main reception hall (when you live here, you will enter into the rear entrance) where there is a door at the far end, leading out to the verandah. Stairs rise to the first floor and doors lead off to the inner hall, play room and sitting room. The sitting room is a bright and spacious split level room with a bay window to the front and double doors to the rear, which open to the verandah. The focal point of the room is the fireplace with a log burner - ideal for chilly autumn afternoons or winter evenings. From the sitting room there is further door to the main hall and one into another reception room that could be a study or store room, depending on needs and houses the boiler.

The play room benefits from a double aspect and has a fireplace with wood burner and built in book/display shelves. It provides flexible usage - a great teenager's retreat with their friends, ground floor bedroom or a study. The inner hall to the rear also offers adaptable usage but would make an ideal homework area where an eye can be cast from the kitchen/dining/family room.

The kitchen/dining/family room will certainly be the hub of the house. It benefits from a triple aspect, pitched ceiling with exposed feature beams. There is plenty of space for a large dining table as well as a settee and armchair and there is a built in work space in one of the corners. It is fitted with a range of country style kitchen units consisting of floor cupboards with drawers and eye level cupboards and shelves as well as a larder style cupboard. You will find a good amount of granite work surfaces with a tiled splash back and a Butler style sink with swan neck mixer tap. There is an integrated dishwasher and a built in microwave. Adding more character to the room is the oil fired Aga for cooking and hot water and for the summer months there is a built in eye level electric oven. For practicality the floor is laid to quarry tiles. From the kitchen, you will find access to conservatory, which overlooks the rear garden and to the utility/boot room and the rear entrance where there is plenty of built in storage.

From the rear entrance there is access to the shower room, which is fitted with a modern suite and a door opens to a large open plan annexe with kitchen units and work surface. Windows overlook the drive to the rear. The annexe benefits from its own entrance and can be locked from the main house, making it a viable income producer.

First Floor
Stairs rise to a spacious galleried landing with built in book/display shelves. Door lead off to four good sized double bedrooms, bedrooms one and four have built in wardrobes and the main bedroom also has the original Victorian fireplace. There is also the main bathroom, which is fitted with a suite comprising:- bath with wood rim and mixer tap with shower attachment, vanity wash hand basin with tiled splash back and low level WC. There is also the airing cupboard housing hot water cylinder. For practicality the floor is laid to vinyl.

Outside

Parking, Garage and Workshop
Double timber gates to the side of the property open onto a generous brick paved parking area with space to park multiple vehicles or for storing a caravan, horse box, boat or motor home. Double timber doors open to the large garage/workshop, which benefits from light and power plus rafter storage. It measures - 16' 6" x 16' 6" (5.03m x 5.03m) . There is additional storage/workspace int the timber barn style building which has tow enclosed areas measuring about 15'5'' x 9'9''/ 4.70 m x 2.97 m and 11'4" x 17'6''(3.45 m x 5.33 m). There is an electrical car charging point.

Rear Garden
The garden is laid to lawn with a brook separating the formal garden from the natural areas. The wildlife area could easily be incorporated into the main garden or provide an area for vegetable, chickens or play area. There are a variety of mature apple trees, other trees and shrubs. There is a paved sun terrace to the rear of the house, which is partly beneath the verandah. Behind the outbuildings you will find more garden where there is a delightful view over the neighbouring countryside. The whole grounds extend to just under 0.6 of an acre and enjoy plenty of sun and privacy.

The Location

Duntish and Buckland Newton

Nestled in the beautiful Dorset countryside, Duntish and the nearby village of Buckland Newton offer a peaceful rural lifestyle with a strong sense of community. Surrounded by rolling hills and scenic walking routes, the area is perfect for nature lovers and those seeking a quieter pace of life.

Buckland Newton boasts a well-regarded primary school with a collect bus service or a walk over the fields, a welcoming village pub - The Gaggle of Geese, a village shop for everyday essentials, and a charming parish church. The village hall has a visiting post office and hosts regular events and activities and there is a wide variety of clubs/groups - from philosophy to the environment, as well as a thriving village youth club. With easy access to the market towns of Dorchester and Sherborne, residents enjoy the best of both country living and convenient connections.

Useful Information

Energy Efficiency Rating tba
Council Tax Band F
The windows are mixed glazing - single/double - Wood Framed and uPVC - mainly sash style to the front.
Oil Fired Central Heating
Mains Drainage
Freehold
The property falls within the catchment area for the Gryphon School in Sherborne

Directions

Postcode - DT2 7DR
What3words - flick.tarred.required

EPC Graph for Duntish, Dorchester

Book a viewing

Or call us to make an enquiry

01258 473030

1 Market House, Market Place, Sturminster Newton DT10 1AS

Calculate

Please be aware, these results are for illustrative purposes only and should not be considered as a mortgage quote. These are based on a repayment mortgage and may vary depending on the term and interest rate of your mortgage.

Lender fees may also be applicable. If you would like guidance on the right mortgage for you, we recommend speaking to a mortgage consultant.

Results

Stamp Duty To Pay:

Effective Rate:

Tax Band % Taxable Sum Tax

Are you looking to sell?

Book a Valuation