Sold STC

Sold STC

Guide Price £750,000

Boys Hill, Sherborne

  • Detached Farmhouse
  • 2747 sq ft/255 sq,m
  • Set in about 3.5 Acres
  • Four Double Bedrooms
  • Three Reception Rooms
  • Sand School
  • No Onward Chain
  • Beautiful Views
  • EPC E
Much-Loved Family Home with Land – Ideal for Modern Families & Multi-Generational Living

On the market for the first time in over 40 years, this charming detached farmhouse has been a much-loved family home, offering warmth, character, and space in abundance. Set within 3 acres of peaceful countryside just a short drive from Sherborne, it’s perfectly suited for growing families, multi-generational living, or those craving the freedom of rural life.

Inside, this generously proportioned home offers 2,747 sq ft/255 sq. m of versatile living space. A spacious and welcoming entrance hall leads to a light-filled sitting room with a fireplace, a large formal dining room, and a kitchen/breakfast room that has hosted decades of family meals and memories. The office/games room with an adjoining store is ideal as a home office, teen hangout, or potential annexe space. A utility/boot room completes the practical ground floor layout.

Upstairs, there are four comfortable double bedrooms, including a stunning principal suite with a large walk-in wardrobe and en-suite bathroom, plus a spacious family bathroom – ideal for busy mornings or winding down in the evening.

Outside, the property offers a true taste of country life with a formal garden, ample parking, and paddocks with a sand school, perfect for equestrian use, hobby farming, or just enjoying open space with children and pets. Whether you're looking to keep animals, start a smallholding, or simply unwind in nature, this property has room for it all.

With no onward chain and scope to personalize, this is a rare opportunity to own a home that has been treasured for generations – and now ready to welcome yours.

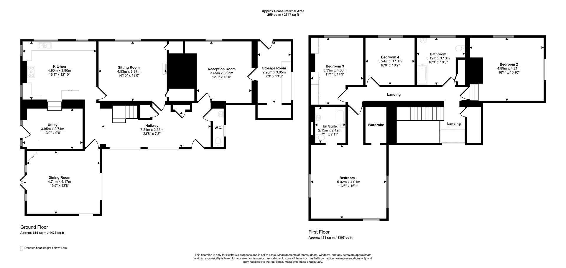
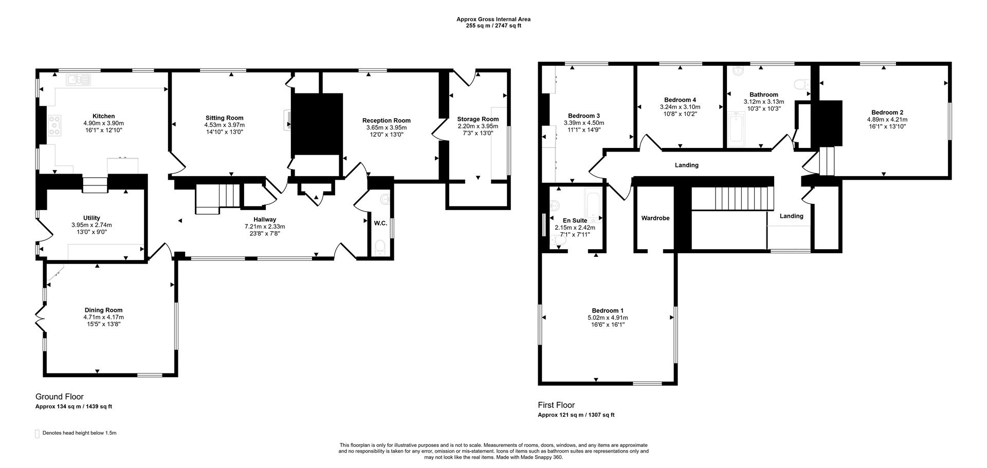
The Property

Accommodation

Inside

Ground Floor
On the ground floor you will find a spacious and welcoming reception hall with stairs rising to the first floor and doors leading off to all main rooms. The sitting room enjoys plenty of natural light and has a large inglenook fireplace with a wood burner. The large formal dining room benefits from a triple aspect and double doors open out to the paved seating area and has ample room to host family gatherings. There is further reception room that is currently used as an office but lends itself to other options - potential for a ground floor bedroom and convert the store to an en-suite.

Also on the ground floor there is a generously sized kitchen/breakfast room with a double aspect and fitted with ample modern units consisting of floor cupboards, larder style cupboard, separate drawer units with cutlery and deep pan drawers plus eye level cupboards and shelves. There is a good amount of wood work surfaces with a tiled splash back and a stainless steel sink and drainer with a mixer tap. The fridge/freezer is integrated and there is a tri-fuel range cooker.

From the kitchen there is step down into a generously sized utility/boot room, which is fitted with floor and eye level cupboards and has space for appliances and plumbing for a washing machine. The door opens to the paved seating area. Also on the ground floor is a WC.

First Floor
On this floor you will find a generously sized family bathroom and four spacious double bedrooms, principal with an en-suite bathroom and walk in wardrobe.

Outside

Parking
The property is approached from the lane via double five bar timber gates onto a good sized parking area with enough room to park multiple vehicles.

Formal Garden
This has paved seating area to the back of the house with the majority of the garden being laid to lawn offering scope to landscape to your own needs and taste.

Paddocks and Sand School
These are accessed from the parking area where a five bar gate opens to the paddocks and a grassy path leads up to the sand school. Total grounds extend to about 3.5 acres.

Useful Information

Energy Efficiency Rating tba
Council Tax Band G
uPVC Double Glazing
Septic Tank Drainage
Oil Fired Central Heating
Freehold
No Onward Chain

Location

Boys Hill, Sherborne

Set in the peaceful hamlet of Boys Hill, this property offers the best of rural Dorset living while remaining within easy reach of the historic town of Sherborne. With its charming architecture, boutique shops, cafés, and a mainline station offering direct services to London Waterloo, Sherborne blends small-town charm with excellent connectivity.

The area is especially appealing to families, thanks to a wide range of prestigious educational options. Sherborne is home to leading independent schools including Sherborne School, Sherborne Girls, and Leweston School, alongside respected state options such as The Gryphon School. Additionally, Clayesmore and Bryanston School—two of Dorset’s most highly regarded private schools—are also within accessible reach, making this an ideal location for those seeking top-tier education across all age groups.

A perfect setting for families or those relocating from further afield, Boys Hill offers country living with exceptional schools and town amenities close by.

Directions

Postcode - DT9 5PJ. What3words - occupiers.safe.drags

EPC Graph for Boys Hill, Sherborne

Book a viewing

Or call us to make an enquiry

01258 473030

1 Market House, Market Place, Sturminster Newton DT10 1AS

Calculate

Please be aware, these results are for illustrative purposes only and should not be considered as a mortgage quote. These are based on a repayment mortgage and may vary depending on the term and interest rate of your mortgage.

Lender fees may also be applicable. If you would like guidance on the right mortgage for you, we recommend speaking to a mortgage consultant.

Results

Stamp Duty To Pay:

Effective Rate:

Tax Band % Taxable Sum Tax

Are you looking to sell?

Book a Valuation