For Sale 4 Bed For Sale

Asking Price £825,000

Colesbrook, Gillingham, Dorset

  • Spacious Modern Home
  • 2269 sq. ft/211 sq. m
  • Four Double Bedrooms
  • Four En-Suites Facilities
  • Spacious Open Plan Living
  • Garden Room
  • Large Private Grounds
  • Character Features
  • Energy Efficiency Rating B
Striking Contemporary Home with Rural Charm & Superb Versatility

Set in a conservation area and tucked away in a peaceful yet connected location, this individually designed detached home, built in 2015, is a stunning fusion of modern style, smart design, and countryside character—offering over 2,269 sq ft/211 sq, m of versatile, high-spec living space.

From the moment you arrive via the long private drive, the home’s elegant blend of Marnhull stone and cedar cladding hints at the quality and individuality within. Step inside and discover light-filled, flexible spaces perfect for modern family life, entertaining, or working from home.

The heart of the home is a superb open-plan kitchen/living/dining space, with granite worktops, masses of storage, and zones to cook, relax and gather. A separate utility/boot room keeps the day-to-day running smoothly. Meanwhile, a warm and welcoming reception room with fireplace and a log burner, opens directly to the garden—ideal for cosy evenings or sunny summer days.

There are three spacious double bedrooms upstairs, all with built-in wardrobes and sleek en-suites, plus a ground floor double bedroom with its own en-suite, ideal for guests, multi-generational living, or a dedicated home office.

Expect top-notch finishes throughout: limestone tiles and wood floors, underfloor heating downstairs, and beautiful feature timbers that add warmth and character.

Outside, the well-tended garden is perfect for relaxing, with the automatic lawn mower taking care of the hard work. A timber car barn/workshop/store offers tons of potential for hobbies, storage, or workspace.

Best of all, you’ll enjoy rural peace without isolation—just minutes from local facilities, rail links, doctors and dentists surgeries, chemist and vibrant market towns.

This is modern countryside living—stylish, spacious, and ready for whatever life brings next.

The Property

Accommodation

Inside

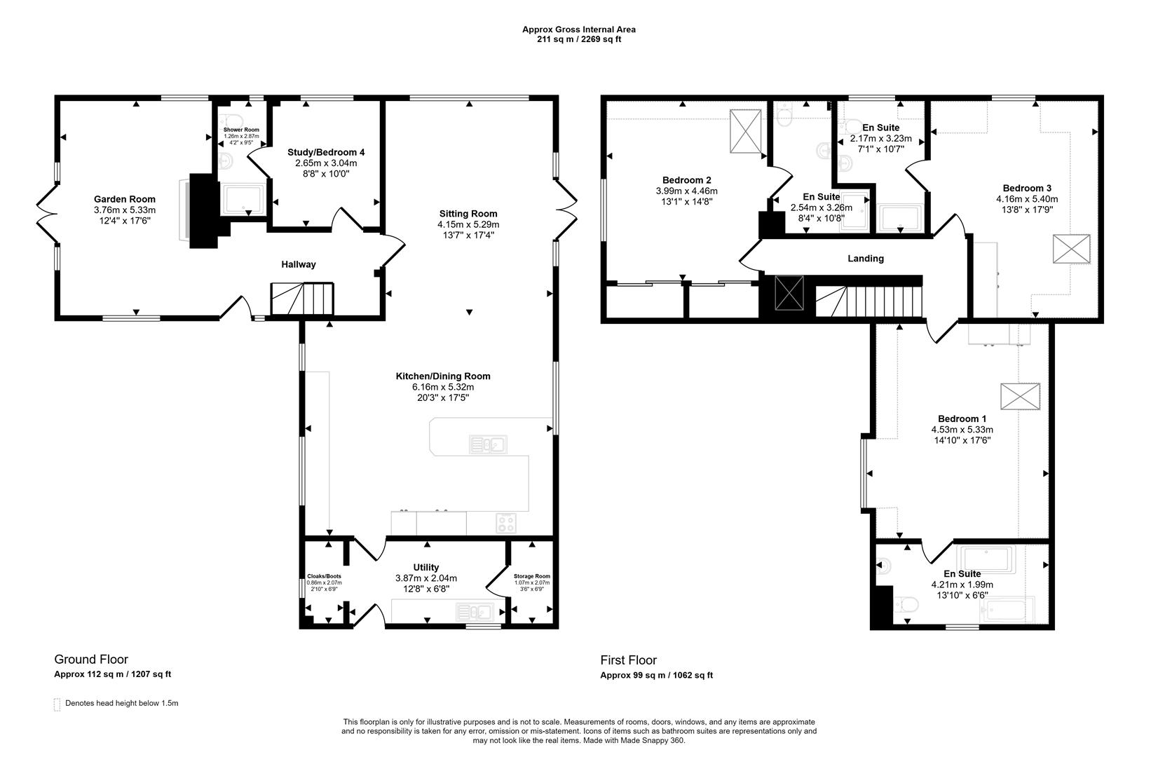
Ground Floor
The front door opens into a warm and welcoming reception area with stairs rising to the first floor, doors to the sitting room and bedroom four/study and opening into the garden room. There is attractive oak flooring, which continues throughout the ground floor with the exceptions of the kitchen/dining area, utility and en-suite, which have limestone tiling. The spacious and bright garden room, benefits from a triple aspect with window to the front and rear plus double doors that open to the main garden. Adding character to the room is a fireplace with Marnhull stone surround and wood burner and exposed timber uprights and beams.

The open plan living space provides an excellent area for entertaining or spending time with the family. There are full height windows to the rear and double doors opening to the side sun terrace. Giving personality to the room are the exposed timbers and uprights.

The dining and kitchen area is fitted with plenty of stylish soft closing wood units consisting of floor cupboards with corner carousels and lighting underneath, drawer units with deep pan and cutlery drawers plus eye level cupboards with counter lighting beneath. There is a generous amount of granite work surfaces with a matching upstand and inset sink with a swan neck mixer tap. In addition, there is a breakfast area with wood surface, plus a dresser style unit. You will find an integrated larder fridge and separate freezer and a dishwasher. There is also a built in eye level double electric oven and an induction hob with a granite splash back and extractor hood above. From the kitchen a door opens to a large utility/boot room that is fitted with storage cupboards and work surface.

Also on this floor, is double bedroom with an en-suite shower room that is currently used as a study.

First Floor
From the galleried landing there are doors leading off to three generously sized double bedrooms, all benefitting from fitted wardrobes and en-suite facilities.

Outside

Car Barn/Workshop and Parking
The property is approached from the lane onto a long private drive that opens to a generously sized parking area with enough room to park multiple vehicles. You will also find an oak car barn with storage and workshop that are fitted with light and power.

Garden
To one side of the house there is a paved and gravelled sun terrace that offers plenty of space to hold outdoor gatherings. On the other side there is a large private garden, which is mostly laid to lawn and planted with a variety of flowers, shrubs and trees. The gardens provide excellent space and privacy and benefit from sun throughout the day.

Useful Information

Energy Efficiency Rating B
Council Tax Band F
Sustainable Wood Framed Double Glazing
Air Sourced Heat Pump for central heating - underfloor ground floor and radiators first floor
Drainage - Private Treatment Plant
Freehold
Fully filtrated drinking water system to all cold water taps.

Location

Gillingham, Dorset

Gillingham is a vibrant market town in North Dorset, offering a wonderful blend of rural charm and modern convenience. Surrounded by rolling countryside yet well-connected by a mainline railway station with direct services to London Waterloo, it’s an increasingly popular choice for families and commuters alike. The town features a good range of everyday amenities, local shops, and leisure facilities, along with a welcoming community atmosphere.

In addition to its own well-regarded primary and secondary schools, Gillingham is ideally positioned for access to some of the region’s most prestigious independent schools. Nearby, you’ll find Port Regis School in Motcombe, just outside the town, while Bryanston School in Blandford Forum, Clayesmore School in Iwerne Minster, and both Sherborne School and Sherborne Girls in Sherborne are within easy reach. Leweston School, also near Sherborne, provides further options for private education, offering excellent academic standards and a strong co-curricular focus.

With its combination of strong schooling, beautiful surroundings, and excellent transport links, Gillingham continues to attract families looking for both quality of life and educational opportunity.

Directions

Postcode - SP8 4HH - What3words - caused.variation.stays

EPC Graph for Colesbrook, Gillingham, Dorset

Book a viewing

Or call us to make an enquiry

01747 824547

Restways, High Street, Gillingham, Dorset SP8 4AA

Calculate

Please be aware, these results are for illustrative purposes only and should not be considered as a mortgage quote. These are based on a repayment mortgage and may vary depending on the term and interest rate of your mortgage.

Lender fees may also be applicable. If you would like guidance on the right mortgage for you, we recommend speaking to a mortgage consultant.

Results

Stamp Duty To Pay:

Effective Rate:

Tax Band % Taxable Sum Tax

Are you looking to sell?

Book a Valuation