Sold STC

Sold STC

Offers In Excess Of £160,000

Denham Drive, Guys Marsh, Shaftesbury

  • Mid Terraced Home
  • Three Good Sized Bedrooms
  • Scope to Update and Personalise
  • Spacious Sitting Room
  • Good Sized Kitchen
  • Wonderful Views from Upstairs
  • Small Rural Community
  • Energy Efficiency Rating E
***MOTIVATED VENDOR***FAR REACHING VIEWS***CASH BUYERS IDEALLY***SOUTH FACING SUNNY GARDEN***
Ready to make your move? This generously sized three-bedroom terraced home is packed with potential and set in a peaceful rural spot with stunning views across open fields — the perfect blend of space, charm, and opportunity.

Step inside to discover a bright and welcoming layout, featuring two roomy double bedrooms, a versatile single bedroom or office space, a spacious sitting room with a gas fire, a functional kitchen, a sun room that looks out over the rear garden, and the convenience of both a bathroom and a cloakroom. Whether you're dreaming of a cosy country retreat or a stylish modern upgrade, there's fantastic scope here to put your own stamp on every room.

Outside, you'll find off-road parking for two cars, handy side and rear access, and a lovely garden complete with two sheds — one purpose-built, the other timber — ideal for hobbies, storage, or even a workshop.

Set in a quiet community of similar homes, this property offers rural living with a real sense of space, privacy, and potential. So whether you're a first-time buyer, growing family, or savvy investor, this is your chance to create something special.

Please note: Due to non-standard construction (Cornish Construction), lending options may be limited — check with your mortgage advisor.

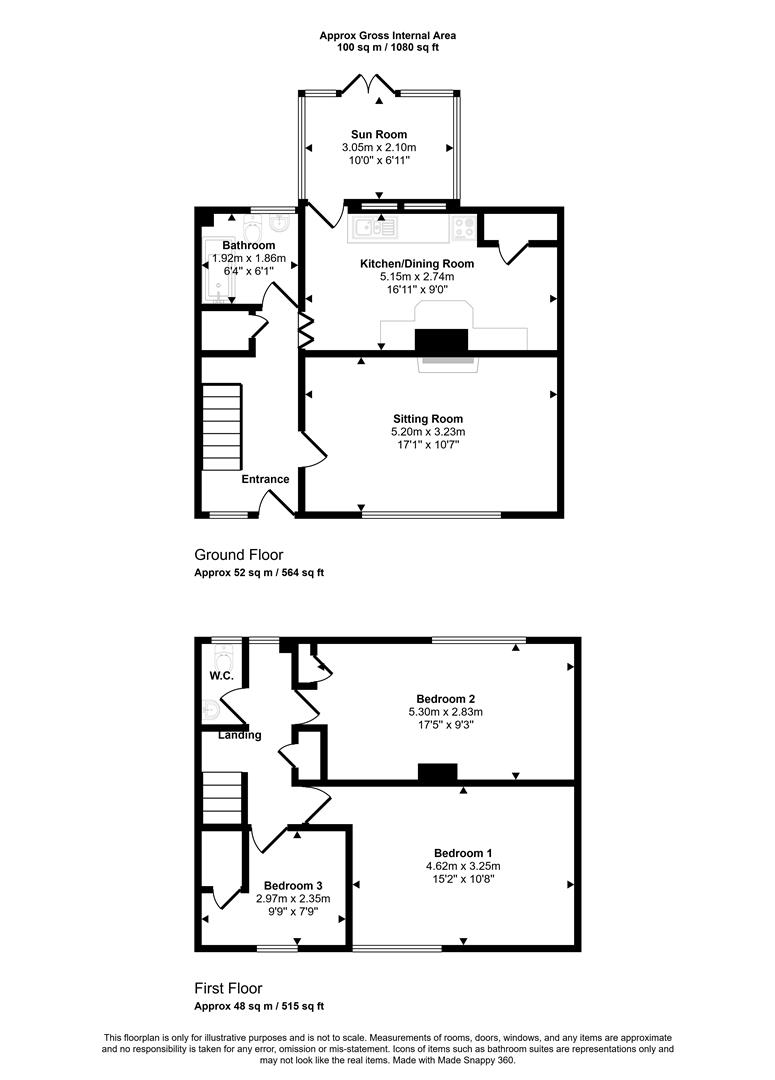
The Property

Accommodation

Inside

Ground Floor
The front door opens into a welcoming and good sized entrance hall with stairs rising to the first floor and plenty of room beneath for coats, boots and shoes, plus doors leading off to the sitting room, kitchen and bathroom. For practicality, the floor is laid in an attractive patterned vinyl, which continues into the kitchen and bathroom. The spacious sitting room lies to the front of the house and has a fireplace with a gas fire and back boiler.

The kitchen could be planned to accommodate a dining table and chairs. It is currently fitted with a range of floor cupboards with drawers and open ended display shelves and eye level cupboards. There is a generous amount of work surfaces with a tiled splash back and a one and a half stainless steel sink and drainer with a mixer tap. There is space for a slot in electric cooker and fridge/freezer and plumbing for a washing machine. From the kitchen a door opens into a useful sun room that overlooks the rear garden and provides a quiet spot for relaxing.

The bathroom is fitted with a vanity wash hand basin, WC and bath with shower above.

First Floor
Stairs rise to a good sized landing with window to the rear that takes in a lovely countryside view and there are doors leading off to the bedrooms and cloakroom, which is fitted with WC and wash hand basin. There is a good sized single bedroom that could be used as a home office plus two spacious double bedrooms. The rear bedroom has a fabulous rural outlook.

Outside

Parking
At the front of the house there is a generously sized tarmacadam drive with space to park two cars. An arch to the side leads under the house to a timber gate that opens to the rear garden.

Garden
Immediately to the back of the house there is a paved seating area with a path that leads down the garden to the rear gate, which opens to the lane. The path is edged by a flower bed. There is a purpose built shed, metal storage and a timber garden shed as well as a covered space that is good for storage. The garden is fully enclosed and enjoys a sunny aspect with potential to create an outdoor space to your own taste.

Useful Information

Energy Efficiency Rating E
Council Tax Band A
uPVC Double Glazing
Gas Fired Central Heating from a back boiler
Mains Drainage
Freehold

Directions

From Gillingham

Leave Gillingham via Newbury heading towards Shaftesbury. Just before the Turnpike Kennels turn right onto Lox Lane. At the end turn left onto Sherborne Causeway. Turn next right into Cherry Orchard Lane and second right into Coles Lane. At the end of this road turn right onto the B3091 heading towards Sturminster Newton. Take the second turning left by the post box and bear to the right. The property will be found to the right of the island. Postcode SP7 0AJ

EPC Graph for Denham Drive, Guys Marsh, Shaftesbury

Book a viewing

Or call us to make an enquiry

01747 824547

Restways, High Street, Gillingham, Dorset SP8 4AA

Calculate

Please be aware, these results are for illustrative purposes only and should not be considered as a mortgage quote. These are based on a repayment mortgage and may vary depending on the term and interest rate of your mortgage.

Lender fees may also be applicable. If you would like guidance on the right mortgage for you, we recommend speaking to a mortgage consultant.

Results

Stamp Duty To Pay:

Effective Rate:

Tax Band % Taxable Sum Tax

Are you looking to sell?

Book a Valuation