For Sale 3 Bed For Sale

Prices From £330,000

The Hamlets, Lower Road,, Stalbridge

  • Semi Detached New Home
  • Three Good Sized Bedrooms
  • Open Plan Living Space
  • Bathroom and En-Suite
  • Deposit Contribution Available
  • 10 Year Build Warranty
  • No Onward Chain
  • Energy Efficiency Rating A/B
**£16,500 Deposit Contribution Available** This brand-new semi-detached home, built to an exemplary standard, offers the perfect blend of modern comfort and countryside charm. Located on the edge of Stalbridge, it provides easy access to local amenities while being just moments from scenic rural walks, making it an ideal retreat for nature lovers and those seeking a peaceful yet well-connected lifestyle.

Designed for sustainable living, this home is packed with eco-friendly features, including a water recovery system, photovoltaic solar panels, high-efficiency insulation, and an electric vehicle charging point—ensuring a greener, more cost-effective way of living.

Inside, the thoughtfully designed layout includes two spacious double bedrooms, with the main featuring a luxurious en-suite, plus a versatile study or third bedroom to suit your lifestyle. The contemporary open-plan living space is perfect for socializing, complemented by a high-spec kitchen with quality units, Silestone work surfaces, and built-in appliances.

Outside, enjoy a fully turfed rear garden, ready to make your own, plus parking for two cars for added convenience.

With help towards your deposit available, this is a fantastic opportunity to own a stylish, energy-efficient home in a sought-after Dorset location.

Eco-Friendly. Stylish. Affordable. Don’t miss out—book your viewing today!

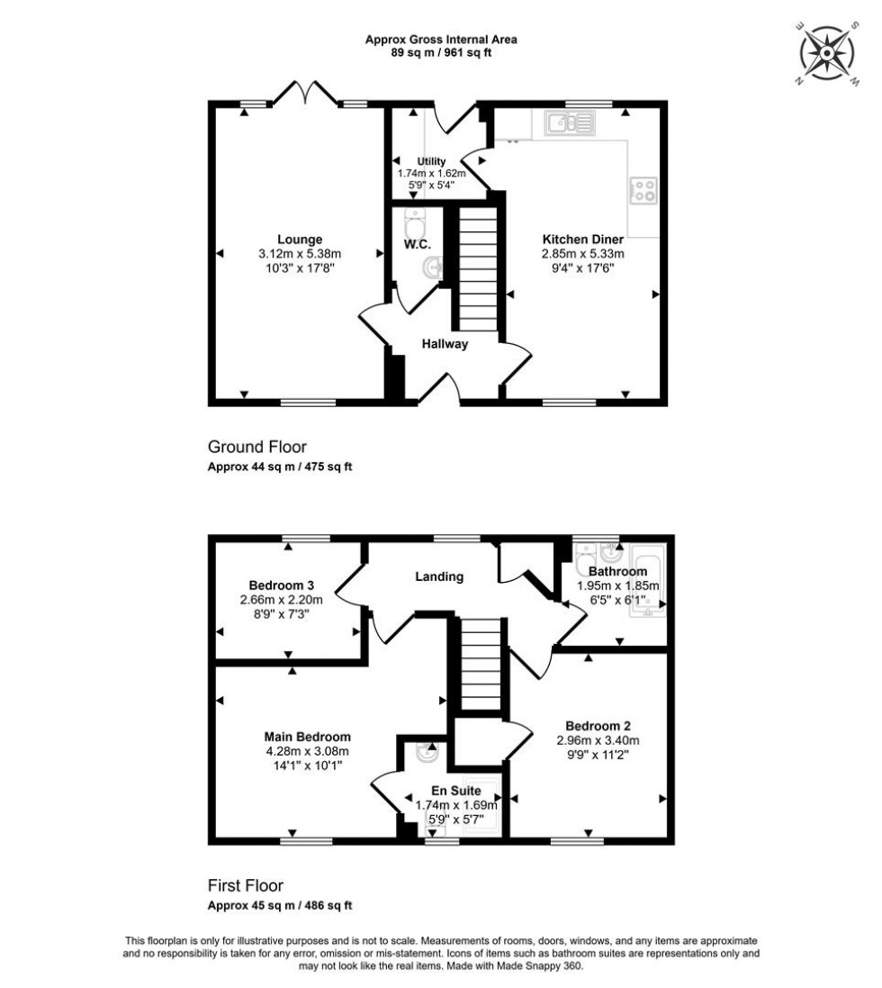
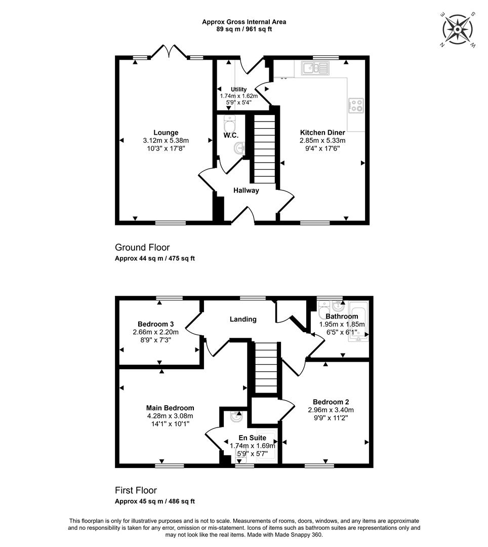
The Property

Accommodation

Inside

Ground Floor
The front door opens to the entrance hall, which has stairs rising to the first floor and doors to the sitting room, kitchen/dining/family room and to the cloakroom, which is fitted with a WC and wash hand basin. There is attractive and practical Amtico flooring that carries through into all the ground floor rooms.

The bright and spacious sitting room benefits from a double aspect with window to the front and to the side. There is ample room for settees and armchairs. The open plan kitchen/dining and family room, also benefits from a double outlook with windows to the front and side plus double doors opening out to the garden. The kitchen area is fitted with a range of high quality units consisting of floor cupboards, separate deep pan and cutlery drawers and eye level cupboards. There is a good amount of Silestone work surfaces with a matching upstand and a stainless steel sink and drainer with a swan neck mixer tap. The oven and gas hob with an extractor hood is built in and the integrated appliances comprise:- fridge/freezer and dishwasher. There is a separate utility room with units and space and plumbing for a washing machine.

First Floor
On this floor there is the family bathroom, which has a bath, WC and pedestal wash hand basin plus a study or bedroom three and two double sized bedrooms, main with an en-suite shower room.

Outside

Parking
There are two parking spaces plus an electrical charging point.

Garden
This will be turfed and there will be a paved seating area.

Useful Information

Energy Efficiency Rating A/B
Council Tax Band - not assessed yet
uPVC Argon Filled Double Glazing
Gas Fired Central Heating plus Photovoltaic Panels and Waste Water Heat Recovery System
Mains Drainage
Freehold
No Onward Chain

Directions

From Sturminster Newton

Leave Sturminster via Bridge Street at the traffic lights go over the bridge and turn right onto the A357. Continue on this road for approximately 5 miles turning left where Stalbridge is signposted. On entering Stalbridge continue past the petrol station then take the second turning on the right at the triangle onto Lower Road. The entrance to the development will be found a short distance on the right hand side. Postcode DT10 2PQ

Book a viewing

Or call us to make an enquiry

01258 473030

1 Market House, Market Place, Sturminster Newton DT10 1AS

Calculate

Please be aware, these results are for illustrative purposes only and should not be considered as a mortgage quote. These are based on a repayment mortgage and may vary depending on the term and interest rate of your mortgage.

Lender fees may also be applicable. If you would like guidance on the right mortgage for you, we recommend speaking to a mortgage consultant.

Results

Stamp Duty To Pay:

Effective Rate:

Tax Band % Taxable Sum Tax

Are you looking to sell?

Book a Valuation