For Sale 3 Bed For Sale

Offers In Excess Of £350,000

Yenston, Templecombe

  • Attractive Detached Cottage
  • Two Double Bedrooms
  • Two Reception Rooms
  • Recently Refurbished
  • Off Road Parking
  • Village Location
  • No Onward Chain
  • Energy Efficiency Rating E
Set in the peaceful village of Yenston, the property enjoys a convenient location less than a mile from Templecombe, which offers a mainline railway station, primary school, Co-op, and a village shop with post office. A little over a mile in the other direction is Henstridge, providing further local amenities and easy access to the A30.

Believed to date back to the 1800s, the cottage has been sympathetically extended in more recent years to create a superb open-plan kitchen and dining room, along with a utility room and cloakroom. The property features uPVC double glazing (including traditional sash-style windows to the front) and oil-fired central heating, while retaining plenty of character features such as two fireplaces on the ground floor and a charming Victorian-style fireplace in the principal bedroom.

Offering bright, well-proportioned accommodation, this lovely home combines period charm with modern convenience. Whilst it would benefit from some general maintenance, it presents an excellent opportunity for a new owner to make it their own.

A viewing is highly recommended to fully appreciate both the interior and the delightful outdoor space that this characterful property offers.

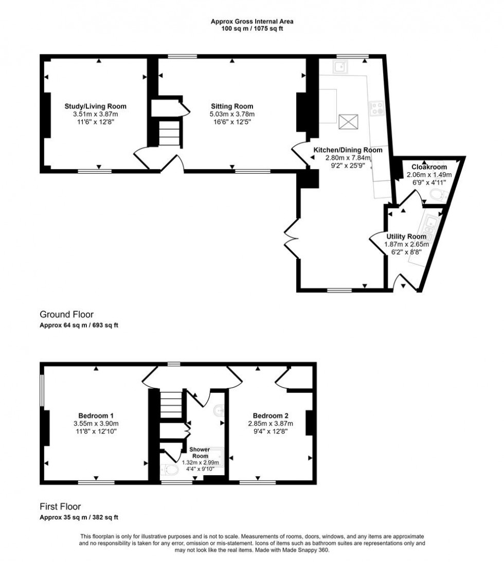
ACCOMMODATION

Ground Floor

Entrance

Part glazed front door opens into the entrance with recessed ceiling light, tiled floor and opening to the sitting room and latch door to the:-

Study/Living Room

Sash window overlooking the drive to the front. Ceiling light with decorative rose. Coved. Radiator. Power points. Feature fireplace with electric wood effect fire and shelves to either side of the chimney breast. Wood effect flooring.

Sitting Room

Enjoying a double outlook with window to the rear and sash window overlooking the garden to the front. Ceiling light with decorative rose. Smoke detector. Coved. Central heating thermostat. Radiator. Power, telephone and television points. Fireplace with wood burner and tiled hearth. Door to the understairs cupboard. Latch door to the:-

Kitchen/Dining Room

Kitchen Area:- Window with deep tiled sill to the rear aspect. Recessed ceiling lights. Skylight. Good amount of power points. Fitted with a range of country style, soft closing kitchen units in duck egg blue consisting of floor cupboards, some with drawers and pull out racks, separate drawer units, open floor shelves with pull out wicker baskets plus eye level cupboards and cabinets with counter lighting under. There is also a plate rack. Generous amount of solid wood and wood effect work surfaces with tiled splash backs and Butler style sink with mixer tap and cupboard under. Ceramic hob with extractor hood above. Integrated dishwasher and fridge/freezer. Built in eye level double electric oven with drawer under and storage cupboard above. Slate effect tiled floor. Opens to the:-
Dining Area:- Sash window overlooking the garden to the front and double doors to the side opening to the paved seating area to the front of the cottage. Part lantern style opening roof. Recessed ceiling lights. Display shelves. Power and television points. Slate effect tiled floor. Natural wood panelled door to the:-

Utility Room

Part glazed uPVC door opening to the front garden. Recessed ceiling lights. Smoke detector. Extractor fan. Coat hooks. Power points. Fitted with floor and eye level cupboards with counter lighting under, work surface with tiled splash back and stainless steel sink and drainer with swan neck mixer tap. Space and plumbing for a washing machine and tumble dryer. Shoe cabinet. Slate effect tiled floor. Natural wood panelled door to the:-

Cloakroom

Recessed ceiling lights. Extractor fan. Oil fired central heating boiler and programmer. Fitted with a pedestal wash hand basin and tiled splash back plus low level WC. Slate effect tiled floor.

First Floor

Landing

Stairs rise to the landing with window to the rear elevation. Recessed ceiling lights. Smoke detector. Radiator. Latch doors to all rooms.

Bedroom One

Boasting a double aspect with window to the side and sash window overlooking the garden to the front. Ceiling and bedside lights. Coved. Radiator. Power, telephone and television points. Victorian style fireplace.

Bedroom Two

Sash window to the front aspect. Ceiling light. Access to the boarded loft space with pull down ladder and light. Radiator. Power and television points. Airing cupboard housing the hot water cylinder.

Shower Room

Sash window to the front elevation. Recessed ceiling lights. Chrome heated towel rail. Fitted with a stylish modern suite consisting of vanity wash hand basin with mono tap, mirror, shaver light and point above, large shower cubicle with mains shower and sliding door plus a low level WC. Built in storage cupboard with shelves and over stairs storage cupboard. Tiled floor with under floor heating.

Outside

Parking and Gardens

The property is approached from the lane onto a gravelled drive with space to park two to three cars and is partially enclosed by hedgerow. A picket gate opens to a paved seating area, where there is the front door and double doors to the kitchen/dining room. The rest of the garden has been attractively designed with raised beds planted with a variety of flowers and shrubs, gravelled paths plus lawn. There are two timber storage sheds and the oil tank plus a water tap. A gate opens to the front path. The garden is enclosed in part by stone walling and hedgerow.

Useful Information

Energy Efficiency Rating E
Council Tax Band D
uPVC Double Glazing
Oil Fired Central Heating
Mains Drainage
Freehold
No Onward Chain

Directions

From Templecombe

Leave Templecombe on the A357 heading towards the A30 and Henstridge. Proceed through the first set traffic lights at Yenton and bear to the left onto Whitechurch Lane. The drive to the cottage is the first one on the right hand side - almost straight ahead off from the main road. Postcode BA8 0NG

EPC Graph for Yenston, Templecombe

Book a viewing

Or call us to make an enquiry

01258 473030

1 Market House, Market Place, Sturminster Newton DT10 1AS

Calculate

Please be aware, these results are for illustrative purposes only and should not be considered as a mortgage quote. These are based on a repayment mortgage and may vary depending on the term and interest rate of your mortgage.

Lender fees may also be applicable. If you would like guidance on the right mortgage for you, we recommend speaking to a mortgage consultant.

Results

Stamp Duty To Pay:

Effective Rate:

Tax Band % Taxable Sum Tax

Are you looking to sell?

Book a Valuation