Sold STC

Sold STC

Asking Price £785,000

Wonston, Hazelbury Bryan

  • Detached Bungalow
  • Set in Circa 6.3 Acres
  • Three Bedrooms
  • Three Reception Rooms
  • Stunning Rural Views
  • Ample Parking
  • 2165 sq. ft 9201 sq. m)
  • No Onward Chain
  • EPC Rating D
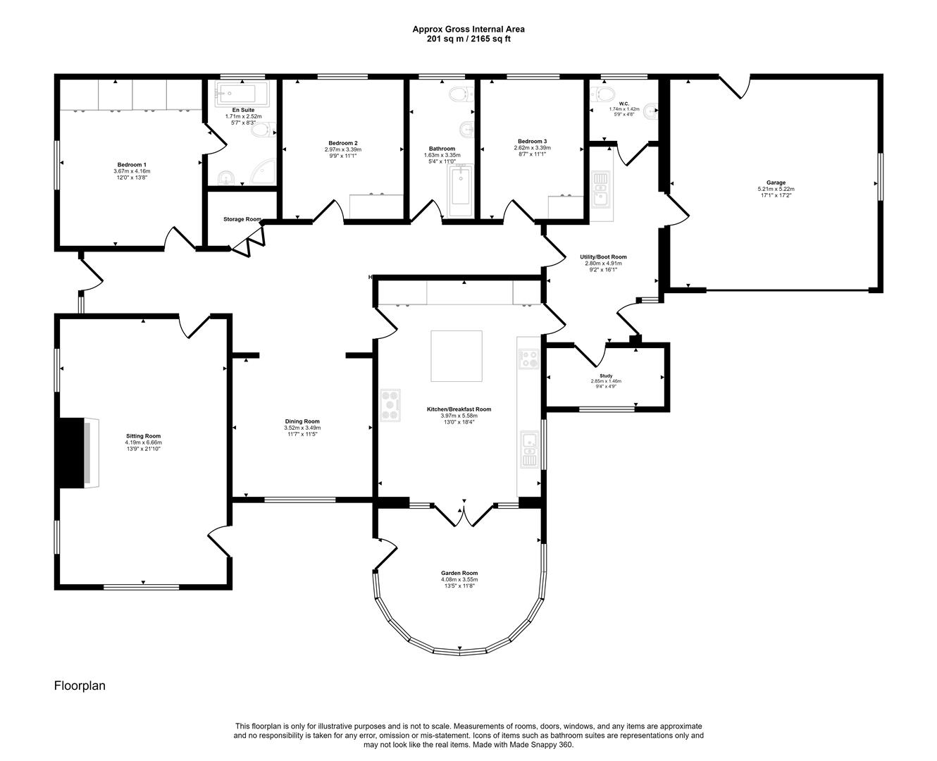
A modern three double bedroom detached bungalow offering a unique opportunity for those seeking a peaceful countryside lifestyle set in grounds extending to 6.27 acres and boasting 2165 sq. ft 9201 sq. m) of internal space. The bungalow offers comfortable living and is presented to the market with the advantage of no onward chain, and due to its elevated position takes in some enviable far reaching views over its own land to the beautiful Blackmore Vale countryside beyond.

The property benefits from four reception rooms, all offering captivating views over the countryside and providing plenty of room for entertaining friends or just relaxing with family. The spacious sitting room enjoys an open fireplace that when lit, creates a warm and cosy atmosphere on those chilling autumn and winter days. There is a spacious kitchen with traditional Aga and vital for rural living is the large utility/boot room. And, if the family is expanding, there is the option to develop the loft space into further accommodation, allowing you to truly make this home your own.

Outside, there is plenty of parking for family and visitors, as well as future proofing for additional cars as the children pass their driving tests and there is also the double garage. The easy to manage gardens wrap around the property with enough space to host a summer gathering and provide a tranquil haven for relaxing.

This property is perfect for those looking to create their dream smallholding, whether with livestock or just for self sufficiency on vegetables. It is also ideal for ponies or horses with the surrounding area providing excellent hacking opportunities. However, if you just want space around you, where children and pets may roam safely and freely, then this home is also for you.

This special home combines the peace and calm of rural living with the practicality of easy access to necessities and presents a fantastic chance to own a property in the heart of the Dorset countryside.

The Property

Accommodation

Inside

The main entrance lies to the left hand side of the property where there is storm canopy leading to the covered entrance and front door. The door opens into a bright and spacious hall with access to the loft space, which has a ladder, light and is boarded. There is also a walk in airing cupboard housing the hot water cylinder, arch to the dining room and doors to all other rooms.

The large sitting room enjoys a triple aspect with a door to the side opening to the front of the bungalow, windows to the side and bow window taking in a fabulous view over the Blackmore Vale countryside. There is also an open fireplace with timber mantel and stone surround. Both the dining room and study also boast tremendous views over the countryside.

The spacious kitchen/breakfast room is fitted with a range of units consisting of floor cupboards with drawers, larder cupboards and dresser style unit with cabinets, floor cupboards and plate rack. There is a generous amount of work surfaces with a tiled splash back and a one and half bowl sink and drainer with a mixer tap. There is an oil fired Aga with hot plates and choice of oven and for summer months there is a built in double electric oven and induction hob. There is space and plumbing for a dishwasher and an integrated larder style fridge.

From the kitchen double doors open into a wonderful garden room that takes full advantage of the views over the land and countryside in the distance. Both the kitchen and garden room benefit from underfloor heating.

The three double sized bedrooms, all with fitted wardrobes and the principal bedroom has the bonus of an en-suite bathroom with separated shower cubicle. In addition, there is the family bathroom, separate cloakroom and a large utility/boot room with access to the garage.

Outside

The drive sweeps up from the lane to a five bar gate that opens to the drive where there is parking for multiple vehicles and leads up to the double garage, which has an electric sectional up and over door. The garage benefits from light and power and houses the oil fired central heating boiler.

The formal gardens lie mostly to the front with additional space to the side and rear. The rear garden is planted with a variety of apple trees and to the side there is space for a kitchen garden. There are many mature shrubs and from the front garden there are wonderful views.

The land is accessed from the drive via a gate that opens to the first field, which has access at the top of the field to the adjoining field. At the bottom of field one there is a spring fed pond, which aids better drainage to the fields and entices wildlife. The total acreage of the field is around 5.63 acres and offers potential for livestock, as a small holding or just space to have around you.

Useful Information

Energy Efficiency Rating D
Council Tax Band F
uPVC Double Glazing
Oil Fired Central Heating
Mains Drainage
Freehold
No Onward Chain

The Location

Wonston, Hazelbury Bryan

The property is situated in the Wonston area of the popular and sought after village of Hazelbury Bryan, which lies in the beautiful Blackmore Vale countryside and is about five miles from the picturesque market town of Sturminster Newton. The village itself has a lively community with many events taking place around the area and also in the village hall. For every day essentials there is the Red Barn shop, the village also has a public house, park/recreational grounds and primary school. Sturminster Newton has further facilities with a range of independent shops and chain stores, doctor and dental surgeries, schooling for all ages and The Exchange - a major entertainment venue. Sherborne with a mainline train station is about twelve miles away.

Directions

From Sturminster Newton

Leave the town via Bridge Street, at the traffic lights continue over the bridge and turn right onto the A357 heading towards Sherborne. Take the next turning left into Glue Hill, signposted Hazelbury Bryan. Continue along this road for about four and half miles into Hazelbury Bryan. On entering the area of Wonston the road widens continue forward and turn right into Marsh Lane. The property is the first one on the left hand side. Postcode DT10 2EE

EPC Graph for Wonston, Hazelbury Bryan

Book a viewing

Or call us to make an enquiry

01258 473030

1 Market House, Market Place, Sturminster Newton DT10 1AS

Calculate

Please be aware, these results are for illustrative purposes only and should not be considered as a mortgage quote. These are based on a repayment mortgage and may vary depending on the term and interest rate of your mortgage.

Lender fees may also be applicable. If you would like guidance on the right mortgage for you, we recommend speaking to a mortgage consultant.

Results

Stamp Duty To Pay:

Effective Rate:

Tax Band % Taxable Sum Tax

Are you looking to sell?

Book a Valuation